963 Lozier Lane, Medford, OR 97501
Local realty services provided by:Better Homes and Gardens Real Estate Equinox
963 Lozier Lane,Medford, OR 97501
$200,000
- 1.48 Acres
- Lots / Land
- Active
Listed by: rockwell group, jacob rockwell
Office: exp realty, llc.
MLS#:220219512
Source:OR_SOMLS
Price summary
- Price:$200,000
About this home
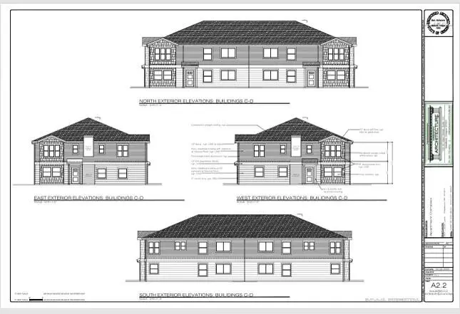
Fantastic 32 unit multifamily approved project. Discover the perfect investment opportunity with this 1.47-acre lot of flat, buildable land, ideal for multi-family residential development and in a quickly growing neighborhood. This prime property, zoned MFR-30 currently has development and site plan approval for a 32 unit project consisting of four 8 Plexes. It also includes a floor plan layout and building elevations streamlining your path to construction. Don't miss out on the chance to bring your vision to life on this versatile and ready-to-build development property.
Contact an agent
Home facts
- Listing ID #:220219512
- Added:1 day(s) ago
- Updated:April 18, 2026 at 02:54 AM
Structure and exterior
- Lot area:1.48 Acres
Schools
- High school:North Medford High
- Middle school:McLoughlin Middle
- Elementary school:Oak Grove Elem
Finances and disclosures
- Price:$200,000
- Tax amount:$2,488 (2025)
New listings near 963 Lozier Lane
$385,000Pending3 beds 2 baths1,537 sq. ft.2215 Arctic Circle, Medford, OR 97504
MLS# 220219553Listed by: RE/MAX PLATINUM- New
$380,000Active3 beds 2 baths1,184 sq. ft.1915 Page Street, Medford, OR 97504
MLS# 220219484Listed by: KELLER WILLIAMS REALTY SOUTHERN OREGON - New
$379,900Active3 beds 2 baths1,540 sq. ft.2711 Elliott Avenue, Medford, OR 97501
MLS# 220219550Listed by: RE/MAX PLATINUM - New
$689,000Active3 beds 3 baths3,077 sq. ft.65 High Oak Drive, Medford, OR 97504
MLS# 220219552Listed by: JOHN L. SCOTT MEDFORD - New
$435,000Active3 beds 2 baths1,478 sq. ft.1350 Swayze Lane, Medford, OR 97501
MLS# 220219564Listed by: EXPERT PROPERTIES INC. - Open Sun, 1 to 3pmNew
$550,000Active4 beds 3 baths1,900 sq. ft.2537 Seville Circle, Medford, OR 97504
MLS# 220219525Listed by: JOHN L. SCOTT MEDFORD - New
$615,000Active3 beds 3 baths2,094 sq. ft.524 N Berkeley Way, Medford, OR 97504
MLS# 220219527Listed by: RE/MAX INTEGRITY - New
$549,000Active3 beds 2 baths1,914 sq. ft.2669 Lawnview Drive, Medford, OR 97504
MLS# 220219533Listed by: REAL ESTATE DESIGNED TO SELL LLC - New
$425,000Active3 beds 2 baths1,402 sq. ft.3471 Cascara Street, Medford, OR 97504
MLS# 220219497Listed by: EXP REALTY, LLC - New
$75,000Active2 beds 1 baths1,050 sq. ft.3700 Bellinger Lane #33, Medford, OR 97501
MLS# 220219501Listed by: EXP REALTY, LLC