4481 NE 41st Ave, Portland, OR 97211
Local realty services provided by:Better Homes and Gardens Real Estate Realty Partners
4481 NE 41st Ave,Portland, OR 97211
$455,000
- 2 Beds
- 2 Baths
- 904 sq. ft.
- Single family
- Pending
Listed by: chris dawkins
Office: keller williams pdx central503-548-4848
MLS#:340005605
Source:PORTLAND
Price summary
- Price:$455,000
- Price per sq. ft.:$503.32
- Monthly HOA dues:$129
About this home
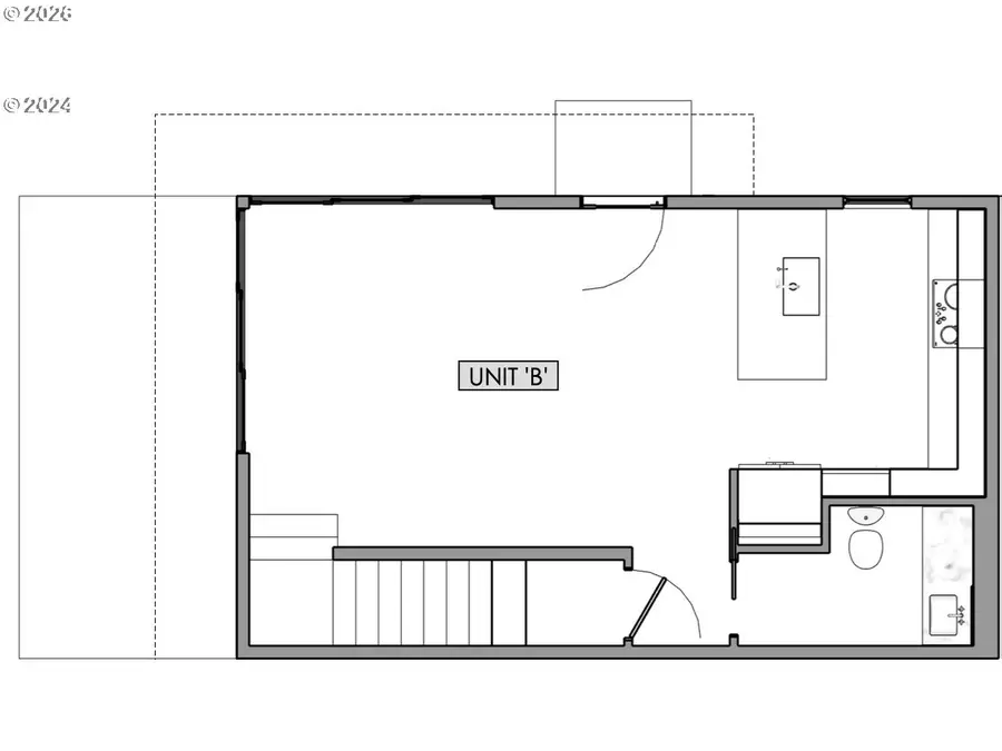
New modern home in sought-after Beaumont-Wilshire Neighborhood location convenient to NE Fremont, NE 42nd Ave & NE Alberta shops & restaurants. Built with uncompromised quality and true architectural design by Snug, Portland's premiere infill cottage developer. Must see to appreciate all of the designer finishes and upgrades compared to the typical new build. 1 of 4 townhouse homes, each with private fenced yard for entertaining AND PETS. Layout lives large with great room plan & chef’s kitchen. 2 vaulted bedrooms & laundry upstairs. Loads of storage with built-in pantry and large closets. Completely move-in ready with included fridge, W/D and full landscaping. Low energy certified all-electric home with mini split heating and cooling. Total energy bill estimated @ just $64 per month. Pre-plumbed for solar such that it could be truly Net Zero! Live maintenance free with minimal monthly expense, while enjoying all the benefits of a single family home! HES= 10! Unbeatable Beaumont-Wilshire location offering a long stretch of vibrant shops, unique bars, music venues and restaurant Walkscore= 88! Bikescore= 97!! List price is subject to buyer qualifying for the Portland Housing Bureau- SDC exemption program. SDC waiver income limit for this property is $148,920. Seller's preferred lender is offering incentives resulting in low mortgage rates. Rear left unit with large, private yard and street frontage....
Contact an agent
Home facts
- Year built:2026
- Listing ID #:340005605
- Added:51 day(s) ago
- Updated:April 26, 2026 at 07:26 AM
Rooms and interior
- Bedrooms:2
- Total bathrooms:2
- Full bathrooms:1
- Half bathrooms:1
- Bathrooms Description:Soaking Tub
- Kitchen Description:Dishwasher, Disposal, Free Standing Range, Free Standing Refrigerator, Microwave, Plumbed For Icemaker, Quartz, Stainless Steel Appliance, Tile
- Living area:904 sq. ft.
Heating and cooling
- Cooling:Heat Pump
- Heating:Heat Pump, Mini Split
Structure and exterior
- Roof:Composition
- Year built:2026
- Building area:904 sq. ft.
- Architectural Style:Contemporary, Townhouse
- Exterior Features:Fenced, Patio, Sprinkler, Yard
- Foundation Description:Concrete Perimeter, Slab
- Levels:2 Stories
Schools
- High school:Jefferson
- Middle school:Vernon
- Elementary school:Vernon
Utilities
- Water:Public Water
- Sewer:Public Sewer
Finances and disclosures
- Price:$455,000
- Price per sq. ft.:$503.32
Features and amenities
- Laundry features:Washer/Dryer
- Amenities:Double Pane Window(s), High Ceilings, Laundry, Tile Floor, Vinyl Frame Windows, Wall To Wall Carpet
Parking
- Parking description:On street
New listings near 4481 NE 41st Ave
- New
$949,000Active4 beds 2 baths2,250 sq. ft.1332 NE Fremont St, Portland, OR 97212
MLS# 183900044Listed by: EXP REALTY, LLC - New
$750,000Active8 beds 3 baths3,267 sq. ft.1326 SW 12th Ave, Portland, OR 97201
MLS# 427234062Listed by: PROFESSIONAL REALTY SERVICES INTERNATIONAL, INC - New
$345,000Active3 beds 1 baths850 sq. ft.6517 SE 99th Ave, Portland, OR 97266
MLS# 598657312Listed by: EXP REALTY, LLC - New
$1,135,000Active3 beds 3 baths3,024 sq. ft.17805 NW 178th Ter, Portland, OR 97229
MLS# 665491454Listed by: JOHN L. SCOTT - New
$199,000Active1 beds 1 baths560 sq. ft.711 NE Randall Ave #301, Portland, OR 97232
MLS# 679256372Listed by: KNIPE REALTY ERA POWERED - Open Sun, 1 to 3pmNew
$389,000Active3 beds 3 baths1,456 sq. ft.3829 SE 103rd Ave, Portland, OR 97266
MLS# 386754463Listed by: WINDERMERE REALTY TRUST - New
$319,900Active2 beds 2 baths876 sq. ft.101 NE 78th Ave, Portland, OR 97213
MLS# 523445593Listed by: PREMIERE PROPERTY GROUP, LLC - New
$560,000Active2 beds 2 baths884 sq. ft.2534 SW Custer St, Portland, OR 97219
MLS# 641391699Listed by: RAREBIRD REAL ESTATE - New
$399,900Active3 beds 3 baths1,119 sq. ft.95 NE 78th Ave, Portland, OR 97213
MLS# 678630661Listed by: PREMIERE PROPERTY GROUP, LLC - New
$439,000Active3 beds 2 baths1,664 sq. ft.16315 NE Holladay St, Portland, OR 97230
MLS# 144017377Listed by: JOHN L. SCOTT PORTLAND METRO