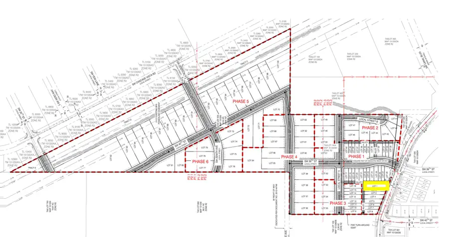
3945 SW Badger Avenue #Lot 1, Redmond, OR 97756
Local realty services provided by:Better Homes and Gardens Real Estate Equinox
3945 SW Badger Avenue #Lot 1,Redmond, OR 97756
$125,000
- 0.1 Acres
- Lots / Land
- Active
Listed by: lauren jean hinton
Office: keller williams realty central oregon
MLS#:220214597
Source:OR_SOMLS
Price summary
- Price:$125,000
- Monthly HOA dues:$146
About this home
Townhome lot—ideal for investors or those seeking multi-unit ownership. Both single-level & 2-level plans available or bring your own builder. SHOVEL READY w/ utilities stubbed at lot. Owen Ridge is a new neighborhood in desirable SW Redmond is featuring beautiful mountain views and located just blocks from coffee shops, gelato, a brewery restaurant, schools, and only a short distance to golf, the airport, shopping, and Bend side of town. Construction is underway on single-family homes, single & two-level townhomes. Don't miss this exceptional investment opportunity! This lot is 1 of 4 adjoining lots. Listing Agent related to Seller.
Contact an agent
Home facts
- Listing ID #:220214597
- Added:54 day(s) ago
- Updated:March 29, 2026 at 02:36 PM
Structure and exterior
- Lot area:0.1 Acres
- Lot Features:Corner Lot
Schools
- High school:Ridgeview High
- Middle school:Obsidian Middle
- Elementary school:Sage Elem
Utilities
- Water:Public
- Sewer:Public Sewer
Finances and disclosures
- Price:$125,000
Parking
- Garage:Yes
- Garage spaces:2
New listings near 3945 SW Badger Avenue #Lot 1
- New
$639,000Active3 beds 2 baths2,137 sq. ft.4013 SW Tommy Armour Lane, Redmond, OR 97756
MLS# 220218082Listed by: AVENIR REALTY - New
$659,000Active3 beds 2 baths1,244 sq. ft.6446 NW Lynch Lane, Redmond, OR 97756
MLS# 220218069Listed by: KELLER WILLIAMS REALTY CENTRAL OREGON - New
$625,000Active2 beds 2 baths1,597 sq. ft.1065 Victoria Falls Drive, Redmond, OR 97756
MLS# 220218061Listed by: KELLER WILLIAMS REALTY CENTRAL OREGON - Open Sun, 11am to 1pmNew
$318,000Active3 beds 3 baths1,650 sq. ft.411 NW 25th Street, Redmond, OR 97756
MLS# 220216653Listed by: KNIGHTSBRIDGE INTERNATIONAL - New
$459,900Active3 beds 2 baths1,502 sq. ft.1737 NE 7th Street, Redmond, OR 97756
MLS# 220218028Listed by: CONGRESS REALTY - New
$950,000Active3 beds 2 baths1,824 sq. ft.2218 SW 79th Street, Redmond, OR 97756
MLS# 220217982Listed by: CASCADE HASSON SIR - New
$599,000Active4 beds 2 baths1,979 sq. ft.2324 NW Teak Place, Redmond, OR 97756
MLS# 220217996Listed by: TIM DAVIS GROUP CENTRAL OREGON - New
$510,000Active3 beds 1 baths1,424 sq. ft.1830 SW 16th Street, Redmond, OR 97756
MLS# 220217994Listed by: ENGEL & VOELKERS BEND
$675,000Pending3 beds 2 baths1,152 sq. ft.3990 NW Canal Boulevard, Redmond, OR 97756
MLS# 220217973Listed by: BURKLEY REALTY LLC- New
$1,050,000Active3 beds 2 baths1,664 sq. ft.3342 SW 73rd Street, Redmond, OR 97756
MLS# 220217964Listed by: WINDERMERE REALTY TRUST