232 NE Broadway St, Sublimity, OR 97385
Local realty services provided by:Better Homes and Gardens Real Estate Realty Partners
Listed by: chet grahamCell: 503-932-4051
Office: realty first llc.503-420-4588
MLS#:836876
Source:OR_WVMLS
232 NE Broadway St,Sublimity, OR 97385
$650,000
- 3 Beds
- 2 Baths
- 1,650 sq. ft.
- Single family
- Active
Upcoming open houses
- Sat, Apr 2511:00 am - 02:00 pm
Price summary
- Price:$650,000
- Price per sq. ft.:$393.94
About this home
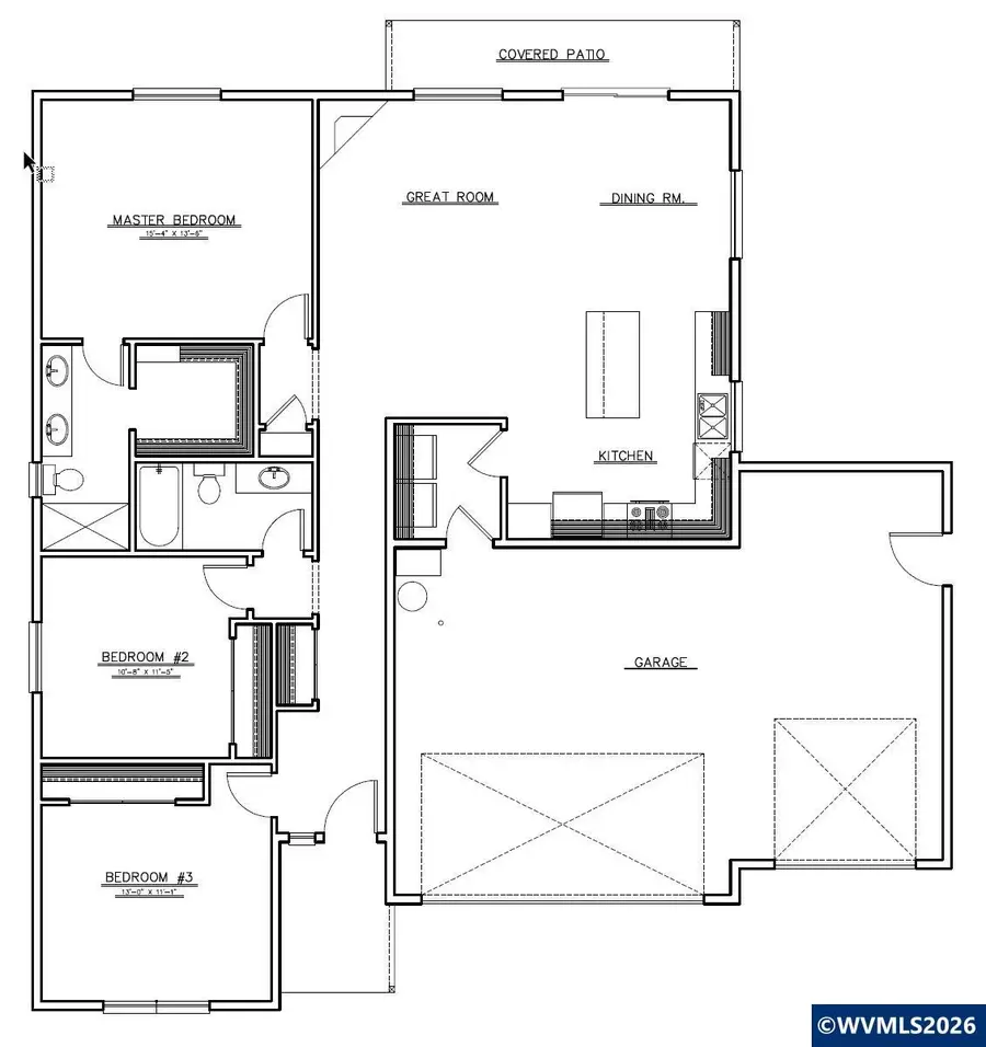
This is a classic, fully loaded luxury ranch-style home that boasts 1650 sq ft for easy living with a large open floor plan. Attractive, tall, and tray ceilings really give this home dimension, with custom cabinetry and beautiful hard-surfaced countertops throughout. Extra-large lot with RV pad and plenty of room for that shop/ADU, stub-outs included. Check out the suggested shop plan that can be added to your purchase price. Plenty of time to customize! Have another plan in mind, let us take a look.
Contact an agent
Home facts
- Year built:2026
- Listing ID #:836876
- Added:92 day(s) ago
- Updated:April 24, 2026 at 02:34 PM
Rooms and interior
- Bedrooms:3
- Total bathrooms:2
- Full bathrooms:2
- Dining Description:Combination Dining Area, On Level 1
- Kitchen Description:Dishwasher, Disposal, On Level 1, Range Included, Range: Gas
- Bedroom Description:Master Bedroom on Level 1
- Living area:1,650 sq. ft.
Heating and cooling
- Heating:Forced Air, Gas
Structure and exterior
- Roof:Composition, Shingle
- Year built:2026
- Building area:1,650 sq. ft.
- Lot area:0.25 Acres
- Lot Features:Dimension Above
- Architectural Style:1 Story
- Construction Materials:Fiber Cement
- Exterior Features:Covered Patio, Partial Fenced Yard, Underground Sprinklers
- Foundation Description:Continuous
Schools
- High school:Stayton
- Middle school:Sublimity
- Elementary school:Sublimity
Utilities
- Water:City, Connected
- Sewer:City Sewer
Finances and disclosures
- Price:$650,000
- Price per sq. ft.:$393.94
Features and amenities
- Amenities:Area/Room For RV, Gas Water Heater
Parking
- Parking description:Attached Garage
- Garage spaces:3
New listings near 232 NE Broadway St
- Open Sun, 1 to 3pmNew
$678,000Active5 beds 3 baths2,425 sq. ft.225 SW Hendricks St, Sublimity, OR 97385
MLS# 840066Listed by: TRADITION REAL ESTATE PARTNERS - New
$135,000Active3 beds 2 baths1,350 sq. ft.340 NE Crest St, Sublimity, OR 97385
MLS# 838899Listed by: EXP REALTY, LLC
$565,000Pending3 beds 2 baths2,061 sq. ft.443 NE Pine St, Sublimity, OR 97385
MLS# 333895674Listed by: SUMMA REAL ESTATE GROUP- Open Sat, 11am to 2pm
$775,000Active4 beds 3 baths2,463 sq. ft.211 NE Broadway St, Sublimity, OR 97385
MLS# 839613Listed by: REALTY FIRST LLC
$799,000Active3 beds 2 baths2,320 sq. ft.12063 Golf Ln, Sublimity, OR 97385
MLS# 661564089Listed by: BERKSHIRE HATHAWAY HOMESERVICES NW REAL ESTATE
$459,900Pending3 beds 2 baths1,478 sq. ft.312 SW 9th St, Sublimity, OR 97385
MLS# 839531Listed by: NED BAKER REAL ESTATE
$665,000Pending5 beds 3 baths2,314 sq. ft.435 SE Belgian St, Sublimity, OR 97385
MLS# 239309249Listed by: MORE REALTY
$75,000Active2 beds 1 baths540 sq. ft.340 NE Crest St #5, Sublimity, OR 97385
MLS# 189974891Listed by: BERKSHIRE HATHAWAY HOMESERVICES NW REAL ESTATE
$609,000Active4 beds 3 baths2,235 sq. ft.312 SW Cascade Meadow Dr, Sublimity, OR 97385
MLS# 839072Listed by: REALTY ONE GROUP WILLAMETTE VALLEY STAYTON
$630,000Pending3 beds 3 baths2,203 sq. ft.514 NW Melrose St, Sublimity, OR 97385
MLS# 838700Listed by: JOHN L. SCOTT-SALEM