23781 SW Black Tortoise Ter, Tualatin, OR 97062
Local realty services provided by:Better Homes and Gardens Real Estate Realty Partners
Listed by: anastasia gordeev, gina masters
Office: lennar sales corp503-476-3846
MLS#:194398088
Source:PORTLAND
Price summary
- Price:$516,400
- Price per sq. ft.:$257.68
- Monthly HOA dues:$164
About this home
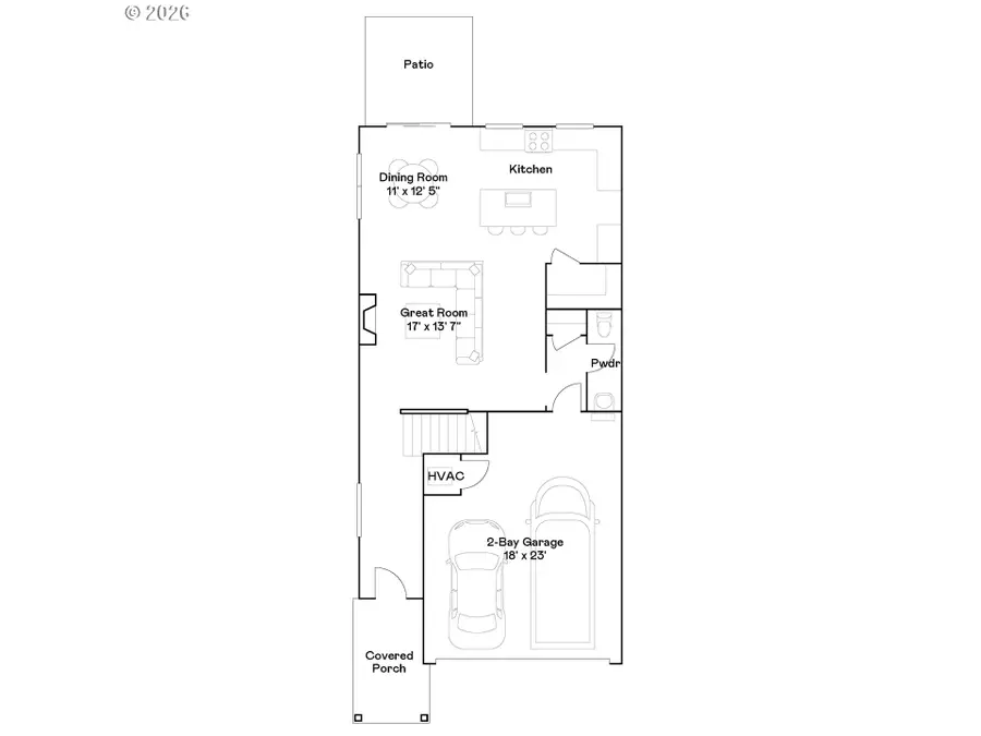
Step into modern comfort and effortless style in this beautifully designed two-story "Spencer" floor plan in the desirable Autumn Sunrise master-planned community in Tualatin. This home comes complete with a refrigerator, washer and dryer, air conditioning, and blinds included. The main level welcomes you with a generous open-concept layout that seamlessly connects the Great Room, dining area, and kitchen—creating the perfect space for everyday living and entertaining. Large windows fill the home with abundant natural light, while sliding glass doors open to the patio for easy indoor-outdoor living, ideal for summer gatherings or quiet evenings outside. At the heart of the home, the kitchen shines with thoughtful design and elevated finishes, including beautiful quartz countertops, a spacious pantry, and plenty of prep and storage space. Quartz surfaces continue throughout all bathrooms, creating a cohesive and upscale feel throughout the home. Durable and stylish LVP flooring flows through the main living areas, complemented by luxury vinyl tile in select spaces and plush carpet with an 8-lb pad upstairs for added comfort. All four bedrooms are conveniently located on the upper level, offering privacy and a peaceful retreat from the main living areas. The luxurious owner’s suite features a spacious bedroom, a private ensuite bath, and a generous walk-in closet designed to make everyday routines feel just a little more special. Located in Autumn Sunrise, one of Tualatin’s most exciting new communities, residents enjoy neighborhood amenities including a playground, picnic area, fire pit, and basketball court. This home combines thoughtful design, quality finishes, and a welcoming neighborhood setting—making it a place you’ll truly love to call home. Come experience it for yourself! Photos are of similar home so features and finishes may vary. Homesite #250, ready in Spring. Flex credit/closing cost incentive available when financing with preferred lender! Use...
Contact an agent
Home facts
- Year built:2026
- Listing ID #:194398088
- Added:55 day(s) ago
- Updated:May 21, 2026 at 07:34 AM
Rooms and interior
- Bedrooms:4
- Total bathrooms:3
- Full bathrooms:2
- Half bathrooms:1
- Bathrooms Description:Soaking Tub
- Kitchen Description:Dishwasher, Disposal, Free Standing Gas Range, Free Standing Range, Island, Microwave, Pantry, Plumbed For Icemaker, Quartz
- Basement Description:Crawl Space
- Living area:2,004 sq. ft.
Heating and cooling
- Cooling:Central Air
- Heating:Forced Air 90+
Structure and exterior
- Roof:Composition
- Year built:2026
- Building area:2,004 sq. ft.
- Lot area:0.07 Acres
- Architectural Style:2 Story, Common Wall
- Exterior Features:Fenced, Patio, Sprinkler
- Foundation Description:Concrete Perimeter
- Levels:2 Stories
Schools
- High school:Sherwood
- Middle school:Sherwood
- Elementary school:Hawks View
Utilities
- Water:Public Water
- Sewer:Public Sewer
Finances and disclosures
- Price:$516,400
- Price per sq. ft.:$257.68
Features and amenities
- Laundry features:Washer/Dryer
- Amenities:Double Pane Window(s), Garage Door Opener, Laundry, Vinyl Frame Windows, Wall To Wall Carpet
Parking
- Total parking spaces:2
- Parking description:Driveway
- Garage spaces:2
New listings near 23781 SW Black Tortoise Ter
- New
$400,000Active3 beds 3 baths1,430 sq. ft.9220 SW Cascara Ln, Tualatin, OR 97062
MLS# 610079962Listed by: KELLER WILLIAMS REALTY PROFESSIONALS - New
$350,000Active4 beds 3 baths1,813 sq. ft.20305 SW 70th Ave, Tualatin, OR 97062
MLS# 116981408Listed by: REDFIN - New
$669,900Active5 beds 3 baths2,610 sq. ft.23812 SW Wenatchee Ter, Tualatin, OR 97062
MLS# 338145750Listed by: LENNAR SALES CORP - New
$592,900Active3 beds 3 baths1,987 sq. ft.23745 SW Black Tortoise Ter, Tualatin, OR 97062
MLS# 579178590Listed by: LENNAR SALES CORP - New
$100,000Active3 beds 2 baths1,296 sq. ft.18485 SW Pacific Dr #Unit 89, Tualatin, OR 97062
MLS# 770112117Listed by: BERKSHIRE HATHAWAY HOMESERVICES NW REAL ESTATE - New
$789,000Active4 beds 3 baths2,950 sq. ft.17460 SW 108th Pl, Tualatin, OR 97062
MLS# 602948589Listed by: WINDERMERE REALTY TRUST - New
$1,550,000Active3 beds 3 baths5,413 sq. ft.6715 SW Norse Hall Rd, Tualatin, OR 97062
MLS# 563451496Listed by: REALTY OF AMERICA, LLC - New
$669,000Active4 beds 3 baths2,187 sq. ft.8720 SW Stono Dr, Tualatin, OR 97062
MLS# 149164694Listed by: PREMIERE PROPERTY GROUP, LLC - New
$339,000Active2 beds 1 baths1,110 sq. ft.8225 SW Shenandoah Way, Tualatin, OR 97062
MLS# 473646951Listed by: EPIQUE REALTY
$550,000Pending3 beds 2 baths1,352 sq. ft.8416 SW Iroquois Dr, Tualatin, OR 97062
MLS# 655765046Listed by: KELLER WILLIAMS PDX CENTRAL