115 Harlacher Rd, East Berlin, PA 17316
Local realty services provided by:Better Homes and Gardens Real Estate Cassidon Realty
115 Harlacher Rd,East Berlin, PA 17316
$480,000
- 3 Beds
- 2 Baths
- 1,589 sq. ft.
- Farm
- Pending
Listed by: valerie nash
Office: coldwell banker realty
MLS#:PAAD2020714
Source:BRIGHTMLS
Price summary
- Price:$480,000
- Price per sq. ft.:$302.08
About this home
Escape the ordinary with this one-of-a-kind ranch-style home set on 12.9 beautiful acres — a versatile property perfect for farming, hunting, or homesteading. With approximately 70% of the land cleared and ready for your vision, this mini-farm offers endless opportunities to cultivate crops, raise animals, or simply enjoy the open space and natural beauty.
Built with sustainability and comfort in mind, the 3-bedroom, 2-bath plus office home showcases a rare blend of eco-friendly innovation and timeless craftsmanship. Set well back off the road, the home was constructed with straw-bale insulation encased in lime stucco, the home features one of the most fire-resistant, pest-repellent, and naturally breathable building materials available — ensuring exceptional energy efficiency and a healthy indoor environment year-round.
Step inside to find a welcoming eat-in kitchen, radiant floor heating, and smart passive solar design. The home is perfectly positioned to capture the sun’s warmth in winter while staying shaded and cool in summer, offering comfortable living in every season.
Situated in a Clean & Green zone, this property benefits from exceptionally low taxes, adding to its appeal as both an environmentally and financially sustainable investment.
Whether you dream of creating a self-sufficient homestead, maintaining a hobby farm, or establishing a peaceful hunting and nature retreat, this property provides the space, flexibility, and charm to make it your own. An exceptionally rare find that blends modern sustainability with rural freedom — your next chapter begins here.
Contact an agent
Home facts
- Year built:2007
- Listing ID #:PAAD2020714
- Added:51 day(s) ago
- Updated:January 08, 2026 at 08:34 AM
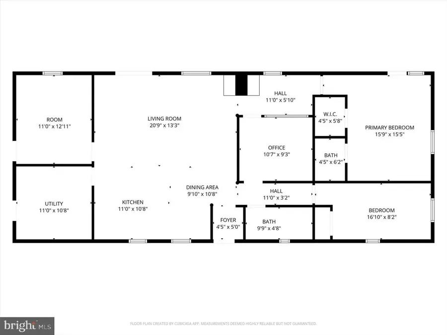
Rooms and interior
- Bedrooms:3
- Total bathrooms:2
- Full bathrooms:2
- Living area:1,589 sq. ft.
Heating and cooling
- Cooling:Ceiling Fan(s), Window Unit(s)
- Heating:Electric, Radiant
Structure and exterior
- Roof:Shingle
- Year built:2007
- Building area:1,589 sq. ft.
- Lot area:12.92 Acres
Utilities
- Water:Well
- Sewer:On Site Septic
Finances and disclosures
- Price:$480,000
- Price per sq. ft.:$302.08
- Tax amount:$1,829 (2025)
New listings near 115 Harlacher Rd
- New
$357,900Active4 beds 3 baths2,450 sq. ft.4 Johnson Dr, EAST BERLIN, PA 17316
MLS# PAAD2021222Listed by: BERKSHIRE HATHAWAY HOMESERVICES HOMESALE REALTY - Coming Soon
$295,000Coming Soon6 beds 2 baths54 Sedgwick Dr, EAST BERLIN, PA 17316
MLS# PAAD2021210Listed by: KELLER WILLIAMS KEYSTONE REALTY - New
$244,990Active3 beds 2 baths1,527 sq. ft.308 Abbottstown St, EAST BERLIN, PA 17316
MLS# PAAD2021192Listed by: IRON VALLEY REAL ESTATE HANOVER
$269,000Pending3 beds 2 baths1,396 sq. ft.90 Schofield Dr, EAST BERLIN, PA 17316
MLS# PAAD2021146Listed by: KELLER WILLIAMS KEYSTONE REALTY
$225,000Pending3 beds 2 baths2,182 sq. ft.98 Schofield Dr, EAST BERLIN, PA 17316
MLS# PAAD2021012Listed by: BERKSHIRE HATHAWAY HOMESERVICES HOMESALE REALTY
$325,000Active3 beds 2 baths1,242 sq. ft.5399 Canal Rd, EAST BERLIN, PA 17316
MLS# PAYK2095180Listed by: BERKSHIRE HATHAWAY HOMESERVICES HOMESALE REALTY
$350,000Pending4 beds 3 baths2,016 sq. ft.134 Pleasant View Ct, EAST BERLIN, PA 17316
MLS# PAAD2020822Listed by: KELLER WILLIAMS KEYSTONE REALTY
$369,900Active4 beds 4 baths2,424 sq. ft.25 Bentz Mill Rd, EAST BERLIN, PA 17316
MLS# PAYK2094842Listed by: KELLER WILLIAMS ELITE
$699,900Pending4 beds 2 baths2,016 sq. ft.556 Lake Meade Dr, EAST BERLIN, PA 17316
MLS# PAAD2020984Listed by: IRON VALLEY REAL ESTATE OF CENTRAL PA
$379,000Active4 beds 3 baths1,944 sq. ft.27 Mccandless Dr, EAST BERLIN, PA 17316
MLS# PAAD2020866Listed by: KELLER WILLIAMS KEYSTONE REALTY