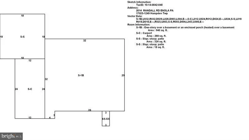
2014 Randall Rd, Enola, PA 17025
Local realty services provided by:Better Homes and Gardens Real Estate Valley Partners
2014 Randall Rd,Enola, PA 17025
$290,000
- 3 Beds
- 1 Baths
- 940 sq. ft.
- Single family
- Active
Listed by: virginia centini
Office: elite real estate professionals
MLS#:PACB2052640
Source:BRIGHTMLS
Price summary
- Price:$290,000
- Price per sq. ft.:$308.51
About this home
This home is perfect for someone who is just starting out or for someone who is ready to downsize. This is a cute rancher w/ an open floor plan. The kitchen, dining area and the LR are all open to each other in the front of the house. The back half of the house has 3 BRs and 1 full bath. There are HW floors in the LR and all BRs. The one BR does have carpet over the HW floor. The previous owner had the washer & dryer moved from the basement to a BR on the 1st floor. The fireplace in the LR does have an insert in it (the FP/chimney have not been used in many years - condition unknown) . The kitchen and the bathroom have both been remodeled. The bath has a walk-in shower w/ a seat. The full basement is unfinished. It has a concrete floor, a washer hook-up (no dryer hook-up) and an egress window. The home also has replacement windows, front and side doors. There is an attached carport w/ a concrete patio off the back. There is a 8'x14' shed in the back yard where you can put all your lawn and garden tools. The house is located on a corner lot. The property is close to Rt 81 & other highways, shopping, schools and hospital....
Contact an agent
Home facts
- Year built:1961
- Listing ID #:PACB2052640
- Added:1 day(s) ago
- Updated:April 14, 2026 at 04:36 AM
Rooms and interior
- Bedrooms:3
- Total bathrooms:1
- Full bathrooms:1
- Flooring:Carpet, Hardwood, Vinyl
- Dining Description:Combination Dining/Living, Combination Kitchen/Dining
- Bathrooms Description:Bathroom 1
- Kitchen Description:Dishwasher, Microwave, Oven/Range - Electric, Water Heater
- Basement:Yes
- Basement Description:Drain, Full, Sump Pump, Unfinished, Windows
- Living area:940 sq. ft.
Heating and cooling
- Cooling:Central A/C
- Heating:Forced Air, Oil
Structure and exterior
- Roof:Shingle
- Year built:1961
- Building area:940 sq. ft.
- Lot area:0.35 Acres
- Architectural Style:Ranch/Rambler
- Construction Materials:Brick
- Foundation Description:Block, Concrete Perimeter
- Levels:1 Story
Schools
- High school:CUMBERLAND VALLEY
- Middle school:MOUNTAIN VIEW
- Elementary school:SHAULL
Utilities
- Water:Public
- Sewer:Public Sewer
Finances and disclosures
- Price:$290,000
- Price per sq. ft.:$308.51
- Tax amount:$1,885 (2025)
Features and amenities
- Laundry features:Hookup, Washer/Dryer Hookups Only
- Amenities:Attic, Cable TV Available, Electric Available, Phone Available, Replacement Windows, Window Treatments
Parking
- Parking description:Attached Carport, On Street
New listings near 2014 Randall Rd
- Coming Soon
$239,900Coming Soon4 beds 2 baths761 Wertzville Rd, ENOLA, PA 17025
MLS# PACB2052642Listed by: HARRISBURG PROPERTY MANAGEMENT GROUP - Coming Soon
$275,000Coming Soon3 beds 3 baths59 Westwood Ct, ENOLA, PA 17025
MLS# PACB2052492Listed by: COLDWELL BANKER REALTY - Coming Soon
$435,000Coming Soon4 beds 3 baths914 Maplewood Ln, ENOLA, PA 17025
MLS# PACB2052372Listed by: KELLER WILLIAMS OF CENTRAL PA - New
$344,990Active3 beds 3 baths2,007 sq. ft.45 Rail Yard Dr, ENOLA, PA 17025
MLS# PACB2052568Listed by: NVR, INC. - Coming SoonOpen Sun, 1 to 3pm
$274,900Coming Soon4 beds 3 baths4068 Darius Dr, ENOLA, PA 17025
MLS# PACB2052444Listed by: COLDWELL BANKER REALTY - New
$415,000Active3 beds 3 baths2,062 sq. ft.4475 Wild Orchid Ln, ENOLA, PA 17025
MLS# PACB2052370Listed by: HOMEZU BY SIMPLE CHOICE
$443,330Pending3 beds 4 baths2,233 sq. ft.34 Rail Yard Dr, ENOLA, PA 17025
MLS# PACB2052368Listed by: NVR, INC.- Coming Soon
$380,000Coming Soon3 beds 2 baths65 Pine Ridge Cir, ENOLA, PA 17025
MLS# PACB2052326Listed by: LAWYERS REALTY, LLC
$382,965Pending3 beds 4 baths2,007 sq. ft.54 Rail Yard Dr, ENOLA, PA 17025
MLS# PACB2052174Listed by: NVR, INC.