4481 Hartshorn Circle, Aiken, SC 29801
Local realty services provided by:Better Homes and Gardens Real Estate Native American Group
4481 Hartshorn Circle,Aiken, SC 29801
$314,050
- 4 Beds
- 3 Baths
- 2,325 sq. ft.
- Single family
- Pending
Listed by: richard shaine cobb, tara kinard
Office: stanley martin georgia brokerage llc.
MLS#:98252556
Source:NC_CCAR
Price summary
- Price:$314,050
- Price per sq. ft.:$135.08
About this home
SPECIAL FINANCING rates as low as 4.75%, for life of loan, PLUS up to 6,000 Dollars towards closing costs with use of preferred lender. See Sales Manager for details.
4000 Dollars Real Heroes Discount available for qualified buyers (Active and Retired military, First Responders, and Teachers) on contracts written after 12/12/25 and closing by 3/31/26.
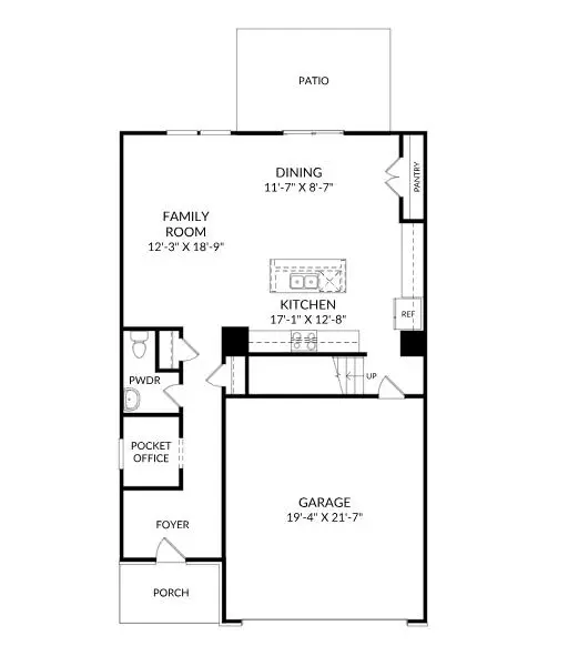
The Tyndall floor plan is designed with functionality and style in mind, offering a versatile layout to suit modern living. Just off the foyer, a convenient office provides an ideal space for remote work or quiet study. The heart of the home is an open-concept living area where the kitchen flows seamlessly into the family room and dining area. The kitchen is a chef's dream, featuring a spacious island, abundant shaker style cabinets, drawer storage, and a generous pantry. Up the beautiful oak stairs, the primary suite is a true retreat with a serene setting, spa inspired bath, and a huge walk-in closet. Three additional bedrooms provide personal space for family or guests, each with their own walk-in closet. A hall bath and a centrally located laundry room complete this thoughtfully designed second level. Garage size matters, so all of ours are over 21' x 19', giving you ample room for parking and storage. The Tyndall offers both practicality and modern comfort for your lifestyle.
Energy efficient construction inspected and tested by The Home Energy Rating System (HERS) index.
Photos used are for illustrative purposes only. Colors and finishes may vary....
Contact an agent
Home facts
- Year built:2026
- Listing ID #:98252556
- Added:104 day(s) ago
- Updated:May 14, 2026 at 07:56 AM
Rooms and interior
- Bedrooms:4
- Total bathrooms:3
- Full bathrooms:2
- Half bathrooms:1
- Rooms Total:7
- Flooring:Carpet
- Dining Description:Eat-in Kitchen
- Kitchen Description:Dishwasher, Disposal, Eat-in Kitchen, Kitchen Island, Pantry, Range
- Bedroom Description:Walk-In Closet(s)
- Living area:2,325 sq. ft.
Heating and cooling
- Cooling:Central Air
- Heating:Forced Air, Heating, Natural Gas
- Central air:Yes
Structure and exterior
- Roof:Composition
- Year built:2026
- Building area:2,325 sq. ft.
- Lot area:0.15 Acres
- Construction Materials:Vinyl Siding
- Exterior Features:Covered, Patio, Porch
- Foundation Description:Slab
- Levels:2 Story
Schools
- High school:Midland Valley
- Middle school:Leavelle McCampbell
- Elementary school:Graniteville Elementary
Finances and disclosures
- Price:$314,050
- Price per sq. ft.:$135.08
Features and amenities
- Appliances:Dishwasher, Disposal, Range
- Laundry features:Washer Hookup
- Amenities:Community Pool, Park, Street Lights, Walk-In Closet(s)
- Pool features:Community Pool
Parking
- Total parking spaces:2
- Parking description:Attached, Attached Garage, Concrete, Garage, Garage Door Opener
New listings near 4481 Hartshorn Circle
- New
$569,000Active4 beds 3 baths2,606 sq. ft.1090 Brightwood Drive, Aiken, SC 29803
MLS# 223411Listed by: COLDWELL BANKER BEST LIFE REALTY - Open Sat, 3 to 5pmNew
$285,000Active3 beds 3 baths2,184 sq. ft.1940 Huntsman Drive, Aiken, SC 29803
MLS# 223412Listed by: UNITED REAL ESTATE, AIKEN - New
$337,900Active3 beds 2 baths1,862 sq. ft.8887 Snelling Drive, Aiken, SC 29803
MLS# 98253337Listed by: BERKSHIRE HATHAWAY HOMESERVICES BEAZLEY REALTORS - New
$339,900Active5 beds 3 baths2,579 sq. ft.4657 Hartshorn Circle, Aiken, SC 29801
MLS# 223403Listed by: SM SOUTH CAROLINA BROKERAGE - New
$372,750Active4 beds 3 baths2,439 sq. ft.509 Pherson Street, Aiken, SC 29801
MLS# 223405Listed by: SOUTHEASTERN RESIDENTIAL - New
$59,900Active3 beds 1 baths1,075 sq. ft.753 Vincent Avenue, Aiken, SC 29801
MLS# 26013800Listed by: TRELORA REALTY, INC. - New
$320,127Active5 beds 3 baths2,225 sq. ft.4605 Hartshorn Circle, Aiken, SC 29801
MLS# 223401Listed by: SM SOUTH CAROLINA BROKERAGE
$378,630Pending4 beds 3 baths2,281 sq. ft.15m Snelling Drive, Aiken, SC 29803
MLS# 100573450Listed by: BERKSHIRE HATHAWAY HOMESERVICES- New
$372,750Active4 beds 3 baths2,439 sq. ft.590 Pherson Street #L102, Aiken, SC 29801
MLS# 100573416Listed by: SOUTHEASTERN RESIDENTIAL, LLC - New
$479,900Active3 beds 2 baths2,068 sq. ft.102 Ellenton Street Se, Aiken, SC 29803
MLS# 223396Listed by: WOODWARD & ASSOCIATES