389 Sherrill Drive, Blacksburg, SC 29702
Local realty services provided by:Better Homes and Gardens Real Estate Young & Company
389 Sherrill Drive,Blacksburg, SC 29702
$164,000
- 3 Beds
- 2 Baths
- - sq. ft.
- Mobile / Manufactured
- Sold
Listed by: cortney knight
Office: ellison real estate co. llc.
MLS#:330208
Source:SC_SMLS
Sorry, we are unable to map this address
Price summary
- Price:$164,000
About this home
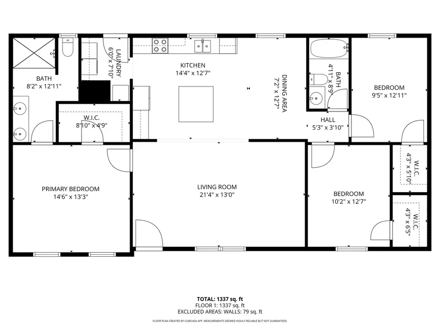
This home is part of two-home sale. 390 Sherrill Drive is also available for sale and shares a driveway with 389 Sherrill Drive. The homes can be sold separately or together. Discover peaceful country living in this spacious 3-bedroom, 2-bath double-wide mobile home offering 1,450 square feet of comfortable living space, nestled on just over half an acre with beautiful creek views and a secluded setting. Step inside to a bright, open floor plan featuring a huge kitchen island—perfect for cooking, entertaining, or gathering with family. Each bedroom includes its own walk-in closet, providing plenty of storage space, while the primary suite offers a private retreat with a double vanity and oversized shower. Additional highlights include a walk-in laundry room, covered front porch ideal for morning coffee or evening relaxation, and a cozy campfire/sitting area for outdoor enjoyment. The 2-car carport provides convenient covered parking, and the recently replaced HVAC system ensures year-round comfort. For those seeking even more space or multi-generational living options, the neighboring property at 390 Sherrill Drive—featuring 10 beautiful acres—is also available for purchase. Together, these properties offer a unique opportunity to create a family compound or private homestead with plenty of room to grow. Enjoy the quiet life surrounded by nature, just minutes from modern conveniences. This property truly combines comfort, charm, and country serenity in one inviting package!
Contact an agent
Home facts
- Year built:2015
- Listing ID #:330208
- Added:53 day(s) ago
- Updated:December 18, 2025 at 02:37 AM
Rooms and interior
- Bedrooms:3
- Total bathrooms:2
- Full bathrooms:2
Structure and exterior
- Year built:2015
Schools
- High school:11-Blacksburg High
- Middle school:11-Blacksburg Middle
- Elementary school:11-Blacksburg Elementary
Utilities
- Water:Well
- Sewer:Septic Tank
Finances and disclosures
- Price:$164,000
- Tax amount:$790 (2024)
New listings near 389 Sherrill Drive
$139,900Pending3 beds 2 baths1,151 sq. ft.474 Bluebird Lane, Blacksburg, SC 29702-1766
MLS# 331621Listed by: EXP REALTY LLC- New
$199,900Active3 beds 2 baths1,482 sq. ft.808 Old Buffalo Church Road, Blacksburg, SC 29702-1766
MLS# 331622Listed by: EXP REALTY LLC
$485,000Active26.11 Acres151 Cobb Road, Blacksburg, SC 29702
MLS# 4321842Listed by: MOSSY OAK PROPERTIES LAND AND LUXURY
$229,999Active3 beds 3 baths1,633 sq. ft.129 Lakeview Drive, Blacksburg, SC 29702
MLS# 4322615Listed by: ERA LIVE MOORE
$550,000Active23.95 Acres00 Mill Creek Road, Blacksburg, SC 29702
MLS# 4321597Listed by: CANN REALTY, LLC
$950,000Active16.87 Acres137 Crawford Road Road, Blacksburg, SC 29702
MLS# 330854Listed by: JOHN WALL & ASSOCIATES REALTY
$160,000Active2 beds 1 baths1,025 sq. ft.304 S Rutherford Street, Blacksburg, SC 29702
MLS# 330690Listed by: KELLER WILLIAMS REALTY
$15,000Pending1.25 AcresTBD Lyman Drive Drive, Blacksburg, SC 29702
MLS# 330238Listed by: JOHN WALL & ASSOCIATES REALTY
$379,900Active3 beds 2 baths2,240 sq. ft.250 Garden Lakes, Blacksburg, SC 29702
MLS# 330214Listed by: KELLER WILLIAMS REALTY
$624,000Active39 Acres0 Old Yorkville Road, Blacksburg, SC 29702
MLS# 4314683Listed by: FALLS REAL ESTATE LLC