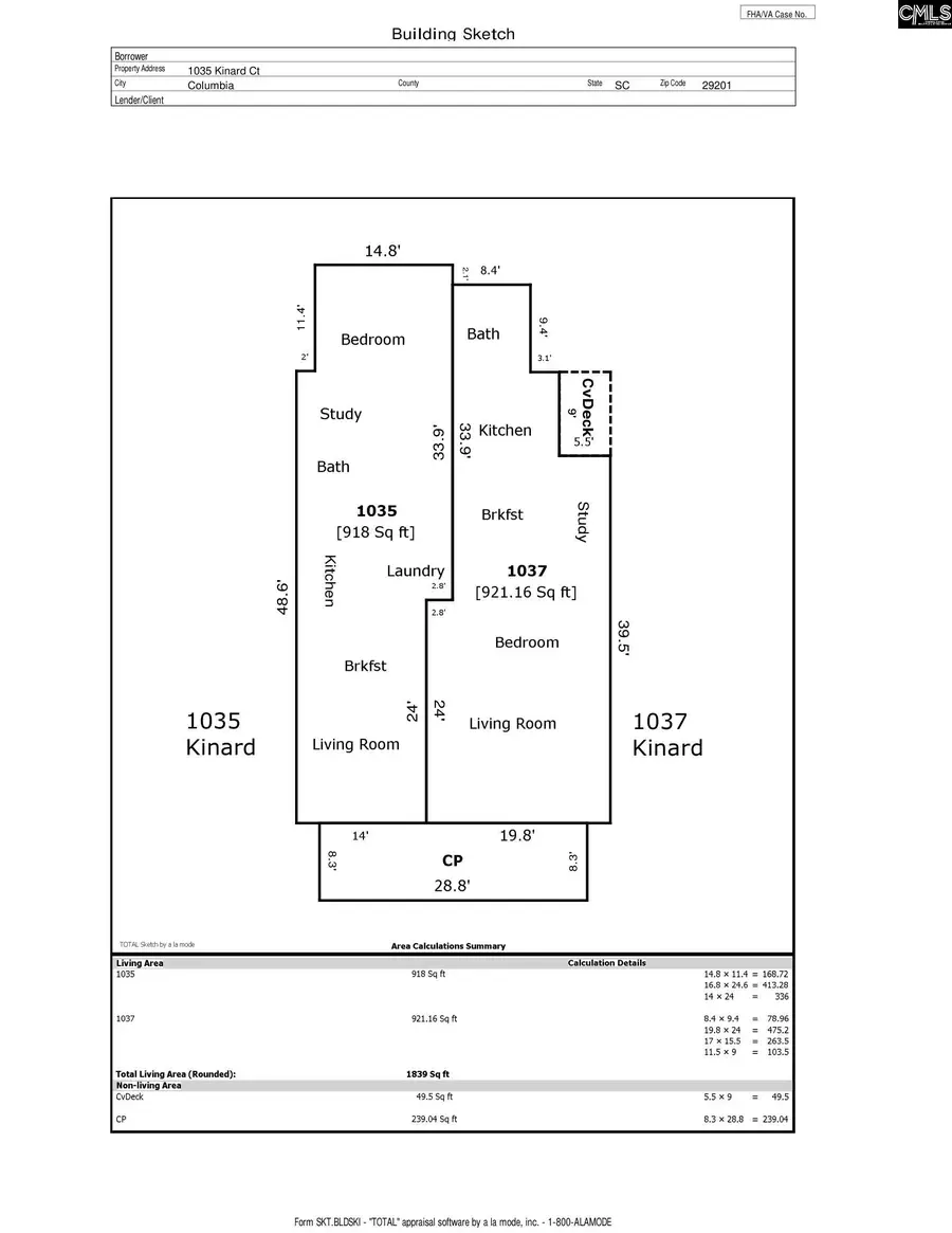
1035 Kinard Court, Columbia, SC 29201

Local realty services provided by:Better Homes and Gardens Real Estate Medley
1035 Kinard Court,Columbia, SC 29201
$325,000
  • - Beds
  • 2 Baths
  • 1,839 sq. ft.
  • Multi-family
  • Active
Listed by: heather moseley, ashlyn ancone
Office: keller williams palmetto
MLS#:629444
Source:SC_CML

Price summary

  • Price:$325,000
  • Price per sq. ft.:$176.73

About this home

Charming duplex in the highly desirable Elmwood Park neighborhood, just minutes from the University of South Carolina! Each side features a well-appointed 1-bedroom, 1-bath layout. Enjoy the flexibility to live in one unit while renting the other to offset your mortgage, or easily convert the property back into a single-family home to suit your needs. Currently the right side (1037) is a long term rental and the left side (1035) is AirBNB. Nestled in a walkable community with convenient access to downtown Columbia, dining, and local attractions, this property is perfect for investors, students, or owner-occupants alike. Don’t miss this rare opportunity in one of Columbia’s most sought-after areas! Transferable AirBNB permits in hand. Disclaimer: CMLS has not reviewed and, therefore, does not endorse vendors who may appear in listings.

Contact an agent

contact an agent

Yes, I would like more information. Please use and/or share my information with a BHGRE®  affiliated agent to contact me about my real estate needs. By clicking Send message, I request to be contacted by phone or text message and consent to being contacted by automated means. I understand that my consent to receive calls or texts is not a condition of purchasing any property, goods, or services. Alternatively, I understand that I can access real estate services by email or I can contact the agent myself.

If a BHGRE®  affiliated agent is not available in the area where I need assistance, I agree to be contacted by a real estate agent affiliated with another brand owned or licensed by Anywhere Real Estate (CENTURY 21® , Coldwell Banker® , Corcoran® , ERA® , Sotheby's International Realty® ).
 I acknowledge that I have read and agree to theTerms of useandPrivacy notice

Home facts

  • Year built:1925
  • Listing ID #:629444
  • Added:6 day(s) ago
  • Updated:March 25, 2026 at 03:57 PM

Rooms and interior

  • Total bathrooms:2
  • Full bathrooms:2
  • Living area:1,839 sq. ft.

Heating and cooling

  • Cooling:Central
  • Heating:Tenant

Structure and exterior

  • Year built:1925
  • Building area:1,839 sq. ft.
  • Construction Materials:Wood
  • Levels:1 Story

Schools

  • High school:Columbia
  • Middle school:St Andrews
  • Elementary school:Logan

Utilities

  • Water:Owner
  • Sewer:Tenant

Finances and disclosures

  • Price:$325,000
  • Price per sq. ft.:$176.73

Parking

  • Total parking spaces:3
Last Updated: March 25, 2026 The data relating to real estate on this Web site derive in part from the Carolina Multiple Listing Services, Inc. IDX program. Brokers make an effort to deliver accurate information, but buyers should independently verify any information on which they will rely in a transaction. All properties are subject to prior sale, change or withdrawal. Neither Better Homes and Gardens Real Estate Medleynor any listing broker shall be responsible for any typographical errors, misinformation, or misprints, and they shall be held totally harmless from any damages arising from reliance upon this data. This data is provided exclusively for consumers' personal, non-commercial use and may not be used for any purpose other than to identify prospective properties they may be interested in purchasing. Copyright 2026 Carolina Multiple Listing Services, Inc.