TBD Mark Rd, Dillon, SC 29536
Local realty services provided by:Better Homes and Gardens Real Estate Paracle
TBD Mark Rd,Dillon, SC 29536
$199,900
- 4 Beds
- 2 Baths
- 1,791 sq. ft.
- Mobile / Manufactured
- Active
Office: diamond shores realty
MLS#:2604768
Source:SC_CCAR
Price summary
- Price:$199,900
- Price per sq. ft.:$111.61
About this home
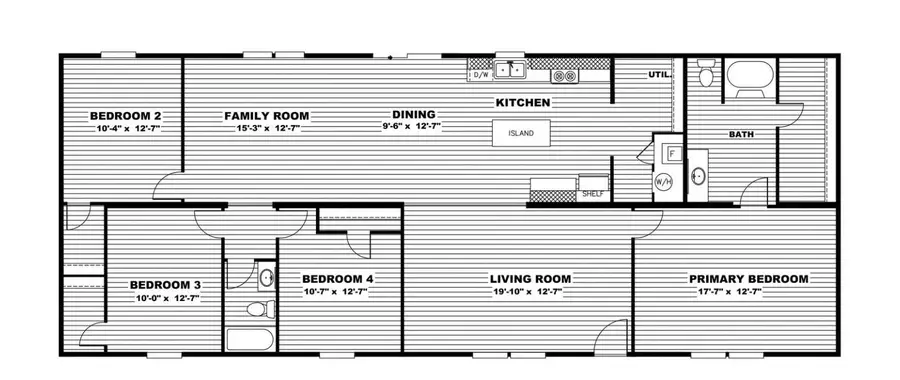
Presale Opportunity: Brand-New 4-Bed/2-Bath Manufactured Home on 0.5 Acres – Mark Road, Dillon, SC! Unlock spacious, affordable family living in the serene countryside of Dillon County with this impressive presale manufactured home, expertly placed on a generous 0.5-acre lot (portion of Tax Map PIN# 081-00-00-034) along quiet Mark Road. Located just minutes from Dillon's conveniences, this peaceful rural spot offers easy access to I-95 for commutes to Florence, Lumberton, NC, and surrounding areas—plus nearby schools, shopping, dining, and essential services. This contemporary manufactured home boasts: 4 generous bedrooms and 2 full baths—perfect for growing families, multi-generational living, or extra space for guests, home offices, or hobbies. Open-concept design with a bright kitchen featuring modern appliances, plenty of cabinetry, and a functional layout that flows seamlessly into the living and dining areas. High-quality build compliant with South Carolina standards, including a permanent foundation, attractive skirting, steps/porch entry, and energy-efficient features like central HVAC, washer/dryer connections, and thoughtful finishes for everyday comfort. Expansive outdoor potential on your private half-acre—room for a backyard oasis, garden, playset, parking, or simply enjoying the quiet, natural surroundings with plenty of breathing room. Dillon County's zoning accommodates manufactured homes on individual lots like this (with proper permitting and setup), providing flexibility without HOA rules—ideal for first-time homeowners, expanding families, retirees downsizing in style, or smart investors eyeing a reliable rental in a stable rural market. Priced attractively in the presale stage—lock in your preferred customizations, builder incentives, and delivery/installation timeline before it's gone! In Dillon's appreciating area, where land and housing demand remains steady, this is an exceptional chance to own a brand-new, move-in-ready 4-bed home on a sizable lot with long-term value. For full pricing, available floor plan variations (inspired by popular models like spacious double-wides from trusted builders), customization options, lot photos, or to arrange a private viewing and discuss the next steps, contact me right away. Homes like this move fast—secure your dream on Mark Road today! Ready to explore? I'm here to help every step of the way—let's make this your new home!...
Contact an agent
Home facts
- Year built:2025
- Listing ID #:2604768
- Added:60 day(s) ago
- Updated:April 25, 2026 at 02:03 PM
Rooms and interior
- Bedrooms:4
- Total bathrooms:2
- Full bathrooms:2
- Living area:1,791 sq. ft.
Structure and exterior
- Year built:2025
- Building area:1,791 sq. ft.
- Lot area:0.5 Acres
- Architectural Style:Mobile Home
Schools
- High school:Outside of Horry & Georgetown Counties
- Middle school:Outside of Horry & Georgetown Counties
- Elementary school:Outside of Horry & Georgetown Counties
Finances and disclosures
- Price:$199,900
- Price per sq. ft.:$111.61
Parking
- Total parking spaces:4
- Parking description:Driveway
New listings near TBD Mark Rd
- New
$275,000Active3 beds 3 baths2,176 sq. ft.1220 E Jackson Street, Dillon, SC 29536
MLS# 2601690Listed by: DILLON REALTY INC - New
$6,000Active3.64 AcresTBD N Highway 301, Dillon, SC 29536
MLS# 2601641Listed by: DILLON REALTY INC - New
$199,500Active3 beds 3 baths2,346 sq. ft.701 E Harrison St, Dillon, SC 29536
MLS# 2601634Listed by: DILLON REALTY INC - New
$35,000Active1.44 AcresTBD Twilight Rd., Dillon, SC 29536
MLS# 2610310Listed by: REALTY ONE GROUP DOCKSIDE - New
$249,900Active4 beds 2 baths2,385 sq. ft.1115 N 4th Avenue, Dillon, SC 29536
MLS# 2601576Listed by: DILLON REALTY INC - New
$250,000Active0.63 AcresTBD N Highway 301, Dillon, SC 29536
MLS# 2601555Listed by: DILLON REALTY INC - New
$59,900Active5.02 AcresMta 1 Judson Road #Mta 1, Dillon, SC 29536
MLS# 222850Listed by: THIRD MASON REAL ESTATE INC. - New
$11,900Active0.17 Acres406 Martin Luther King Jr Blvd, Dillon, SC 29536
MLS# 2609844Listed by: REDFIN CORPORATION - New
$1,200,000Active34.65 Acres114 Fairfield Rd, Dillon, SC 29536
MLS# 2601494Listed by: DILLON REALTY INC
$210,000Active34.3 AcresTBD Tobacco Land Road, Dillon, SC 29536
MLS# 2601453Listed by: DILLON REALTY INC