117 Raven Lane, Easley, SC 29642
Local realty services provided by:Better Homes and Gardens Real Estate Palmetto
117 Raven Lane,Easley, SC 29642
$367,990
- 3 Beds
- 3 Baths
- - sq. ft.
- Single family
- Pending
Listed by: chelsea cathcart
Office: drb group south carolina, llc.
MLS#:1575728
Source:SC_GGAR
Price summary
- Price:$367,990
- Monthly HOA dues:$45.67
About this home
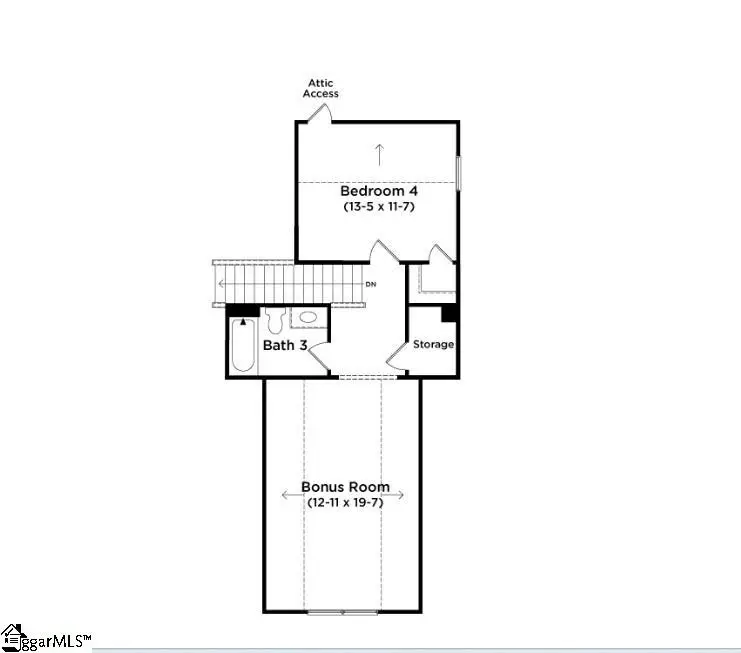
Welcome to The Reserve at Livingston Park! We are the only new homes in Easley with upscale features just off Hwy 123. The Cooper 3 floor plan at DRB Homes is a versatile, ranch-style home offering comfortable living spaces with flexible design options. As you enter into your spacious entry hall, you have a bedroom and full bath adjacent to the foyer along with a formal dining room. The open-concept design features a spacious kitchen with an oversized island with sink that is perfect for cooking and entertaining, beautiful white cabinetry, Quartz countertops, a tiled backsplash, and stainless steel gas appliances. It overlooks the breakfast area and family room, creating a seamless flow between the spaces. The living room features high ceilings, and tall windows for lots of natural light. Off the breakfast room is a covered back portch with ceiling fan that looks out onto your backyard making it a perfect place for those Summer get togethers. The Primary Suite is situated off the living room and features double vanities, walk in closet and large step in shower . Upstairs you have an additional bedroom with full bath along with a huge multi use room perfect for a home office or game room. Smart home technology, energy-efficient construction,and a dedicated local warranty team ensure lasting convenience and comfort. The Reserve at Livingston Park is conveniently located in the sought after Easley, SC area only 11 miles from downtown Greenville and 20 miles from Table Rock, Clemson University, Lake Hartwell, and Lake Keowee. Behind the community, the mile-long phase 1 of the Brushy Creek Greenway Trail leads directly to the impressive J.B. Owens Recreation Complex. Enjoy shopping in the rapidly growing city of Easley and nearby Powdersville. Access to sought-after schools, ample employment, easy commuting, and Interstate 85. Located near plenty of shopping, restaurants, and parks on the Highway 123 corridor including the Doodle Trail and Nalley Brown Nature Park.
Contact an agent
Home facts
- Year built:2025
- Listing ID #:1575728
- Added:1 day(s) ago
- Updated:November 24, 2025 at 09:40 PM
Rooms and interior
- Bedrooms:3
- Total bathrooms:3
- Full bathrooms:3
Heating and cooling
- Cooling:Electric
- Heating:Natural Gas
Structure and exterior
- Roof:Architectural
- Year built:2025
- Lot area:0.17 Acres
Schools
- High school:Easley
- Middle school:Richard H. Gettys
- Elementary school:Forest Acres
Utilities
- Water:Public
- Sewer:Public Sewer
Finances and disclosures
- Price:$367,990
New listings near 117 Raven Lane
- New
$324,900Active4 beds 3 baths414 Granby Trail, Easley, SC 29642
MLS# 1575735Listed by: MTH SC REALTY, LLC - New
$349,900Active4 beds 3 baths412 Granby Trail, Easley, SC 29642
MLS# 1575739Listed by: MTH SC REALTY, LLC - New
$999,640Active4 beds 4 baths3,111 sq. ft.190 Jameson Road, Easley, SC 29640
MLS# 20294920Listed by: HERLONG SOTHEBY'S INT'L REALTY -CLEMSON
$357,990Pending4 beds 3 baths113 Raven Lane, Easley, SC 29642
MLS# 1575713Listed by: DRB GROUP SOUTH CAROLINA, LLC
$354,990Pending4 beds 3 baths447 Briggs Drive, Easley, SC 29642
MLS# 1575720Listed by: DRB GROUP SOUTH CAROLINA, LLC
$427,990Pending4 beds 3 baths419 Briggs Drive, Easley, SC 29642
MLS# 1575726Listed by: DRB GROUP SOUTH CAROLINA, LLC- New
$379,900Active5 beds 4 baths2,900 sq. ft.413 Granby Trail, Easley, SC 29642
MLS# 331207Listed by: MTH SC REALTY, LLC
$398,990Pending4 beds 3 baths111 Raven Lane, Easley, SC 29642
MLS# 1575700Listed by: DRB GROUP SOUTH CAROLINA, LLC
$357,990Pending3 beds 3 baths102 Raven Lane, Easley, SC 29642
MLS# 1575703Listed by: DRB GROUP SOUTH CAROLINA, LLC