88 Wilson Street, Greer, SC 29651
Local realty services provided by:Better Homes and Gardens Real Estate Medley
88 Wilson Street,Greer, SC 29651
$345,900
- 4 Beds
- 3 Baths
- - sq. ft.
- Single family
- Active
Listed by: jason d alverson
Office: access realty, llc.
MLS#:1583535
Source:SC_GGAR
Price summary
- Price:$345,900
About this home
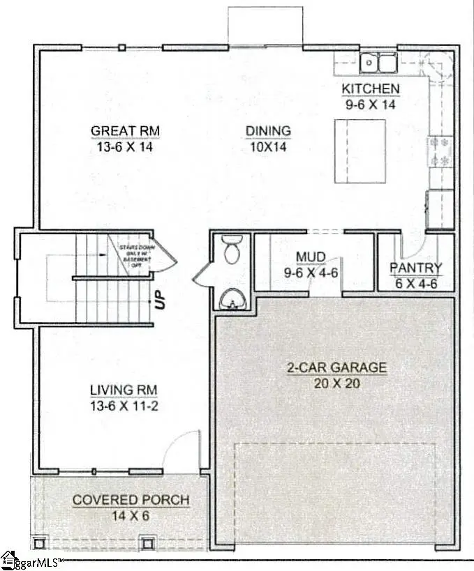
New Construction in a Prime Location – Modern Comfort & Style on Wilson St! This stunning 4-bedroom, 3-bathroom new construction home that is expected to be completed in early Spring features 2,266 sq ft. of thoughtfully designed living space. This home combines upscale finishes, practical features, and timeless curb appeal with white siding, dark accents, and stone touches across the front elevation. A covered front porch, a large covered patio, and a two-car garage with insulated doors complete the exterior. A dedicated office/flex-space and three guest bedrooms offer great layout flexibility for any needs a family may need! Situated just half a mile from Downtown Greer, this home offers amazing convenience with walking access to the shopping, restaurants, and parks that make Greer so special.
Contact an agent
Home facts
- Listing ID #:1583535
- Added:49 day(s) ago
- Updated:April 23, 2026 at 12:18 PM
Rooms and interior
- Bedrooms:4
- Total bathrooms:3
- Full bathrooms:2
- Half bathrooms:1
- Flooring:Carpet, Laminate
- Kitchen Description:Dishwasher, Microwave
Heating and cooling
- Cooling:Electric
- Heating:Electric, Forced Air
- Central air:Yes
Structure and exterior
- Roof:Architectural
- Lot Features:1/2 Acre or Less
- Architectural Style:Traditional
- Construction Materials:Stone, Wood Siding
- Exterior Features:Patio
- Foundation Description:Slab
- Levels:2 Story
Schools
- High school:Greer
- Middle school:Riverside
- Elementary school:Crestview
Utilities
- Water:Public
- Sewer:Private Sewer
Finances and disclosures
- Price:$345,900
- Tax amount:$115
Features and amenities
- Appliances:Dishwasher, Electric Cooktop, Electric Oven, Electric Water Heater, Microwave
- Laundry features:2nd Floor, Walk-in
- Amenities:int_feat_Granite Counters, int_feat_High Ceilings, int_feat_Open Floorplan
Parking
- Total parking spaces:2
- Parking description:Attached, Concrete
- Garage:Yes
- Garage spaces:2
New listings near 88 Wilson Street
- New
$500,000Active4 beds 2 baths106 N Lady Slipper Lane, Greer, SC 29650
MLS# 1589281Listed by: COLDWELL BANKER CAINE/WILLIAMS - New
$699,900Active3 beds 3 baths207 Traymore Way, Greer, SC 29650
MLS# 1589236Listed by: ENCORE REALTY - New
$389,500Active3 beds 3 baths711 A N Main Street, Greer, SC 29651
MLS# 1589250Listed by: BHHS C DAN JOYNER - MIDTOWN - New
$740,000Active4 beds 3 baths133 River Oaks Road, Greer, SC 29650-3245
MLS# 1589204Listed by: RE/MAX HALO - Open Sun, 1 to 3pmNew
$300,000Active3 beds 2 baths113 Carolina Avenue, Greer, SC 29650-1807
MLS# 1589193Listed by: KELLER WILLIAMS DRIVE - New
$324,650Active4 beds 3 baths132 Cotter Lane, Greer, SC 29650
MLS# 1589172Listed by: HERLONG SOTHEBY'S INTERNATIONAL REALTY - New
$435,000Active5 beds 4 baths721 Burghley Circle, Greer, SC 29651
MLS# 1589147Listed by: EXPERT REAL ESTATE TEAM
$1,100,000Pending4 beds 4 baths305 Golden Wings Way, Greer, SC 29650
MLS# 1589156Listed by: COLDWELL BANKER CAINE/WILLIAMS- New
$365,000Active3 beds 3 baths106 Wakelon Drive, Greer, SC 29651
MLS# 1589103Listed by: BLUEFIELD REALTY GROUP - New
$519,900Active4 beds 4 baths4 Glencreek Drive, Greer, SC 29650
MLS# 1589139Listed by: COLDWELL BANKER CAINE/WILLIAMS