4124 Sc-414 Highway, Landrum, SC 29651
Local realty services provided by:Better Homes and Gardens Real Estate Young & Company
4124 Sc-414 Highway,Landrum, SC 29651
$360,000
- 4 Beds
- 4 Baths
- - sq. ft.
- Single family
- Active
Listed by: kendall crews
Office: enrg global realty, llc.
MLS#:1588071
Source:SC_GGAR
Price summary
- Price:$360,000
About this home
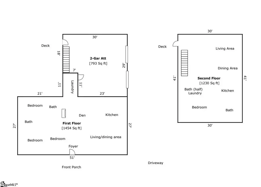
Spacious Cape Cod-style home situated on approximately 0.85 acres in Landrum, SC. This 4 bedroom, 3.5 bath-home offers 2,684 square feet with a functional layout and multiple living areas. Features include a welcoming front porch, rear double deck, fireplace, and a 2 car attached garage. The second-level living space includes a full kitchen, living area, primary bedroom, full bath, half bath, and separate laundry, offering flexible use options. Peaceful rural setting with convenient access to Hwy 14 and nearby amenities. Home is being sold as-is and offers a great opportunity to update and make it your own.
Contact an agent
Home facts
- Year built:1971
- Listing ID #:1588071
- Added:9 day(s) ago
- Updated:April 23, 2026 at 12:18 PM
Rooms and interior
- Bedrooms:4
- Total bathrooms:4
- Full bathrooms:3
- Half bathrooms:1
- Flooring:Brick, Vinyl
- Kitchen Description:Microwave, Refrigerator
Heating and cooling
- Heating:Electric, Heat Pump
- Central air:Yes
Structure and exterior
- Roof:Metal
- Year built:1971
- Lot Features:1/2 - Acre, Few Trees
- Architectural Style:Cape Cod, Ranch
- Construction Materials:Vinyl Siding
- Exterior Features:Deck
- Foundation Description:Crawl Space
- Levels:2 Story
Schools
- High school:Blue Ridge
- Middle school:Blue Ridge
- Elementary school:Skyland
Utilities
- Water:Public
- Sewer:Septic Tank
Finances and disclosures
- Price:$360,000
- Tax amount:$967
Features and amenities
- Appliances:Electric Oven, Gas Water Heater, Microwave, Refrigerator
- Laundry features:1st Floor, 2nd Floor, Laundry Room, Multiple Hookups
- Amenities:int_feat_2nd Stair Case, int_feat_Split Floor Plan
Parking
- Total parking spaces:2
- Parking description:Attached, Circular Driveway, Driveway, Gravel
- Garage:Yes
- Garage spaces:2
New listings near 4124 Sc-414 Highway
- New
$310,000Active3 beds 2 baths1,552 sq. ft.200 Kirby St, Landrum, SC 29356
MLS# 336251Listed by: MARKETSOLD REALTY - New
$250,000Active3 beds 2 baths1,131 sq. ft.111 W Crawford Street, Landrum, SC 29356
MLS# 4369383Listed by: KELLER WILLIAMS MTN PARTNERS, LLC - New
$289,947Active4 beds 2 baths1,656 sq. ft.276 Talbert Trail, Landrum, SC 29356
MLS# 335845Listed by: DFH REALTY GEORGIA, LLC - New
$314,387Active4 beds 3 baths2,428 sq. ft.280 Talbert Trail, Landrum, SC 29356
MLS# 335847Listed by: DFH REALTY GEORGIA, LLC - New
$302,827Active4 beds 3 baths1,842 sq. ft.284 Talbert Trail, Landrum, SC 29356
MLS# 335848Listed by: DFH REALTY GEORGIA, LLC - New
$289,815Active3 beds 2 baths1,656 sq. ft.288 Talbert Trail, Landrum, SC 29356
MLS# 335849Listed by: DFH REALTY GEORGIA, LLC - New
$312,140Active3 beds 3 baths2,428 sq. ft.285 Talbert Trail, Landrum, SC 29356
MLS# 335850Listed by: DFH REALTY GEORGIA, LLC - New
$304,645Active3 beds 3 baths2,266 sq. ft.277 Talbert Trail, Landrum, SC 29356
MLS# 335852Listed by: DFH REALTY GEORGIA, LLC
$285,000Active2 beds 1 baths1,200 sq. ft.209 N Howard Ave, Landrum, SC 29356
MLS# 335792Listed by: MARKETSOLD REALTY
$289,900Pending4 beds 2 baths1,727 sq. ft.202 S Howard Avenue, Landrum, SC 29356
MLS# 335740Listed by: CENTURY 21 BLACKWELL & CO