743 Grateful Dr., Little River, SC 29566
Local realty services provided by:Better Homes and Gardens Real Estate Paracle
743 Grateful Dr.,Little River, SC 29566
$331,315
- 4 Beds
- 3 Baths
- 2,480 sq. ft.
- Single family
- Active
Office: dr horton
MLS#:2601770
Source:SC_CCAR
Price summary
- Price:$331,315
- Price per sq. ft.:$133.59
- Monthly HOA dues:$65
About this home
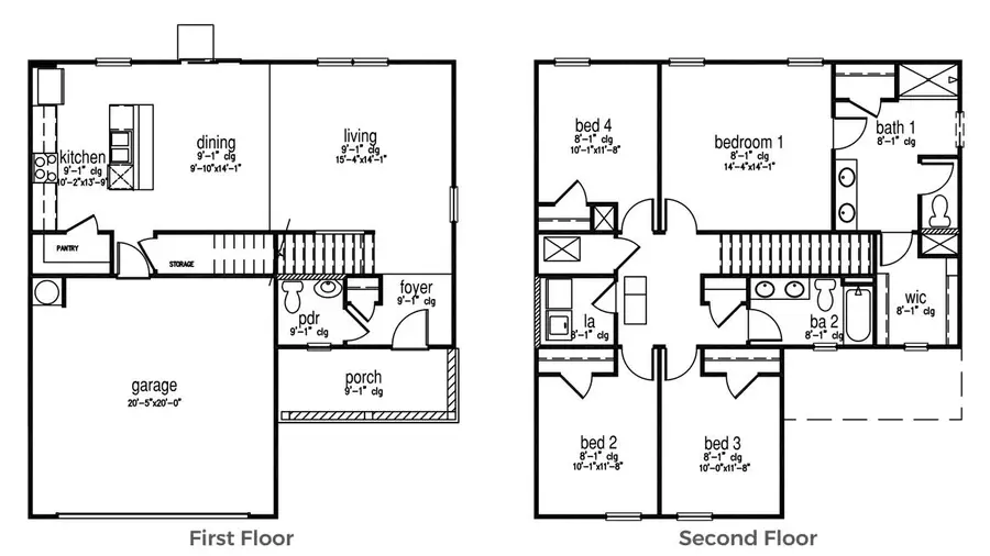
Welcome to Sandrigde Park, located in Little River. The area is known for their deep-sea fishing charters, fresh seafood, and their famous Blue Crab Festival. This area is only 20 miles from the hustle and bustle of Myrtle Beach. Residents are drawn to Little River for its more relaxed, laid-back feel. This quaint fishing village is close to a few major roadways that can quickly take you to larger cities and within a short drive of Longs, Cherry Grove Beach and North Myrtle Beach. The Arden floor plan features an open flow between the kitchen, dining and living area that is great for entertaining. The well-designed floorplan offers the open concept and a space that can be decorated and lived-in in many ways. The kitchen comes complete with a center island, a tile backsplash, granite countertops, a corner walk in pantry, 36" cabinets and stainless steel appliances including a refrigerator! Beautiful luxury vinyl plank flooring throughout the main living areas! A second floor owner's suite is large with a spacious walk in closet and a bathroom that features double sinks, 5' walk-in shower, garden tub and plenty of space. Three secondary bedrooms and another full bathroom complete the upstairs area. Enjoy the coastal breezes on the covered back porch. This is America's Smart Home! Each of our homes comes with an industry leading smart home technology package that will allow you to control the thermostat, front door light and lock, and video doorbell from your smartphone. *Photos are of a similar Arden home. (Home and community information, including pricing, included features, terms, availability and amenities, are subject to change prior to sale at any time without notice or obligation. Square footages are approximate. Pictures, photographs, colors, features, and sizes are for illustration purposes only and will vary from the homes as built. Equal housing opportunity builder.)...
Contact an agent
Home facts
- Year built:2026
- Listing ID #:2601770
- Added:94 day(s) ago
- Updated:April 25, 2026 at 02:03 PM
Rooms and interior
- Bedrooms:4
- Total bathrooms:3
- Full bathrooms:2
- Half bathrooms:1
- Flooring:Carpet, Luxury Vinyl Plank
- Kitchen Description:Breakfast Bar, Dishwasher, Disposal, Kitchen Island, Microwave, Range, Refrigerator
- Living area:2,480 sq. ft.
Heating and cooling
- Cooling:Central Air
- Heating:Central, Electric
- Central air:Yes
Structure and exterior
- Year built:2026
- Building area:2,480 sq. ft.
- Lot area:0.26 Acres
- Lot Features:Cul De Sac
- Architectural Style:Traditional
- Construction Materials:Vinyl Siding, Wood Frame
- Exterior Features:Front Porch, Porch, Rear Porch
- Foundation Description:Slab
- Levels:2 Story
Schools
- High school:North Myrtle Beach High School
- Middle school:North Myrtle Beach Middle School
- Elementary school:Waterway Elementary
Utilities
- Water:Public, Water Available
- Sewer:Sewer Available
Finances and disclosures
- Price:$331,315
- Price per sq. ft.:$133.59
Features and amenities
- Laundry features:Washer Hookup
- Amenities:Attic
- Smart home:Yes
Parking
- Total parking spaces:4
- Parking description:Attached, Garage, Garage Door Opener, Two Car Garage
- Garage:Yes
- Garage spaces:2
New listings near 743 Grateful Dr.
- New
$135,000Active2 beds 2 baths1,080 sq. ft.3700 Golf Colony Lane #J3, Little River, SC 29566
MLS# 2610731Listed by: KELLER WILLIAMS THE FORTURRO GROUP - Open Sat, 12 to 2pmNew
$489,900Active4 beds 3 baths2,772 sq. ft.1138 Heather Glen Blvd., Little River, SC 29566
MLS# 2610644Listed by: CENTURY 21 BROADHURST - New
$320,000Active3 beds 2 baths2,157 sq. ft.3910 Mallard Way, Little River, SC 29566
MLS# 2610645Listed by: REALTY ONE GROUP DOCKSIDE - New
$161,000Active2 beds 2 baths1,000 sq. ft.3700 Golf Colony Lane #24C, Little River, SC 29566
MLS# 2610636Listed by: PALMETTO COASTAL HOMES - Open Sat, 11am to 1pmNew
$349,000Active3 beds 2 baths2,070 sq. ft.840 Sultana Dr., Little River, SC 29566
MLS# 2610617Listed by: COLDWELL BANKER SEA COAST ADVA - New
$119,900Active2 beds 2 baths1,100 sq. ft.3700 Golf Colony Lane #2J, Little River, SC 29566
MLS# 2610601Listed by: WAVE BEACH REALTY, LLC - New
$25,000Active0 Acres4396 Baldwin Ave., Little River, SC 29566
MLS# 2610612Listed by: THE EDGEWATER GROUP OF SC LLC - New
$145,000Active1 beds 1 baths638 sq. ft.3700 Golf Colony Lane #13-D, Little River, SC 29566
MLS# 2610582Listed by: PLATINUM REAL ESTATE - New
$224,900Active2 beds 2 baths1,760 sq. ft.4285 Parkway Ln. #4285, Little River, SC 29566
MLS# 2610546Listed by: CARSON REALTY GROUP - New
$849,990Active4 beds 3 baths4,316 sq. ft.1004 Triton Ave., Little River, SC 29566
MLS# 2610555Listed by: ASHTON CHARLESTON RESIDENTIAL