113 Lancaster Boulevard, Okatie, SC 29909
Local realty services provided by:Better Homes and Gardens Real Estate Paracle
113 Lancaster Boulevard,Okatie, SC 29909
$1,799,388
- 4 Beds
- 5 Baths
- 3,742 sq. ft.
- Single family
- Active
Listed by: sloan heintschel, tanner sutphin
Office: maxey blackstream christie's international real estate (898)
MLS#:503353
Source:SC_HHMLS
Price summary
- Price:$1,799,388
- Price per sq. ft.:$480.86
About this home
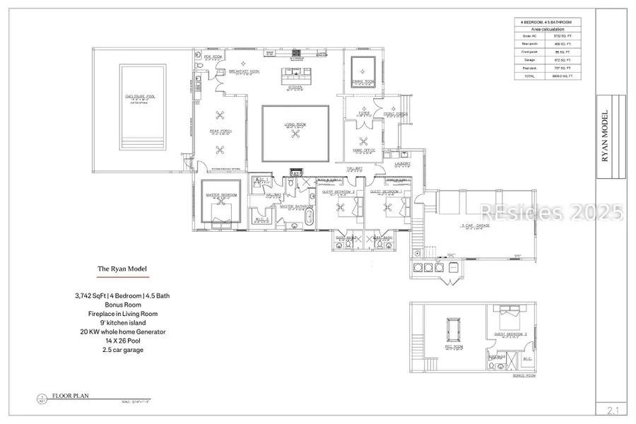
Located within the private gates of Berkeley Hall, this exceptional proposed construction opportunity invites you to experience luxury living at its finest. Celebrated for its exclusivity, world-class amenities, and championship golf, Berkeley Hall offers a lifestyle defined by elegance, privacy, and refinement; a level of sophistication that is truly unparalleled in the Lowcountry. This residence will be thoughtfully crafted by May Residential Builders, a distinguished luxury builder known for delivering homes of extraordinary quality, efficiency, and structural integrity. Constructed using premium materials and engineered to 180 mph hurricane-rated standards, each home is designed to provide superior durability without sacrificing architectural beauty. May Residential Builders is a recent Lighthouse Award winner, earning recognition for Best Exterior and Best Kitchen, along with Second Place for Interior Design, further solidifying their reputation for excellence in custom home construction. The featured Ryan model showcases just over 3,700 square feet of well-appointed living space, offering four bedrooms, four-and-a-half baths, and a desirable three-car garage. The layout is both functional and elegant, seamlessly blending open living areas with private bedroom suites designed for comfort and flexibility. While this model serves as the inspiration, buyers have the opportunity to fully customize the home - tailoring floor plans, finishes, and design elements to suit their personal lifestyle and vision. Known for creating homes that are not only luxurious but also highly efficient, May Residential Builders delivers exceptional craftsmanship and thoughtful design at every level. This is a rare opportunity to build a custom residence from the ground up within one of the Southeast's most sought-after private communities, guided by a builder whose commitment to quality and innovation is second to none.
Contact an agent
Home facts
- Year built:2026
- Listing ID #:503353
- Added:396 day(s) ago
- Updated:December 22, 2025 at 03:17 PM
Rooms and interior
- Bedrooms:4
- Total bathrooms:5
- Full bathrooms:4
- Half bathrooms:1
- Living area:3,742 sq. ft.
Heating and cooling
- Cooling:Central Air, Heat Pump
- Heating:Heat Pump
Structure and exterior
- Roof:Asphalt
- Year built:2026
- Building area:3,742 sq. ft.
- Lot area:0.48 Acres
Finances and disclosures
- Price:$1,799,388
- Price per sq. ft.:$480.86
New listings near 113 Lancaster Boulevard
- New
$678,900Active3 beds 3 baths2,730 sq. ft.52 Estuary Drive, Bluffton, SC 29909
MLS# 503456Listed by: K. HOVNANIAN HOMES (580) - New
$620,000Active5 beds 4 baths432 Hulston Landing Road, Bluffton, SC 29909
MLS# 502522Listed by: THE COX TEAM BROKERED BY EXP (938A) - New
$1,850,000Active4 beds 4 baths3,925 sq. ft.102 Cutter Circle, Bluffton, SC 29909
MLS# 503193Listed by: KELLER WILLIAMS REALTY (322) - New
$375,000Active2 beds 2 baths1,438 sq. ft.39 Callisto Road, Okatie, SC 29909
MLS# 193835Listed by: HOWARD HANNA ALLEN TATE LOWCOU
$499,000Pending3 beds 2 baths2,168 sq. ft.101 Muirfield Drive, Bluffton, SC 29909
MLS# 193832Listed by: KISER & ASSOCIATES, INC- New
$505,000Active2 beds 2 baths1,712 sq. ft.18 French Garden Lane, Bluffton, SC 29909
MLS# 503291Listed by: WILLIAM RAVEIS - CAROLINA LLC (332) - New
$1,795,000Active4 beds 8 baths5,056 sq. ft.180 Good Hope Road, Bluffton, SC 29909
MLS# 503218Listed by: CHARTER ONE REALTY (063F) - New
$1,799,388Active4 beds 5 baths3,742 sq. ft.105 Lancaster Boulevard, Bluffton, SC 29909
MLS# 503373Listed by: MAXEY BLACKSTREAM CHRISTIE'S INTERNATIONAL REAL ESTATE (898) - New
$2,295,000Active3 beds 3 baths2,494 sq. ft.16 Tabby Links Lane, Okatie, SC 29909
MLS# 503362Listed by: SPRING ISLAND REALTY LLC (753) - New
$499,900Active3 beds 3 baths2,100 sq. ft.175 Mystic Point Drive, Bluffton, SC 29909
MLS# 502267Listed by: HOWARD HANNA ALLEN TATE LOWCOUNTRY (222)