619 Silver Fir Street, Piedmont, SC 29673
Local realty services provided by:Better Homes and Gardens Real Estate Medley
619 Silver Fir Street,Piedmont, SC 29673
$340,805
- 5 Beds
- 3 Baths
- - sq. ft.
- Single family
- Active
Listed by: marie zoltun
Office: dfh realty georgia, llc.
MLS#:1563073
Source:SC_GGAR
Price summary
- Price:$340,805
- Monthly HOA dues:$41.67
About this home
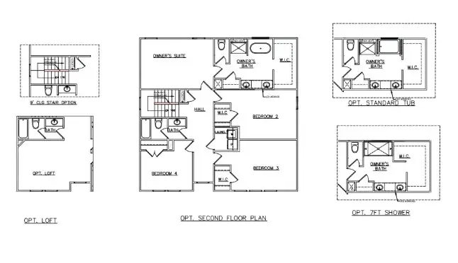
The Jodeco is its open concept, is one of Liberty’s most sought-after plans. Downstairs features a flex room that can be used as an office/study or 5th bedroom. The main floor has 9' ceilings, recessed electric fireplace, ceiling fan, and blinds included through the house. The thoughtfully arranged kitchen offers loads of cabinet and granite counter space, walk-in pantry, farmer's sink with pull-down sprayer faucet, cup-wash station, and stool bar. The owner's suite has a walk-in closet, full bath with double vessel sinks, 3 LED mirrors with anti-fog capabilities, stand-alone garden tub, separate tiled shower with built-in bench, tile flooring, and smart toilet. Granite counters in all bathrooms, LED lighting, Smart Home System features, UV air & surface treatment for HVAC, and the garage is prewired for electric cars! Enjoy your 10x12 patio overlooking your backyard. 1-yr Builder's & 10-yr Structural New Home Warranty. USDA 100% financing available.
Contact an agent
Home facts
- Year built:2024
- Listing ID #:1563073
- Added:117 day(s) ago
- Updated:October 29, 2025 at 03:55 PM
Rooms and interior
- Bedrooms:5
- Total bathrooms:3
- Full bathrooms:3
Heating and cooling
- Cooling:Electric
- Heating:Electric, Heat Pump
Structure and exterior
- Roof:Composition
- Year built:2024
- Lot area:0.14 Acres
Schools
- High school:Woodmont
- Middle school:Woodmont
- Elementary school:Sue Cleveland
Finances and disclosures
- Price:$340,805
New listings near 619 Silver Fir Street
- New
$375,000Active4 beds 3 baths1130 Tall Oaks Circle, Piedmont, SC 29673
MLS# 20294461Listed by: BHHS C DAN JOYNER - OFFICE A - New
$337,900Active4 beds 3 baths2,163 sq. ft.831 Crispin Street, Piedmont, SC 29673
MLS# 20294312Listed by: D.R. HORTON - New
$324,900Active4 beds 2 baths1,764 sq. ft.829 Crispin Street, Piedmont, SC 29673
MLS# 20294313Listed by: D.R. HORTON - New
$331,900Active3 beds 2 baths1,618 sq. ft.830 Crispin Street, Piedmont, SC 29673
MLS# 20294316Listed by: D.R. HORTON - New
$382,900Active5 beds 3 baths2,618 sq. ft.826 Crispin Street, Piedmont, SC 29673
MLS# 20294317Listed by: D.R. HORTON - New
$369,365Active5 beds 3 baths2,511 sq. ft.1111 Broadrum Street, Piedmont, SC 29673
MLS# 20294309Listed by: D.R. HORTON
$363,290Pending5 beds 3 baths828 Crispin Street, Piedmont, SC 29673
MLS# 1573568Listed by: D.R. HORTON
$354,490Pending5 beds 3 baths806 Crispin Street, Piedmont, SC 29673
MLS# 1573569Listed by: D.R. HORTON
$135,000Active2 beds 1 baths203 Cedar Drive, Piedmont, SC 29673
MLS# 20293718Listed by: BLACKSTREAM INTERNATIONAL RE
$327,900Active5 beds 3 baths2,352 sq. ft.5 Angel Wood Drive, Piedmont, SC 29673
MLS# 330098Listed by: MTH SC REALTY, LLC