726 Old Grove Road, Piedmont, SC 29673
Local realty services provided by:Better Homes and Gardens Real Estate Palmetto
726 Old Grove Road,Piedmont, SC 29673
$455,947
- 4 Beds
- 5 Baths
- - sq. ft.
- Single family
- Active
Listed by: sparkle beam
Office: jubilee realty, llc.
MLS#:1582673
Source:SC_GGAR
Price summary
- Price:$455,947
About this home
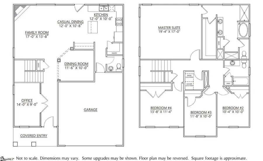
Located in the established Marion Grove subdivision in Greenville, this ready-to-build Phoenix floor plan offers the freedom of NO HOA in a convenient in-town location. One of six homes currently being built, this thoughtfully designed two-story home features approximately 2,366 sq ft, 4 bedrooms, and 2.5 baths, along with a 2-car garage. The main level welcomes you with a two-story foyer, a formal dining room, and a dedicated office or formal living room, providing flexible space for work or entertaining. The open-concept kitchen, family room, and casual dining area are highlighted by granite countertops and luxury vinyl plank flooring in the common areas, ideal for everyday living. Upstairs includes all four bedrooms, a two full bathrooms, upstairs laundry, and ample closet space throughout. The home offers a functional layout designed for both comfort and convenience. This home is ready to be built, with an estimated construction timeline of approximately 8 months from contract execution. Marion Grove provides a quiet residential setting with no HOA restrictions, while remaining just minutes from shopping, dining, medical facilities, and downtown Greenville, with easy access to parks, entertainment, and major roadways....
Contact an agent
Home facts
- Year built:2026
- Listing ID #:1582673
- Added:59 day(s) ago
- Updated:April 23, 2026 at 12:08 PM
Rooms and interior
- Bedrooms:4
- Total bathrooms:5
- Full bathrooms:3
- Half bathrooms:2
- Flooring:Carpet, Vinyl
- Kitchen Description:Dishwasher, Microwave
Heating and cooling
- Cooling:Electric
- Heating:Electric
Structure and exterior
- Roof:Architectural
- Year built:2026
- Lot Features:1/2 Acre or Less
- Architectural Style:Craftsman
- Construction Materials:Vinyl Siding
- Exterior Features:Front Porch, Patio
- Foundation Description:Slab
- Levels:2 Story
Schools
- High school:Southside
- Middle school:Tanglewood
- Elementary school:Grove
Utilities
- Water:Public
- Sewer:Public Sewer
Finances and disclosures
- Price:$455,947
- Tax amount:$2,024
Features and amenities
- Appliances:Dishwasher, Electric Cooktop, Free-Standing Electric Range, Gas Water Heater, Microwave
- Laundry features:2nd Floor, Electric Dryer Hookup, Laundry Room
- Amenities:int_feat_Countertops Quartz, int_feat_Granite Counters, int_feat_High Ceilings, int_feat_Pantry, int_feat_Walk-In Closet(s)
Parking
- Total parking spaces:2
- Parking description:Attached, Driveway, Paved
- Garage:Yes
- Garage spaces:2
New listings near 726 Old Grove Road
- New
$388,505Active4 beds 3 baths2,561 sq. ft.117 Higbie Drive, Piedmont, SC 29673
MLS# 20300388Listed by: D.R. HORTON - New
$348,990Active5 beds 3 baths214 Strudwick Way, Piedmont, SC 29673
MLS# 1589092Listed by: D.R. HORTON - New
$340,990Active4 beds 3 baths219 Strudwick Way, Piedmont, SC 29673
MLS# 1589093Listed by: D.R. HORTON - New
$149,900Active2 beds 1 baths210 Anderson Street, Piedmont, SC 29673
MLS# 20300298Listed by: CHARLES H. KNIGHT, LLC - Open Sun, 2 to 4pmNew
$264,900Active3 beds 2 baths105 S Fox Circle, Piedmont, SC 29673
MLS# 1588974Listed by: HOWARD HANNA ALLEN TATE - EASLEY POWDERSVILLE
$348,990Pending5 beds 3 baths217 Archstone Way, Piedmont, SC 29673
MLS# 1588941Listed by: D.R. HORTON- New
$348,990Active5 beds 3 baths2,361 sq. ft.217 Strudwick Way, Piedmont, SC 29673
MLS# 20300282Listed by: D.R. HORTON
$317,819Pending5 beds 3 baths11 Sealy Street, Piedmont, SC 29673
MLS# 1588302Listed by: LENNAR CAROLINAS LLC- New
$316,819Active5 beds 3 baths9 Sealy Street, Piedmont, SC 29673
MLS# 1588304Listed by: LENNAR CAROLINAS LLC
$279,900Active4 beds 2 baths1,590 sq. ft.220 Creekstone Drive, Piedmont, SC 29673
MLS# 20299855Listed by: SOUTHERN REAL ESTATE & DEVELOPMENT