1101 Sanctum Street, Ridgeland, SC 29936
Local realty services provided by:Better Homes and Gardens Real Estate Paracle
1101 Sanctum Street,Ridgeland, SC 29936
$395,490
- 4 Beds
- 3 Baths
- 2,203 sq. ft.
- Single family
- Active
Listed by: kathy ballowe, kristy theiling
Office: d r horton inc. (589)
MLS#:503430
Source:SC_HHMLS
Price summary
- Price:$395,490
- Price per sq. ft.:$179.52
About this home
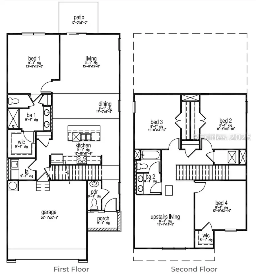
The Retreat at East Argent w/ Resort-Style Living! Welcome to the Manning a spacious two-story floor plan offering 2,203 square feet, 4 bedrooms, 2.5 bathrooms, and a 2-car garage, designed to give you room to spread out, settle in, and grow comfortably. Located in the desirable Retreat at East Argent, this layout blends thoughtful design with everyday functionality. The first floor is built for connection, featuring a modern open-concept layout where the large kitchen, dining room, and great room flow seamlessly together. A large center island and pantry make the kitchen the heart of the home, while the adjacent first-floor primary suite offers a relaxing retreat complete with a spacious walk-in closet and dual vanity bath. The convenient laundry room and half bath are tucked off the main living space for easy access. Upstairs, you'll find three additional bedrooms, a full bathroom, and an oversized loft-style living area ideal for a media room, playroom, or second lounge space. The Manning gives you the flexibility and function you've been looking for with a clean, modern exterior and plenty of curb appeal. Whether you're hosting the holidays or managing a bustling household, the Manning has space for it all without ever feeling crowded. Home is under construction. Pictures, photographs, colors, features, & sizes are for illustration purposes only and will vary from the homes as built. The photos are Not of subject property. Model home hours Mon-Sat 10am-5:30pm & Sun 12-5:30p. More information on programs and options are available for this home....
Contact an agent
Home facts
- Year built:2025
- Listing ID #:503430
- Added:97 day(s) ago
- Updated:March 19, 2026 at 10:26 PM
Rooms and interior
- Bedrooms:4
- Total bathrooms:3
- Full bathrooms:2
- Half bathrooms:1
- Flooring:Carpet, Luxury Vinyl Plank
- Kitchen Description:Dishwasher, Disposal, Gas Range, Microwave, Pantry, Self-Cleaning Oven
- Living area:2,203 sq. ft.
Heating and cooling
- Cooling:Central Air
- Heating:Gas
- Central air:Yes
Structure and exterior
- Roof:Fiberglass
- Year built:2025
- Building area:2,203 sq. ft.
- Lot area:0.13 Acres
- Exterior Features:Patio
- Levels:Two Story
Finances and disclosures
- Price:$395,490
- Price per sq. ft.:$179.52
Features and amenities
- Appliances:Dishwasher, Disposal, Gas Range, Microwave, Self Cleaning Oven, Tankless Water Heater
- Amenities:Smart Thermostat
- Pool features:Community Pool, Pool
Parking
- Parking description:Driveway, Garage
- Garage:Yes
- Garage spaces:2
New listings near 1101 Sanctum Street
- New
$875,000Active4 beds 5 baths2,750 sq. ft.150 Cassique Creek Drive, Ridgeland, SC 29936
MLS# 505894Listed by: COLDWELL BANKER ACCESS REALTY (537A) - New
$490,000Active7 beds 3 baths2,511 sq. ft.120 Hiatus Court, Ridgeland, SC 29936
MLS# 195405Listed by: NORTHGROUP REAL ESTATE LLC - New
$418,490Active5 beds 3 baths2,361 sq. ft.855 Sanctum Street, Ridgeland, SC 29936
MLS# 506542Listed by: D R HORTON INC. (589) - New
$393,990Active4 beds 2 baths1,774 sq. ft.1070 Sanctuary Drive, Ridgeland, SC 29936
MLS# 195408Listed by: D.R.HORTON - New
$259,000Active10.37 Acres00 E Gillisonville Road, Ridgeland, SC 29936
MLS# 506355Listed by: NORTHGROUP REAL ESTATE LLC (939) - New
$295,000Active4 beds 2 baths2,432 sq. ft.349 Nettles Road, Ridgeland, SC 29936
MLS# 195376Listed by: KELLER WILLIAMS - New
$364,000Active3 beds 3 baths2,103 sq. ft.28 Red Pine Road, Ridgeland, SC 29936
MLS# 194821Listed by: EXP REALTY LLC - BLUFFTON - New
$499,000Active3 beds 1 baths1,332 sq. ft.162 Dove Street, Ridgeland, SC 29936
MLS# 194949Listed by: THE FARIS GROUP BKD BY EXP - New
$649,000Active5 beds 5 baths2,993 sq. ft.535 Broad River Road, Ridgeland, SC 29936
MLS# 195168Listed by: DANIEL RAVENEL SOTHEBY'S INTE - New
$419,500Active4 beds 4 baths1,838 sq. ft.76 Queens Way, Ridgeland, SC 29936
MLS# 195280Listed by: GRECO GROUP BROKERED BY EXP