1405 Sanctum Street, Ridgeland, SC 29936
Local realty services provided by:Better Homes and Gardens Real Estate Paracle
Listed by: kathy ballowe
Office: d r horton inc. (589)
MLS#:501175
Source:SC_HHMLS
Price summary
- Price:$414,490
- Price per sq. ft.:$175.56
About this home
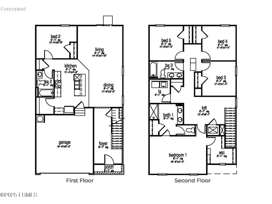
Introducing the Robiе a thοughtfullу designed 5-bedroom, 3-bath home wіth 2,361 squаre feet of flexible living space and a 2-car garage, perfect for families who crave both space and functionality. Located in The Retreat at East Argent, this plan is a fan favorite and for good reason. The first floor features a welcoming open layout anchored by a dream-worthy kitchen that's as practical as it is polished. With an abundance of cabinetry, sleek stainless-steel appliances, a large walk-in pantry, and a large island that doubles as a prep space and social hub, it's designed to keep pace with the busiest lifestyles. The adjoining dining and living areas make hosting a breeze, and the main-level bedroom and full bath provide the ideal setup for guests or a home office. Upstairs, the primary suite is a sanctuary, boasting a spacious walk-in closet, double vanity, linen closet and a large walk-in shower. A versatile loft offers extra room for work or play, while three additional bedrooms, a full hall bath, and a convenient upstairs laundry room check all the boxes for everyday ease. With2" faux wood blinds, benefits of natural gas and a design that adapts to your life, the Robie delivers the perfect blend of comfort, flexibility, and style. Backyard overlooks a peaceful wooded area. Home is under construction. Pictures, photographs, colors, features, & sizes are for illustration purposes only and will vary from the homes as built. The photos are Not of subject property. Model home hours Mon-Sat 10 am-5:30 pm & Sun 12-5:30pm....
Contact an agent
Home facts
- Year built:2026
- Listing ID #:501175
- Added:226 day(s) ago
- Updated:April 24, 2026 at 07:33 AM
Rooms and interior
- Bedrooms:5
- Total bathrooms:3
- Full bathrooms:3
- Flooring:Carpet, Luxury Vinyl Plank
- Kitchen Description:Dishwasher, Disposal, Gas Range, Microwave, Pantry, Self-Cleaning Oven
- Living area:2,361 sq. ft.
Heating and cooling
- Cooling:Central Air
- Heating:Gas
- Central air:Yes
Structure and exterior
- Roof:Fiberglass
- Year built:2026
- Building area:2,361 sq. ft.
- Lot area:0.13 Acres
- Exterior Features:Patio
- Levels:Two Story
Finances and disclosures
- Price:$414,490
- Price per sq. ft.:$175.56
Features and amenities
- Appliances:Dishwasher, Disposal, Gas Range, Microwave, Self Cleaning Oven, Tankless Water Heater
- Amenities:Loft, Smart Thermostat
- Pool features:Community Pool, Pool
Parking
- Parking description:Driveway, Garage
- Garage:Yes
- Garage spaces:2
New listings near 1405 Sanctum Street
- New
$375,000Active3 beds 3 baths2,120 sq. ft.140 Franklin Circle, Ridgeland, SC 29936
MLS# 26011674Listed by: THE BOULEVARD COMPANY - New
$444,665Active5 beds 3 baths2,511 sq. ft.1072 Sanctuary Drive, Ridgeland, SC 29936
MLS# 507982Listed by: D R HORTON INC. (589) - New
$403,665Active3 beds 2 baths1,618 sq. ft.1059 Sanctuary Drive, Ridgeland, SC 29936
MLS# 507983Listed by: D R HORTON INC. (589) - New
$339,990Active3 beds 2 baths1,151 sq. ft.976 Sanctum Street, Ridgeland, SC 29936
MLS# 507977Listed by: D R HORTON INC. (589) - New
$453,165Active5 beds 3 baths2,511 sq. ft.1063 Sanctuary Drive, Ridgeland, SC 29936
MLS# 507978Listed by: D R HORTON INC. (589) - New
$353,490Active4 beds 2 baths1,774 sq. ft.39 Pollen Drive, Ridgeland, SC 29936
MLS# 507954Listed by: D R HORTON INC. (589) - New
$321,490Active4 beds 2 baths1,497 sq. ft.103 Pollen Drive, Ridgeland, SC 29936
MLS# 507955Listed by: D R HORTON INC. (589) - New
$371,490Active3 beds 3 baths1,518 sq. ft.964 Sanctum Street, Ridgeland, SC 29936
MLS# 507957Listed by: D R HORTON INC. (589)
$319,490Pending4 beds 2 baths1,497 sq. ft.19 Pollen Drive, Ridgeland, SC 29936
MLS# 507950Listed by: D R HORTON INC. (589)- New
$388,165Active3 beds 2 baths1,618 sq. ft.1058 Sanctuary Drive, Ridgeland, SC 29936
MLS# 507946Listed by: D R HORTON INC. (589)