2043 Hillman Way, Roebuck, SC 29376
Local realty services provided by:Better Homes and Gardens Real Estate Palmetto
2043 Hillman Way,Roebuck, SC 29376
$212,900
- 3 Beds
- 3 Baths
- - sq. ft.
- Townhouse
- Pending
Listed by: john dinnen
Office: veranda homes, llc.
MLS#:1585581
Source:SC_GGAR
Price summary
- Price:$212,900
- Monthly HOA dues:$137
About this home
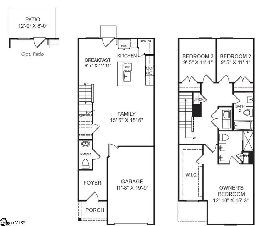
Discover the perfect balance of affordability and elevated living at Trenton Place, a thoughtfully designed community just minutes from Downtown Spartanburg. USDA eligible! Conveniently located near major employers with easy access to I-26 and I-85, Trenton Place offers unmatched convenience and comfort. This move in ready, 2-story townhome features an open-concept floor plan with 3 spacious bedrooms, 2.5 bathrooms, and a one car garage. Enjoy modern finishes such as hard surface flooring in the main living areas, elegant quartz countertops, white shaker cabinets, a gas stove, a large kitchen island, a huge corner pantry and included refrigerator. This home also includes whole house blinds. Step into the primary suite, where you’ll find a beautiful bath with sliding glass shower doors, a dual vanity, and a generous walk-in closet that is a must see. Entertain with ease on your large private rear patio, complete with fencing on each side for privacy – perfect for gatherings and quiet evenings alike. At Trenton Place, you’ll also enjoy maintenance-free living with landscaping and lawn care included. Planned amenities such as a playground and outdoor firepit area will create the ideal setting for neighbors, friends, and family to connect. This is more than a home—it’s a lifestyle. There’s never been a better time to explore Trenton Place and make Spartanburg your new home. Schedule your tour today! ***Ask about limited time closing cost assistance and lender program with 100% financing***...
Contact an agent
Home facts
- Listing ID #:1585581
- Added:6 day(s) ago
- Updated:March 21, 2026 at 11:50 PM
Rooms and interior
- Bedrooms:3
- Total bathrooms:3
- Full bathrooms:2
- Half bathrooms:1
- Flooring:Carpet, Vinyl
- Kitchen Description:Dishwasher, Disposal, Microwave, Refrigerator
Heating and cooling
- Cooling:Electric
- Heating:Forced Air, Natural Gas
- Central air:Yes
Structure and exterior
- Roof:Architectural, Composition
- Lot area:0.06 Acres
- Architectural Style:Craftsman
- Construction Materials:Stone, Vinyl Siding
- Exterior Features:Front Porch, Patio
- Foundation Description:Slab
- Levels:2 Story
Schools
- High school:Dorman
- Middle school:Gable
- Elementary school:Roebuck
Utilities
- Water:Public
- Sewer:Public Sewer
Finances and disclosures
- Price:$212,900
Features and amenities
- Appliances:Dishwasher, Gas Oven, Gas Water Heater, Microwave, Refrigerator, Tankless Water Heater
- Laundry features:2nd Floor, Electric Dryer Hookup, Laundry Closet, Laundry Room, Walk-in, Washer Hookup
- Amenities:int_feat_2 Story Foyer, int_feat_Ceiling Smooth, int_feat_Countertops-Solid Surface, int_feat_Open Floorplan, int_feat_Walk-In Closet(s)
Parking
- Total parking spaces:1
- Parking description:Attached, Concrete, Driveway, Garage Door Opener
- Garage:Yes
- Garage spaces:1
New listings near 2043 Hillman Way
- New
$310,000Active4 beds 2 baths704 Misty Glen Lane, Roebuck, SC 29376
MLS# 1586149Listed by: KELLER WILLIAMS GRV UPST - New
$290,000Active5 beds 3 baths2,310 sq. ft.1208 Canter Place, Roebuck, SC 29376
MLS# 335132Listed by: KELLER WILLIAMS REALTY
$212,900Active3 beds 3 baths1,562 sq. ft.2043 Hillman Way, Roebuck, SC 29376
MLS# 331693Listed by: VERANDA HOMES, LLC- New
$270,400Active3 beds 3 baths624 Farcroft Trail #Lot 128, Roebuck, SC 29376
MLS# 1585728Listed by: ADAMS HOMES REALTY, INC - New
$267,150Active2 beds 3 baths622 Farcroft Trail #Lot 129, Roebuck, SC 29376
MLS# 1585730Listed by: ADAMS HOMES REALTY, INC - New
$279,400Active4 beds 3 baths620 Farcroft Trail #Lot 130, Roebuck, SC 29376
MLS# 1585731Listed by: ADAMS HOMES REALTY, INC - New
$267,150Active3 beds 3 baths618 Farcroft Trail #Lot 131, Roebuck, SC 29376
MLS# 1585732Listed by: ADAMS HOMES REALTY, INC - New
$279,400Active4 beds 3 baths616 Farcroft Trail #Lot 132, Roebuck, SC 29376
MLS# 1585734Listed by: ADAMS HOMES REALTY, INC - New
$267,150Active2 beds 3 baths614 Farcroft Trail #Lot 133, Roebuck, SC 29376
MLS# 1585735Listed by: ADAMS HOMES REALTY, INC - New
$279,400Active4 beds 3 baths612 Farcroft Trail #Lot 134, Roebuck, SC 29376
MLS# 1585737Listed by: ADAMS HOMES REALTY, INC