3 Bourn Drive, Simpsonville, SC 29680
Local realty services provided by:Better Homes and Gardens Real Estate Palmetto
3 Bourn Drive,Simpsonville, SC 29680
$334,900
- 3 Beds
- 3 Baths
- - sq. ft.
- Single family
- Active
Listed by: trina l montalbano
Office: d.r. horton
MLS#:1576857
Source:SC_GGAR
Price summary
- Price:$334,900
- Monthly HOA dues:$31.25
About this home
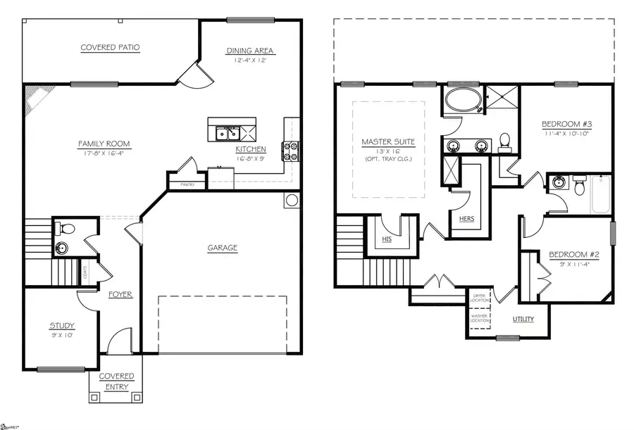
Discover 3 Bourn Drive, a stunning new home in River Shoals community! This thoughtfully designed two-story home features three bedrooms, two and a half bathrooms, and a two-car garage across 1,858 square feet of living space. With its blend of modern craftsmanship and elegant finishes, this home delivers both comfort and sophistication. The exterior showcases Hardie Board siding, architectural shingles, and a fully sodded lawn with an irrigation system for lasting curb appeal. Inside, 9-foot ceilings and luxury vinyl plank flooring enhance the open-concept main level. The living room features a raised-hearth gas log fireplace with stone to the mantel and a shiplap accent wall, creating a warm and inviting centerpiece. The kitchen includes 42-inch cabinetry with crown molding, soft-close drawers, upgraded quartz countertops, a ceramic tile backsplash, and a farmhouse sink. Additional highlights include a cabinet-integrated trash system, stainless steel appliances, and black hardware throughout, combining beauty and functionality in every detail. Upstairs, the primary suite serves as a private retreat featuring dual walk-in closets and a luxurious bathroom with double sinks, a Whirlpool garden tub, and a separate ceramic tile shower with a frameless glass door. The secondary bedrooms are spacious and share a beautifully designed full bathroom with quartz vanities. Additional features include oak stair treads, window blinds, a Smart Home Manager package, and both covered and uncovered patios for outdoor living. With its elevated design, modern features, and high-end finishes, this home blends contemporary style with timeless comfort. Pictures are representative.
Contact an agent
Home facts
- Year built:2026
- Listing ID #:1576857
- Added:63 day(s) ago
- Updated:February 10, 2026 at 01:16 PM
Rooms and interior
- Bedrooms:3
- Total bathrooms:3
- Full bathrooms:2
- Half bathrooms:1
Heating and cooling
- Cooling:Electric
- Heating:Forced Air, Natural Gas
Structure and exterior
- Roof:Architectural
- Year built:2026
- Lot area:0.14 Acres
Schools
- High school:Woodmont
- Middle school:Woodmont
- Elementary school:Ellen Woodside
Utilities
- Water:Public
- Sewer:Public Sewer
Finances and disclosures
- Price:$334,900
New listings near 3 Bourn Drive
- New
$209,900Active3 beds 3 baths137 Foundation Way, Simpsonville, SC 29680
MLS# 1581503Listed by: THRIVE REAL ESTATE BROKERS, LLC - Open Sat, 2 to 4pmNew
$308,000Active3 beds 3 baths13 Tilden Court, Simpsonville, SC 29680
MLS# 1581505Listed by: BHHS C DAN JOYNER - MIDTOWN - New
$525,000Active4 beds 4 baths2,811 sq. ft.513 Lewes Avenue, Simpsonville, SC 29681
MLS# 333466Listed by: KELLER WILLIAMS GREENVILLE CENTRAL - New
$309,000Active3 beds 2 baths3 Headwater Court, Simpsonville, SC 29680
MLS# 1581405Listed by: REAL BROKER, LLC - New
$249,900Active3 beds 2 baths128 Buckey Court, Simpsonville, SC 29680
MLS# 1581407Listed by: ENCORE REALTY - New
$354,900Active3 beds 3 baths1 Norvin Court, Simpsonville, SC 29680
MLS# 1581414Listed by: CAROLINA MOVES, LLC - New
$380,900Active4 beds 3 baths100 Marblewood Street, Simpsonville, SC 29680
MLS# 1581364Listed by: D.R. HORTON
$384,990Pending3 beds 2 baths203 Moorish Circle, Simpsonville, SC 29681
MLS# 1581327Listed by: DRB GROUP SOUTH CAROLINA, LLC- New
$435,000Active4 beds 3 baths2,598 sq. ft.117 Marshfield Trail, Simpsonville, SC 29680
MLS# 333388Listed by: REAL BROKER, LLC - New
$510,000Active4 beds 4 baths200 Stonebury Drive, Simpsonville, SC 29680
MLS# 1581231Listed by: KELLER WILLIAMS GREENVILLE CENTRAL