1613 Vixen Drive, Spartanburg, SC 29303
Local realty services provided by:Better Homes and Gardens Real Estate Medley
1613 Vixen Drive,Spartanburg, SC 29303
$334,990
- 3 Beds
- 2 Baths
- 2,000 sq. ft.
- Single family
- Active
Listed by: chelsea cathcart
Office: drb group south carolina, llc.
MLS#:323038
Source:SC_SMLS
Price summary
- Price:$334,990
- Price per sq. ft.:$167.5
About this home
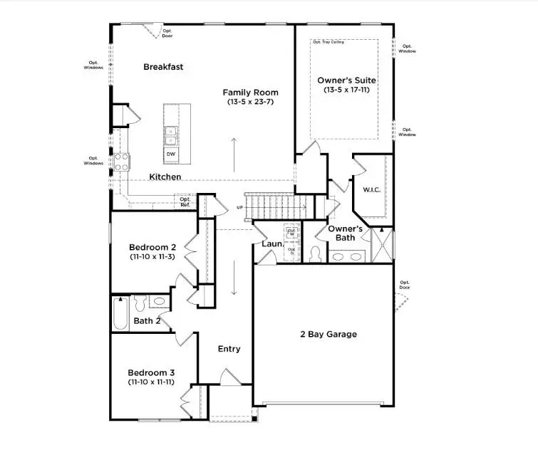
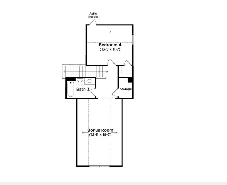
Proposed Construction Opportunity! Customize the home by visiting the design center to pick colors and options. Price listed is baseprice before options are added. Welcome to Fox Hollow! Elegant tree-lined living in a premier school disctrict with the best of Spartanburg nearby. The Craftsman style Cooper home is perfect for those wanting main floor living! Entering the home from your covered front porch you have two bedrooms and full bath adjacent to the entry hall. You could also have a dedicated office space or formal dining room in lieu of one of the bedrooms. The kitchen is a chefs dream with beautiful cabinetry in the color of your choice, Quartz or granite countertops, center island with sink for extra prep space and additional seating, stainless steel gas appliances and options such as tiled backsplash and under cabinet lighting. The large living room is perfect for entertaining and features high ceilings, tall windows for lots of natural light and an optional gas fireplace. Off the breakfast room is the outdoor patio which you could transform into a covered porch or screened in porch. The Primary Suite is situated off the living room and features double vanities, generous walk in closet and step in shower or you can upgrade to a tiled shower or Roman shower with double showerheads. Upstairs you can have an additional bedroom and full bath, large multi use room or both. Smart home technology, energy-efficient construction, and a dedicated local warranty team ensure lasting convenience and comfort. New single-family homes in Spartanburg, SC. Centrally located between Interstate 85 and Interstate 26. With large wooded homesites experience a private lifestyle with convenient access nearby recreation including lakes, golf courses, mountains, downtown areas, and parks. The entirety of the upstate is under 5 miles away with both I-26 and I-85 nearby. Spartanburg district 6 schools, less than 2 miles from Fairforest Elementary School. Only 17 minutes from GSP international Airport. Quick access to all shopping, dining and entertainment opportunities around with the Highway 29 and I-585 corridors both within 15 minutes away. Up to $28,000 in Seller Concessions that can be used towards closing cost or design center options with preferred attorney. Come by today for your personal tour and make Fox Hollow your new home!
Contact an agent
Home facts
- Year built:2025
- Listing ID #:323038
- Added:214 day(s) ago
- Updated:November 26, 2025 at 03:59 PM
Rooms and interior
- Bedrooms:3
- Total bathrooms:2
- Full bathrooms:2
- Living area:2,000 sq. ft.
Structure and exterior
- Roof:Architectural
- Year built:2025
- Building area:2,000 sq. ft.
- Lot area:0.16 Acres
Schools
- High school:6-Dorman High
- Middle school:6-Fair Forest
- Elementary school:6-Fairforest
Utilities
- Sewer:Public Sewer
Finances and disclosures
- Price:$334,990
- Price per sq. ft.:$167.5
New listings near 1613 Vixen Drive
- New
$75,000Active3 beds 3 baths47 Summer Creek Drive, Spartanburg, SC 29307
MLS# 1575913Listed by: THE PROPERTY LOUNGE - New
$34,900Active0.34 Acres5120 Old Birch Road, Spartanburg, SC 29301
MLS# 1575881Listed by: RE/MAX EXECUTIVE SPARTANBURG - New
$355,805Active4 beds 3 baths2,772 sq. ft.1021 Skidaway Drive, Spartanburg, SC 29303
MLS# 331267Listed by: VERANDA HOMES, LLC - New
Listed by BHGRE$199,900Active3 beds 1 baths1,504 sq. ft.232 Gordon Drive, Spartanburg, SC 29301
MLS# 331257Listed by: BETTER HOMES & GARDENS YOUNG &
$402,990Pending4 beds 3 baths1061 Fox Hollow Street, Spartanburg, SC 29303
MLS# 1575827Listed by: DRB GROUP SOUTH CAROLINA, LLC- New
$110,000Active3 beds 1 baths1,000 sq. ft.51 Shady Lane, Spartanburg, SC 29303
MLS# 331237Listed by: KELLER WILLIAMS REALTY - New
$35,000Active2 Acres0 Oaktree Road, Spartanburg, SC 29303
MLS# 331239Listed by: KELLER WILLIAMS ON MAIN - Open Sat, 1 to 4pmNew
$189,000Active3 beds 3 baths1263 Forestbrook Lane, Spartanburg, SC 29303
MLS# 1575755Listed by: SM SOUTH CAROLINA BROKERAGE, L - Open Sat, 1 to 4pmNew
$189,000Active3 beds 3 baths1265 Forestbrook Lane, Spartanburg, SC 29303
MLS# 1575757Listed by: SM SOUTH CAROLINA BROKERAGE, L - Open Fri, 1 to 1pmNew
$189,000Active3 beds 3 baths1273 Forestbrook Lane, Spartanburg, SC 29303
MLS# 1575759Listed by: SM SOUTH CAROLINA BROKERAGE, L