13 Spring Pine Court, Saint Andrews, SC 29212
Local realty services provided by:Better Homes and Gardens Real Estate Medley
Listed by:jeremy gould
Office:lennar carolinas llc.
MLS#:618626
Source:SC_CML
Price summary
- Price:$205,999
- Price per sq. ft.:$138.72
About this home
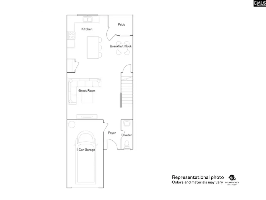
Sold before listed for comp purposes only! Discover the Cedar Plan at The Point at Chestnut Hills Place—a stunning new construction 3-bedroom, 2.5-bath home designed for those who appreciate both modern living and natural surroundings. Located in a brand-new community nestled within an established neighborhood near Columbia and Irmo, SC, this home offers the perfect balance of convenience, comfort, and outdoor access. Ideal for commuters and nature lovers alike, this home is just 20 minutes from downtown Columbia and close to Riverbanks Zoo, River Walk Park, shopping, dining, and more. The surrounding community features nearby river access, boat ramps, fishing spots, hiking trails, and seasonal events, providing endless recreational opportunities. Inside, the home showcases a modern design with wood-inspired vinyl plank flooring throughout the main floor. The open-concept kitchen features elegant quartz countertops, a spacious center island, and stainless steel appliances, including a gas stove, microwave, and dishwasher. The thoughtful layout places all three bedrooms on the second floor for enhanced privacy. The owner’s suite easily accommodates a king-size bed and includes a double vanity, walk-in shower, and full walk-in closet. Two additional bedrooms share a full bathroom, featuring flexible space for guests, family, or a home office.Additional features include a covered patio for outdoor enjoyment, energy-efficient construction, and low-maintenance living with HOA dues currently estimated and under review. Details like oak stained handrail and iron rails at the first floor, recessed lighting and gutters are some of the amazing included features included in your new home! This home will be move-in ready by August 2025. Don't miss your chance to enjoy all the features and amenities, like swimming, pickleball, trails and more that The Point at Chestnut Hills Place features. Disclaimer: CMLS has not reviewed and, therefore, does not endorse vendors who may appear in listings.
Contact an agent
Home facts
- Year built:2025
- Listing ID #:618626
- Added:7 day(s) ago
- Updated:October 09, 2025 at 07:31 AM
Rooms and interior
- Bedrooms:3
- Total bathrooms:3
- Full bathrooms:2
- Half bathrooms:1
- Living area:1,485 sq. ft.
Heating and cooling
- Cooling:Central
- Heating:Gas 1st Lvl, Gas 2nd Lvl
Structure and exterior
- Year built:2025
- Building area:1,485 sq. ft.
- Lot area:0.06 Acres
Schools
- High school:Dutch Fork
- Middle school:Dutch Fork
- Elementary school:Oak Pointe
Utilities
- Water:Public
- Sewer:Public
Finances and disclosures
- Price:$205,999
- Price per sq. ft.:$138.72
New listings near 13 Spring Pine Court
- New$219,999Active3 beds 2 baths1,785 sq. ft.
240 Starlight Drive, Columbia, SC 29210
MLS# 618988Listed by: KELLER WILLIAMS PREFERRED - New$250,000Active3 beds 3 baths1,556 sq. ft.
232 Burbank Street, Columbia, SC 29210
MLS# 618970Listed by: KELLER WILLIAMS PALMETTO - New$224,000Active3 beds 2 baths1,272 sq. ft.
4633 Faulkland Road, Columbia, SC 29210
MLS# 618840Listed by: EXP REALTY LLC - New$195,000Active3 beds 2 baths975 sq. ft.
1105 Betsy Drive, Columbia, SC 29210
MLS# 618767Listed by: NEXTHOME MIDLANDS - New$95,000Active2 beds 1 baths1,080 sq. ft.
1212 Cactus Avenue, Columbia, SC 29210
MLS# 618755Listed by: NEXTHOME SPECIALISTS - New$84,900Active2 beds 2 baths1,020 sq. ft.
529 Cambout Street, Columbia, SC 29210
MLS# 618595Listed by: REALTY ONE GROUP COASTAL - New$255,000Active3 beds 2 baths1,912 sq. ft.
201 Burbank, Columbia, SC 29210
MLS# 618493Listed by: WEICHERT RLT RAY COVINGTON - New$214,900Active4 beds 2 baths2,175 sq. ft.
912 Saint Andrews Road, Columbia, SC 29210
MLS# 618481Listed by: KELLER WILLIAMS PALMETTO - $92,000Active2 beds 2 baths1,052 sq. ft.
1228 Grove Park Lane, Columbia, SC 29210
MLS# 618443Listed by: MIDLANDS ONE REALTY