123 Stoneview Way, Taylors, SC 29687
Local realty services provided by:Better Homes and Gardens Real Estate Medley
123 Stoneview Way,Taylors, SC 29687
$219,900
- 3 Beds
- 3 Baths
- - sq. ft.
- Condominium
- Pending
Listed by: stephanie poole
Office: veranda homes, llc.
MLS#:1585504
Source:SC_GGAR
Price summary
- Price:$219,900
- Monthly HOA dues:$280
About this home
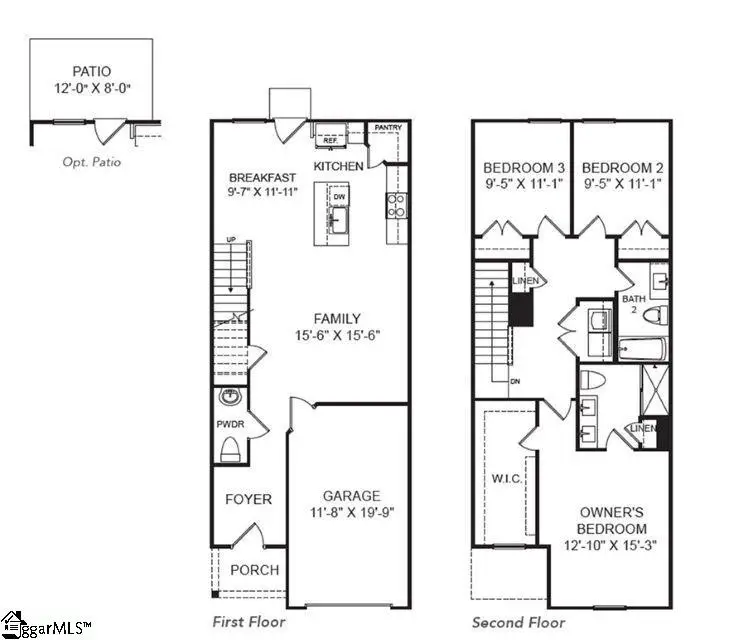
Welcome to Cottage Corners – Your Perfect Blend of Comfort & Convenience! Discover this beautiful 2-story luxury townhome in the charming Cottage Corners community. Designed with an open-concept floor plan, this home offers 3 spacious bedrooms, 2.5 bathrooms, and bright living areas that make everyday living both comfortable and stylish. The heart of the home is the chef-inspired kitchen, featuring quartz countertops, a center island for gatherings, and plenty of cabinet space. Enjoy cooking and entertaining in a space that flows seamlessly into the dining and living areas, highlighted by luxury plank flooring throughout the main level. Step outside to your private rear patio, complete with side privacy fencing – perfect for morning coffee, summer grilling, or relaxing evenings. The primary suite is a true retreat, offering a spa-like bath with dual vanities, glass shower, and a generous walk-in closet with space for everything (yes, even a king-sized bed and multiple dressers!). Additional features include: Stone & vinyl exteriors for timeless curb appeal Hard surface flooring throughout main living spaces Convenient location off Old Rutherford Rd, close to shopping, dining, schools, and major highways for easy commuting. Cottage Corners combines modern style with everyday convenience in a warm, welcoming neighborhood. Don’t miss the chance to make this beautiful townhome your new home – schedule your tour today!...
Contact an agent
Home facts
- Year built:2025
- Listing ID #:1585504
- Added:47 day(s) ago
- Updated:May 07, 2026 at 07:22 AM
Rooms and interior
- Bedrooms:3
- Total bathrooms:3
- Full bathrooms:2
- Half bathrooms:1
- Flooring:Carpet, Vinyl
- Kitchen Description:Dishwasher, Disposal, Microwave, Refrigerator
Heating and cooling
- Cooling:Electric
- Heating:Electric, Heat Pump
Structure and exterior
- Roof:Architectural
- Year built:2025
- Architectural Style:Craftsman
- Construction Materials:Stone, Vinyl Siding
- Exterior Features:Front Porch, Patio
- Foundation Description:Slab
- Levels:2 Story
Schools
- High school:Blue Ridge
- Middle school:Blue Ridge
- Elementary school:Skyland
Utilities
- Water:Public
- Sewer:Public Sewer
Finances and disclosures
- Price:$219,900
Features and amenities
- Appliances:Dishwasher, Electric Water Heater, Free-Standing Electric Range, Microwave, Refrigerator
- Laundry features:2nd Floor, Electric Dryer Hookup, Laundry Closet, Laundry Room, Washer Hookup
- Amenities:int_feat_Ceiling Fan(s), int_feat_Ceiling Smooth, int_feat_Countertops Quartz, int_feat_Countertops-Solid Surface, int_feat_High Ceilings, int_feat_Open Floorplan, int_feat_Pantry
Parking
- Total parking spaces:1
- Parking description:Attached, Concrete, Driveway, Garage Door Opener
- Garage:Yes
- Garage spaces:1
New listings near 123 Stoneview Way
- New
$319,900Active3 beds 3 baths31 Michell Drive, Taylors, SC 29687
MLS# 1590779Listed by: FOOTHILLS PROPERTY GROUP, LLC - New
$419,900Active4 beds 3 baths307 Wappoo Lane, Taylors, SC 29687
MLS# 1590783Listed by: REAL GVL/REAL BROKER, LLC - New
$419,950Active4 beds 3 baths111 Lincoln Hill Road, Taylors, SC 29687-5777
MLS# 1590717Listed by: BHHS C DAN JOYNER - MIDTOWN - New
$185,000Active1.97 Acres611 Packs Mountain Ridge Road, Taylors, SC 29687
MLS# 20301034Listed by: COLDWELL BANKER CAINE/WILLIAMS - New
$115,000Active0 Acres219 Huntcliff Drive, Taylors, SC 29687
MLS# 1589685Listed by: BHHS C DAN JOYNER - MIDTOWN - New
$415,000Active4 beds 2 baths1,972 sq. ft.504 Cunningham Road, Taylors, SC 29687
MLS# 336711Listed by: REAL HOME INTERNATIONAL - New
$360,000Active3 beds 2 baths6 Spring Sky Court, Taylors, SC 29687
MLS# 1590627Listed by: REAL BROKER, LLC - New
$285,000Active3 beds 2 baths2 Reid Valley Court, Taylors, SC 29687
MLS# 1590489Listed by: KELLER WILLIAMS GREENVILLE CENTRAL - New
$560,000Active4 beds 3 baths225 Coronet Lane, Taylors, SC 29687
MLS# 1590394Listed by: FATHOM REALTY - WOODRUFF RD. - New
$367,000Active3 beds 3 baths1,772 sq. ft.111 Brooke Lee Circle, Taylors, SC 29687
MLS# 20300856Listed by: JACKSON STANLEY, REALTORS