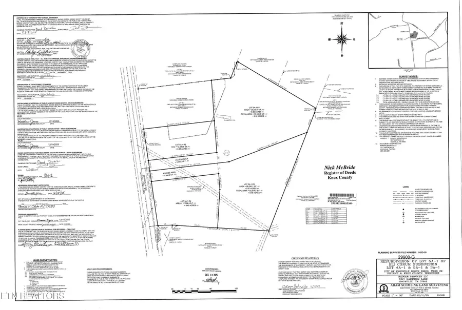
0 Sevierville Pike, Knoxville, TN 37920
Local realty services provided by:Better Homes and Gardens Real Estate Jackson Realty
0 Sevierville Pike,Knoxville, TN 37920
$49,900
- 0.4 Acres
- Lots / Land
- Pending
Listed by: david drozhzhin
Office: northshore homes
MLS#:1333293
Source:TN_KAAR
Price summary
- Price:$49,900
About this home
MULTI OFFER NOTICE: Offers will be accepted until 7PM on March 20, 2026. Discover this rare opportunity to own a prime 0.28-acre residential lot in the heart of South Knoxville. This parcel offers an exceptional building site with RN-1 zoning, perfectly suited for your custom single-family dream home. This lot is perfectly positioned to capitalize on South Knoxville's rapid growth and popular ''Urban Wilderness'' corridor. Enjoy convenient access to downtown Knoxville, the University of Tennessee, and an abundance of local restaurants and parks. This is one of four beautiful lots available in this private setting, buy one or inquire about multiple parcels for your next project. All utilities are available at the street per the recorded plat. Neighbors' fence encroachment will be moved prior to closing; also there is natural water runoff from uphill neighbor during rains. No signs on the property.
Contact an agent
Home facts
- Listing ID #:1333293
- Added:1 day(s) ago
- Updated:March 21, 2026 at 02:17 AM
Structure and exterior
- Lot area:0.4 Acres
- Lot Features:Wooded
Finances and disclosures
- Price:$49,900
New listings near 0 Sevierville Pike
- New
$425,000Active3 beds 3 baths1,900 sq. ft.5917 Apple Valley Drive, Knoxville, TN 37924
MLS# 1333584Listed by: LPT REALTY, LLC - Coming Soon
$515,000Coming Soon5 beds 3 baths1414 Rosalyn Drive, Knoxville, TN 37914
MLS# 1333585Listed by: YOUR MOVE REALTY - New
$999,000Active4 beds 5 baths3,468 sq. ft.842 Prince George Parish Drive, Knoxville, TN 37934
MLS# 1333586Listed by: REALTY EXECUTIVES ASSOCIATES - New
$475,000Active3 beds 3 baths2,226 sq. ft.5905 Clearbrook Drive, Knoxville, TN 37918
MLS# 1333577Listed by: THE REAL ESTATE FIRM, INC. - Open Sun, 6 to 8pmNew
$599,900Active4 beds 3 baths2,678 sq. ft.10356 Harrison Springs Lane, Knoxville, TN 37932
MLS# 1333544Listed by: HONORS REAL ESTATE SERVICES LLC - New
$459,000Active4 beds 3 baths2,320 sq. ft.7389 Sun Blossom Lane #99, Knoxville, TN 37924
MLS# 1333554Listed by: REAL ESTATE PARTNERS CHATTANOOGA, LLC - New
$529,900Active5 beds 4 baths2,933 sq. ft.1142 Madison Oaks Rd, Knoxville, TN 37924
MLS# 1333566Listed by: WALLACE - New
$429,000Active3 beds 3 baths1,664 sq. ft.805 Bent Tree Rd, Knoxville, TN 37934
MLS# 1333568Listed by: ASTUTE REALTY - New
$749,900Active4 beds 3 baths2,400 sq. ft.710 Knight Rd, Knoxville, TN 37920
MLS# 1333494Listed by: WALLACE - New
$320,000Active2 beds 2 baths744 sq. ft.2724 E Magnolia Ave #302, Knoxville, TN 37914
MLS# 1333497Listed by: TERMINUS REAL ESTATE, INC.