7411 Crown Maples, Atascocita, TX 77346
Local realty services provided by:Better Homes and Gardens Real Estate Hometown
7411 Crown Maples,Atascocita, TX 77346
$399,900
- 4 Beds
- 3 Baths
- 2,539 sq. ft.
- Single family
- Active
Listed by: patrick mcgrath
Office: meritage homes realty
MLS#:10791791
Source:HARMLS
Price summary
- Price:$399,900
- Price per sq. ft.:$157.5
- Monthly HOA dues:$141.67
About this home
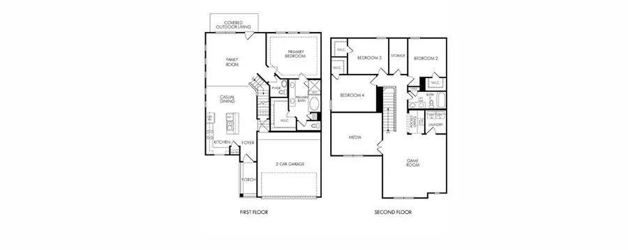
Brand new, energy-efficient home available by Mar 2026! Downstairs is a generous family room and primary suite with separate shower and tub. Entertain guests or relax in an optional private courtyard. Walk upstairs to a game room, pocket office, media room, and three additional bedrooms. From the low $300s. Nestled in this gated boutique community, Pinewood Trails offers a lock and leave experience to enjoy the future lakes, trails and parks. Just minutes away from Lake Houston, premier shopping, dining, and entertainment, you won’t have to travel far. Each energy-efficient home also comes standard with features that go beyond helping you save on utility bills—they allow your whole family to live better and breathe easier too. Each of our homes is built with innovative, energy-efficient features designed to help you enjoy more savings, better health, real comfort and peace of mind.
Contact an agent
Home facts
- Year built:2026
- Listing ID #:10791791
- Updated:March 17, 2026 at 11:56 AM
Rooms and interior
- Bedrooms:4
- Total bathrooms:3
- Full bathrooms:2
- Half bathrooms:1
- Rooms Total:7
- Flooring:Carpet, Plank, Tile, Vinyl
- Bathrooms Description:Soaking Tub
- Kitchen Description:Dishwasher, Disposal, Gas Oven, Gas Range, Granite Counters, Kitchen Family Room Combo, Microwave, Pantry, Walk In Pantry
- Living area:2,539 sq. ft.
Heating and cooling
- Cooling:Attic Fan, Central Air, Electric
- Heating:Heat Pump
- Central air:Yes
Structure and exterior
- Roof:Composition
- Year built:2026
- Building area:2,539 sq. ft.
- Lot Features:Subdivision
- Architectural Style:Traditional
- Construction Materials:Brick, Cement Siding, Stone
- Exterior Features:Fence, Fully Fenced, Patio, Porch, Private Yard, Sprinkler Irrigation
- Foundation Description:Slab
- Levels:2 Stories
Schools
- High school:KINGWOOD HIGH SCHOOL
- Middle school:CREEKWOOD MIDDLE SCHOOL
- Elementary school:PINEFOREST ELEMENTARY SCHOOL
Utilities
- Sewer:Public Sewer
Finances and disclosures
- Price:$399,900
- Price per sq. ft.:$157.5
Features and amenities
- Appliances:Dishwasher, Disposal, Gas Oven, Gas Range, Microwave, Tankless Water Heater, Washer
- Laundry features:Washer
- Amenities:Entrance Foyer, Low Emissivity Windows, Programmable Thermostat, Smoke Detectors, Tankless Water Heater
Parking
- Parking description:Additional Parking, Driveway, Garage, Garage Door Opener
- Garage:Yes
- Garage spaces:2
New listings near 7411 Crown Maples
- Open Sat, 12 to 5pmNew
$350,065Active3 beds 2 baths1,474 sq. ft.15838 Invergelder Drive, Humble, TX 77346
MLS# 10524701Listed by: CHESMAR HOMES - Open Sat, 12 to 5pmNew
$352,440Active3 beds 2 baths1,474 sq. ft.15802 Black Grouse Drive, Humble, TX 77346
MLS# 17452069Listed by: CHESMAR HOMES - New
$208,000Active3 beds 3 baths1,687 sq. ft.6303 Veranda Green Trail, Humble, TX 77346
MLS# 74974468Listed by: SUNET GROUP - Open Sat, 12 to 5pmNew
$342,415Active3 beds 2 baths1,474 sq. ft.15835 Invergelder Drive, Humble, TX 77346
MLS# 88603143Listed by: CHESMAR HOMES - Open Sat, 11am to 1pmNew
$312,000Active3 beds 3 baths2,064 sq. ft.10314 Lake Huron Drive, Humble, TX 77396
MLS# 64235729Listed by: HUTSON REALTY PARTNERS - Open Sun, 12 to 3pmNew
$300,000Active4 beds 3 baths2,236 sq. ft.10918 Sun River Falls Drive, Humble, TX 77396
MLS# 3700911Listed by: ANCHORED REAL ESTATE GROUP - New
$260,000Active3 beds 2 baths1,451 sq. ft.15215 Snowdrop Field Drive, Humble, TX 77396
MLS# 8377977Listed by: BLAIR REALTY GROUP - New
$224,900Active3 beds 3 baths1,480 sq. ft.6422 Encenada Greentrail Trail, Humble, TX 77346
MLS# 59978784Listed by: KELLER WILLIAMS REALTY NORTHEAST - New
$199,900Active3 beds 2 baths1,628 sq. ft.7403 Misty Morning Dr, Humble, TX 77346
MLS# 26545227Listed by: KELLER WILLIAMS REALTY LIVINGSTON - New
$539,950Active4 beds 4 baths3,301 sq. ft.13315 Itasca Pine Drive, Humble, TX 77346
MLS# 56801642Listed by: JLA REALTY