5529 Woodland Park Drive, College Station, TX 77845
Local realty services provided by:Better Homes and Gardens Real Estate Hometown
5529 Woodland Park Drive,College Station, TX 77845
$889,900
- 5 Beds
- 4 Baths
- 3,375 sq. ft.
- Single family
- Active
Listed by: josh jenkins
Office: brookhaven realty
MLS#:26000564
Source:TX_BCSR
Price summary
- Price:$889,900
- Price per sq. ft.:$263.67
- Monthly HOA dues:$12.5
About this home
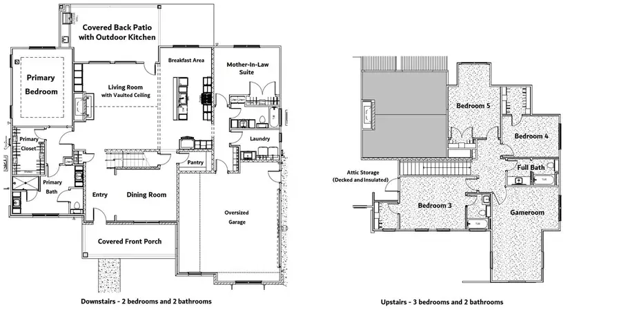
New construction 5-bed 4-bath home on 1-acre in CSISD with mature trees. Chef's kitchen with 36" range, large pantry, and massive island. Downstairs has oversized primary suite, another large bedroom with full bath, and a dining room that can accommodate a 10 ft dining table. Upstairs has 3 bedrooms, 2 full bathrooms, and game room. Outside you will find a HUGE patio with outdoor kitchen and plenty of room for a pool. Engineered hardwood floors downstairs, tile in wet areas, and carpet upstairs. Tons of decked and insulated storage in the attic.
Contact an agent
Home facts
- Year built:2025
- Listing ID #:26000564
- Added:257 day(s) ago
- Updated:April 19, 2026 at 02:03 PM
Rooms and interior
- Bedrooms:5
- Total bathrooms:4
- Full bathrooms:4
- Flooring:Wood
- Living area:3,375 sq. ft.
Heating and cooling
- Cooling:Central Air, Electric
- Heating:Propane
- Central air:Yes
Structure and exterior
- Roof:Shingle
- Year built:2025
- Building area:3,375 sq. ft.
- Lot area:1 Acres
- Foundation Description:Slab
- Levels:2 Story
Utilities
- Water:Public, Water Available
- Sewer:Septic Available
Finances and disclosures
- Price:$889,900
- Price per sq. ft.:$263.67
Features and amenities
- Appliances:Electric Water Heater, Multiple Water Heaters
- Amenities:Ceiling Fans, Low Emissivity Windows, Maintenance Grounds, Programmable Thermostat
Parking
- Parking description:Attached, Garage
- Garage:Yes
- Garage spaces:2
New listings near 5529 Woodland Park Drive
- New
$351,000Active3 beds 2 baths1,804 sq. ft.8410 Alison Avenue, College Station, TX 77845
MLS# 26004713Listed by: NEXTHOME REALTY SOLUTIONS BCS - New
$155,000Active2 beds 2 baths908 sq. ft.904 University Oaks Boulevard #95, College Station, TX 77840
MLS# 26004788Listed by: NEXTHOME REALTY SOLUTIONS BCS - New
$269,000Active3 beds 2 baths1,242 sq. ft.805 Camellia Court, College Station, TX 77840
MLS# 26004801Listed by: REVEILLE REALTY - New
$625,000Active4 beds 4 baths3,260 sq. ft.2613 Somerton Court, College Station, TX 77845
MLS# 26004737Listed by: PINNACLE REALTY ADVISORS - New
$699,000Active3 beds 4 baths3,429 sq. ft.2307 Scotney Court, College Station, TX 77845
MLS# 26004539Listed by: WALSH &MANGAN PREMIER RE GROUP - New
$329,999Active4 beds 5 baths1,828 sq. ft.1198 Jones Butler Road #1001, College Station, TX 77840
MLS# 26004351Listed by: LESTER GROUP, THE - Open Sun, 1 to 4pmNew
$835,000Active5 beds 2 baths3,141 sq. ft.4819 Williams Creek Drive, College Station, TX 77845
MLS# 26004119Listed by: ZWEIACKER & ASSOCIATES - New
$675,000Active4 beds 4 baths2,582 sq. ft.4809 White Ash Court, College Station, TX 77845
MLS# 26004231Listed by: HUDSON TEAM, THE - New
$275,000Active3 beds 2 baths1,330 sq. ft.2415 Pintail Loop, College Station, TX 77845
MLS# 26004790Listed by: CENTURY 21 INTEGRA UNLOCKED - New
$325,000Active4 beds 5 baths1,800 sq. ft.1198 Jones Butler Road #2401, College Station, TX 77840
MLS# 26004601Listed by: KELLER WILLIAMS REALTY BRAZOS VALLEY OFFICE