1801 Us-377, Collinsville, TX 76233
Local realty services provided by:Better Homes and Gardens Real Estate Winans
1801 Us-377,Collinsville, TX 76233
$1,620,272
- 31.01 Acres
- Lots / Land
- Active
Listed by: dutch wiemeyer, cheryl wiemeyer
Office: keller williams realty
MLS#:21197144
Source:GDAR
Price summary
- Price:$1,620,272
About this home
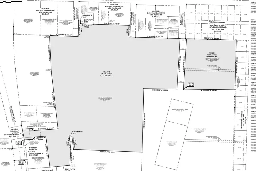
This 31.01-acre tract offers a strong opportunity for development with direct access to Highway 377 and substantial preliminary work already completed. A portion of the property lies within the City of Collinsville, with the balance located in the Collinsville ETJ. The highway frontage is currently zoned commercial, while the remaining acreage is not zoned, providing flexibility for future planning.
According to the seller, preliminary plat and development approval have been obtained, with development engineering and planning being approximately 97% complete for permitting, with only the drainage plan remaining to be finalized. The seller is willing to assist the new owner in obtaining final approval. All engineering, plans, and supporting development work completed to date will transfer with the property, allowing a buyer to step into an advanced stage of the development process.
Collinsville continues to benefit from steady regional growth as expansion moves north through Grayson County. The area is seeing increased demand for land and development opportunities driven by nearby growth in Gunter, Tioga, and Sherman, along with continued improvements to regional infrastructure. Its small-town setting, convenient highway access, and limited supply of well-located acreage continue to support long-term demand and future value....
Contact an agent
Home facts
- Listing ID #:21197144
- Added:50 day(s) ago
- Updated:April 25, 2026 at 11:46 AM
Structure and exterior
- Lot area:31.01 Acres
- Lot Features:Acreage, City Lot, Irregular Lot, Pasture
Schools
- High school:Collinsville
- Elementary school:Collinsville
Finances and disclosures
- Price:$1,620,272
- Tax amount:$14
New listings near 1801 Us-377
- New
$315,000Active5 beds 2 baths1,616 sq. ft.406 W Elm Street, Collinsville, TX 76233
MLS# 21250104Listed by: REAL ESTATE SHOPPE TX, LLC - New
$115,000Active1 beds 1 baths504 sq. ft.116 E Locust Street, Collinsville, TX 76233
MLS# 21247713Listed by: EXP REALTY LLC - New
$580,000Active10.82 Acres437 County Road 292, Collinsville, TX 76233
MLS# 21248943Listed by: TEXAS HOMES AND LAND REAL ESTATE, LLC - New
$295,000Active3 beds 2 baths1,705 sq. ft.300 Denton Court, Collinsville, TX 76233
MLS# 21248232Listed by: READY REAL ESTATE LLC - New
$519,750Active10.5 Acres10.5 Graham Grove Road, Collinsville, TX 76233
MLS# 21247322Listed by: TEXAS HOMES AND LAND - New
$99,000Active2 beds 1 baths720 sq. ft.311 Pearce Road, Collinsville, TX 76233
MLS# 21241046Listed by: JPAR NORTH METRO
$169,000Active3 AcresTBD Jenkins Road, Collinsville, TX 76233
MLS# 21235817Listed by: HERRIN REAL ESTATE LLC
$424,900Active11 Acres11 acres Batey Road, Collinsville, TX 76233
MLS# 21233388Listed by: TEXAS HOMES AND LAND REAL ESTATE, LLC
$1,250,000Active2 beds 1 baths772 sq. ft.10642 Fm 902, Collinsville, TX 76233
MLS# 21231611Listed by: TEXAS HOMES AND LAND REAL ESTATE, LLC- Open Sat, 12 to 2pm
$1,279,000Active4 beds 3 baths2,800 sq. ft.1024 Jordan Creek Road, Collinsville, TX 76233
MLS# 21225316Listed by: KELLER WILLIAMS REALTY