18732 Loom Drive, Conroe, TX 77306

Local realty services provided by:Better Homes and Gardens Real Estate Gary Greene
18732 Loom Drive,Conroe, TX 77306
$257,990
  • 4 Beds
  • 3 Baths
  • 1,954 sq. ft.
  • Single family
  • Pending
Listed by: jared turner, belinda wallace
Office: lennar homes village builders, llc.
MLS#:74606382
Source:HARMLS

Price summary

  • Price:$257,990
  • Price per sq. ft.:$132.03
  • Monthly HOA dues:$16.67

About this home

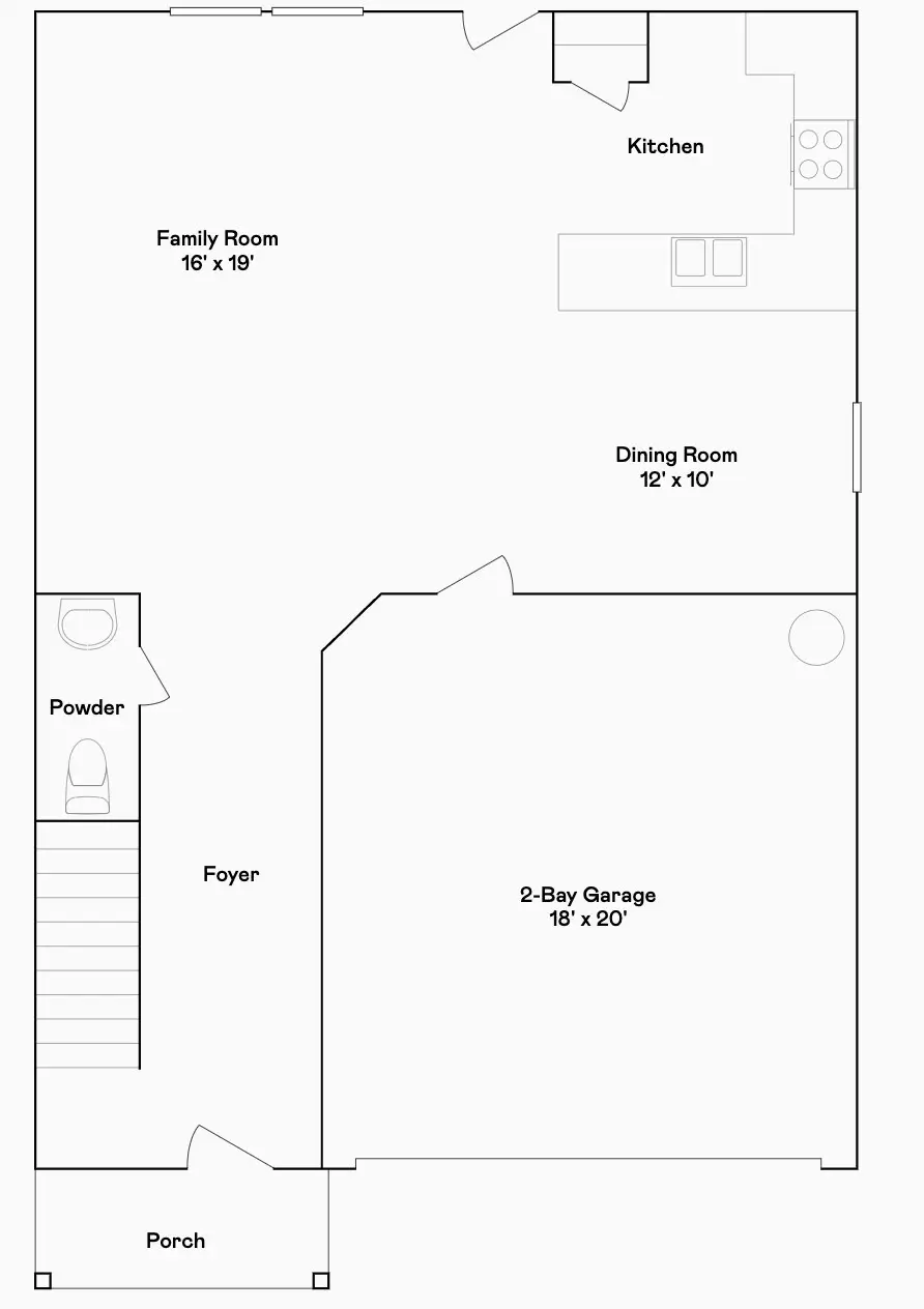
NEW! Lennar Cottage Collection "Whitetail" Plan with Elevation "C" in Spring Branch Crossing! The first floor of this two-story home shares a spacious open layout between the kitchen, dining room and family room for easy entertaining. Upstairs are three secondary bedrooms, ideal for residents and overnight guests, surrounding a versatile loft that serves as an additional shared living space. An owner's suite sprawls across the rear of the second floor and enjoys an en-suite bathroom and a walk-in closet.

Contact an agent

contact an agent

Yes, I would like more information. Please use and/or share my information with a BHGRE®  affiliated agent to contact me about my real estate needs. By clicking Send message, I request to be contacted by phone or text message and consent to being contacted by automated means. I understand that my consent to receive calls or texts is not a condition of purchasing any property, goods, or services. Alternatively, I understand that I can access real estate services by email or I can contact the agent myself.

If a BHGRE®  affiliated agent is not available in the area where I need assistance, I agree to be contacted by a real estate agent affiliated with another brand owned or licensed by Anywhere Real Estate (CENTURY 21® , Coldwell Banker® , Corcoran® , ERA® , Sotheby's International Realty® ).
 I acknowledge that I have read and agree to theTerms of useandPrivacy notice

Home facts

  • Year built:2025
  • Listing ID #:74606382
  • Updated:February 11, 2026 at 08:12 AM

Rooms and interior

  • Bedrooms:4
  • Total bathrooms:3
  • Full bathrooms:2
  • Half bathrooms:1
  • Living area:1,954 sq. ft.

Heating and cooling

  • Cooling:Central Air, Electric
  • Heating:Central, Gas

Structure and exterior

  • Roof:Composition
  • Year built:2025
  • Building area:1,954 sq. ft.

Schools

  • High school:CANEY CREEK HIGH SCHOOL
  • Middle school:MOORHEAD JUNIOR HIGH SCHOOL
  • Elementary school:MILAM ELEMENTARY SCHOOL (CONROE)

Utilities

  • Sewer:Public Sewer

Finances and disclosures

  • Price:$257,990
  • Price per sq. ft.:$132.03
Copyright 2026, Houston Realtors Information Service, Inc. All information provided is deemed reliable but is not guaranteed and should be independently verified. IDX information is provided exclusively for consumers' personal, non-commercial use, it may not be used for any purpose other than to identify prospective properties consumers may be interested in purchasing, and the data is deemed reliable but is not guaranteed accurate by the MLS.