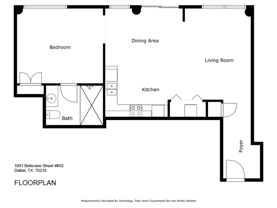
1001 Belleview Street #602, Dallas, TX 75215
Local realty services provided by:Better Homes and Gardens Real Estate Lindsey Realty
Upcoming open houses
- Sat, Oct 1101:00 pm - 03:00 pm
Listed by:philip hobson214-659-3624
Office:berkshire hathawayhs penfed tx
MLS#:21047061
Source:GDAR
Price summary
- Price:$317,500
- Price per sq. ft.:$382.53
- Monthly HOA dues:$448
About this home
Experience true urban living at The Beat Lofts at Southside Station, a modern high-rise in the heart of The Cedars—Dallas’ most vibrant and eclectic neighborhood. This stylish 1Bed - 1Bath, sixth-floor loft combines industrial design with comfort and delivers sweeping south and east-facing views towards The Cedars and Fair Park. The open-concept floorplan is framed by walls of oversized windows, allowing natural light to pour in while highlighting the polished concrete floors, exposed ductwork, and soaring 10-foot ceilings. A large private balcony provides the perfect setting to enjoy Dallas’ sunrises and sunsets. The sleek kitchen features white cabinetry, quartz countertops, stainless steel appliances, a double-basin undermount sink, and a pull-down faucet. The spacious primary bedroom offers ample room to create a relaxing retreat, enhanced with blackout shades and a custom Elfa closet system. The sleek bathroom boasts an oversized shower finished in Carrara-pattern ceramic tile. Residents enjoy a host of exclusive on-site features designed for relaxation, convenience, and community. The resort-style pool and spa showcase breathtaking views of the downtown Dallas skyline, while an outdoor gazebo, community grilling stations, firepit, and covered seating areas create inviting spaces to gather with friends or neighbors. A turfed greenspace offers room for outdoor activities, and pet owners will love the private dog run on the 1st level, and the adjacent neighborhood dog park, making life at The Beat as functional as it is fun. Just outside your front door, The Cedars neighborhood puts you steps away from some of Dallas’ most unique destinations. Within blocks, enjoy eclectic dining and entertainment at CANVAS Hotel, Gilley's, Alamo Drafthouse, Lee Harvey’s, Dive-In, Four Corners Brewing, ZaLat Pizza, Val’s Cheesecakes, Opening Bell Coffee & Full City Rooster Coffee. For a quick commute or night out, DART Cedars Station is only a short walk away. Call today to tour.
Contact an agent
Home facts
- Year built:2007
- Listing ID #:21047061
- Added:26 day(s) ago
- Updated:October 02, 2025 at 11:50 AM
Rooms and interior
- Bedrooms:1
- Total bathrooms:1
- Full bathrooms:1
- Living area:830 sq. ft.
Heating and cooling
- Cooling:Ceiling Fans, Central Air, Electric
- Heating:Central, Electric
Structure and exterior
- Year built:2007
- Building area:830 sq. ft.
- Lot area:0.94 Acres
Schools
- High school:Madison
- Middle school:Dade
- Elementary school:Dunbar
Finances and disclosures
- Price:$317,500
- Price per sq. ft.:$382.53
- Tax amount:$6,586
New listings near 1001 Belleview Street #602
- New$230,000Active2 beds 2 baths1,005 sq. ft.
5590 Spring Valley Road #D102, Dallas, TX 75254
MLS# 21073698Listed by: EBBY HALLIDAY, REALTORS - New$299,900Active3 beds 2 baths1,157 sq. ft.
10506 Sandra Lynn Drive, Dallas, TX 75228
MLS# 21075839Listed by: TEXAS URBAN LIVING REALTY - New$699,000Active3 beds 3 baths1,800 sq. ft.
850 W Canty Street, Dallas, TX 75208
MLS# 21022592Listed by: THE VIBE BROKERAGE, LLC - New$385,000Active3 beds 4 baths2,579 sq. ft.
3142 Harmon Street, Dallas, TX 75215
MLS# 21075843Listed by: REAL BROKER, LLC - New$300,000Active4 beds 3 baths1,956 sq. ft.
15422 Dorothy Nell Drive, Dallas, TX 75253
MLS# 21074231Listed by: ONLY 1 REALTY GROUP LLC - New$1,200,000Active4 beds 4 baths3,401 sq. ft.
11115 Scotsmeadow Drive, Dallas, TX 75218
MLS# 21075587Listed by: RANDALL GARRETT REAL ESTATE - Open Sun, 3 to 4:30pmNew$425,000Active3 beds 3 baths2,145 sq. ft.
6742 E Northwest Highway, Dallas, TX 75231
MLS# 21075576Listed by: ALLIE BETH ALLMAN & ASSOC. - Open Sun, 3 to 5pmNew$1,050,000Active3 beds 4 baths2,683 sq. ft.
5433 Melrose Avenue, Dallas, TX 75206
MLS# 21075663Listed by: REALTY OF AMERICA, LLC - New$1,060,000Active3 beds 3 baths3,018 sq. ft.
4322 Throckmorton Street, Dallas, TX 75219
MLS# 21071175Listed by: COMPASS RE TEXAS, LLC. - New$2,100,000Active3 beds 4 baths3,961 sq. ft.
7722 Marquette Street, Dallas, TX 75225
MLS# 21071862Listed by: ALLIE BETH ALLMAN & ASSOC.