3841 Canada Drive, Dallas, TX 75212
Local realty services provided by:Better Homes and Gardens Real Estate Winans
Listed by: hai hoang
Office: monument realty
MLS#:21150452
Source:GDAR
Price summary
- Price:$719,000
- Price per sq. ft.:$263.18
About this home
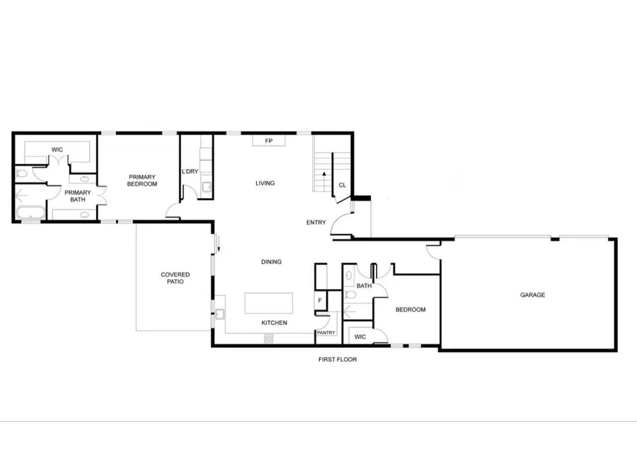
Introducing the newest statement home from Modish Custom Homes, thoughtfully designed for buyers who expect more than builder grade finishes and ordinary layouts! This is not just new construction, it is a carefully crafted home where modern architecture meets everyday livability and elevated detail at every turn. New construction by Modish Custom Homes offering modern design, functional layout and high quality upgrades throughout. This 4 bedroom, 3.5 bath home delivers 2,732 sqft of open concept living with an estimated completion of April 2026.
Notable features and upgrades include:
• Striking 4 foot wide metal and glass pivot front door
• 8 foot solid core interior doors throughout
• Electric linear fireplace in main living area
• Open concept kitchen with an extended island
• Walk in pantry plus dedicated butler’s pantry
• ZLINE appliance package
• Private primary suite on main level
• Guest Wing located on main level that's ideal for guests or multigenerational living
• Study-flex space with open overlook
• Secret hidden room
• Oversized 3 car garage
• EVSE interface for Level 2 charging
• Tankless water heater with recirculation pump
• Extensive LED lighting elements throughout
• Oversized covered patio for indoor outdoor living
• Private balcony
• Bidet ready outlets behind toilets
• Deep lot with expansive backyard potential.
Early opportunities available. Seller’s preferred lender is offering a 1% lender credit to go towards buyer’s closing costs or an interest rate buy down. Secure this home early and take advantage of pre completion momentum while selections and strategy still matter! Built with intention, positioned for impact and designed to stand apart, this is your opportunity to own a Modish Custom Homes original before it ever officially hits full market presence!...
Contact an agent
Home facts
- Year built:2026
- Listing ID #:21150452
- Added:91 day(s) ago
- Updated:May 19, 2026 at 07:15 AM
Rooms and interior
- Bedrooms:4
- Total bathrooms:4
- Full bathrooms:3
- Half bathrooms:1
- Flooring:Luxury Vinyl Plank, Tile
- Kitchen Description:Dishwasher, Disposal, Gas Cooktop, Microwave, Vented Exhaust Fan
- Living area:2,732 sq. ft.
Heating and cooling
- Cooling:Ceiling Fans, Electric
- Heating:Central, Electric, Fireplaces
Structure and exterior
- Roof:Composition
- Year built:2026
- Building area:2,732 sq. ft.
- Lot area:0.25 Acres
- Lot Features:Few Trees, Interior Lot, Landscaped
- Foundation Description:Slab
- Levels:2 Story
Schools
- High school:Nimitz
- Middle school:Bowie
- Elementary school:Schulze
Finances and disclosures
- Price:$719,000
- Price per sq. ft.:$263.18
- Tax amount:$2,254
Features and amenities
- Appliances:Dishwasher, Disposal, Gas Cooktop, Microwave, Plumbed For Gas, Some Gas Appliances, Vented Exhaust Fan
- Amenities:Carbon Monoxide Detectors
Parking
- Garage:Yes
- Garage spaces:3
New listings near 3841 Canada Drive
- New
$1,650,000Active2 beds 2 baths1,455 sq. ft.2555 N Pearl Street #805, Dallas, TX 75201
MLS# 21273529Listed by: ALLIE BETH ALLMAN & ASSOC. - New
$185,000Active1 beds 1 baths786 sq. ft.14277 Preston Road #1012, Dallas, TX 75254
MLS# 21274604Listed by: COMPASS RE TEXAS, LLC - New
$215,000Active4 beds 2 baths1,937 sq. ft.9311 Beacon Hill Circle, Dallas, TX 75217
MLS# 21274717Listed by: THE MICHAEL GROUP - New
$165,000Active6 beds 4 baths2,178 sq. ft.1718 S Marsalis Avenue, Dallas, TX 75216
MLS# 21274733Listed by: THE VIBE BROKERAGE, LLC - New
$1,799,000Active11 beds 15 baths6,072 sq. ft.4902 Worth Street, Dallas, TX 75214
MLS# 21244834Listed by: ALLIE BETH ALLMAN & ASSOC. - New
Listed by BHGRE$515,000Active5 beds 3 baths2,520 sq. ft.515 W Laureland Road, Dallas, TX 75232
MLS# 21255226Listed by: BETTER HOMES & GARDENS, WINANS - New
$399,000Active2 beds 3 baths1,364 sq. ft.4533 Rawlins Street #UnitC, Dallas, TX 75219
MLS# 21271162Listed by: ALLIE BETH ALLMAN & ASSOC. - New
$220,000Active2 beds 2 baths1,039 sq. ft.5626 Preston Oaks Road #36B, Dallas, TX 75254
MLS# 21273304Listed by: HOMESMART - New
$149,000Active2 beds 2 baths1,384 sq. ft.6227 Lovett Avenue, Dallas, TX 75227
MLS# 21274466Listed by: WHITE LINE REALTY LLC - New
$1,100,000Active4 beds 4 baths3,232 sq. ft.7211 Valley View Place, Dallas, TX 75240
MLS# 21269532Listed by: EXP REALTY LLC