8208 Radiant Ridge Road, Fort Worth, TX 76120
Local realty services provided by:Better Homes and Gardens Real Estate Senter, REALTORS(R)
8208 Radiant Ridge Road,Fort Worth, TX 76120
$437,990
- 4 Beds
- 3 Baths
- 2,269 sq. ft.
- Single family
- Pending
Listed by: kristapher haney512-868-1771
Office: keller williams realty lone st
MLS#:21163051
Source:GDAR
Price summary
- Price:$437,990
- Price per sq. ft.:$193.03
- Monthly HOA dues:$41.67
About this home
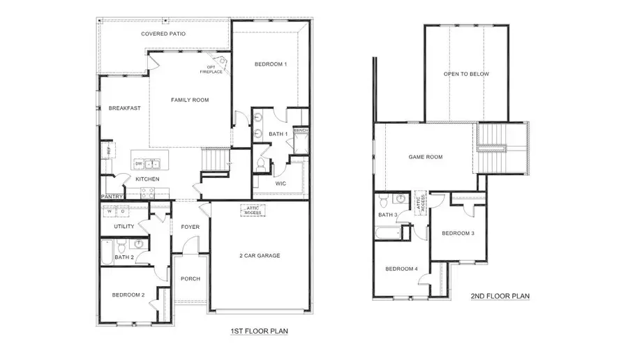
Find yourself at home in the Copaiba in our new phase of Augusta Square, located in Fort Worth Texas. When you step inside the Copaiba you're greeted by an open and inviting foyer, where natural light streams through the windows, setting a welcoming tone. To the left, a cozy secondary bedroom sits tucked away—perfect for guests or a quiet home office. Nearby, a full bathroom offers both convenience and privacy.
Continuing into the home, the heart of the living space unfolds. The kitchen immediately catches the eye with its modern layout, complete with sleek countertops, a spacious island, and a walk-in pantry ready to store all your essentials. A large breakfast- dining area perfect for hosting brunch, allowing the aroma of freshly brewed coffee to flow seamlessly into the family room.
The family room feels expansive and airy, perfect for cozy movie nights or entertaining friends. Just beyond, the covered patio is a peaceful retreat to unwind as the sun sets over the neighborhood.
The primary suite, nestled on the main floor, offers a quiet sanctuary. With its walk-in closet and a spa-like ensuite bathroom featuring a double vanity and walk-in shower, perfect to unwinding after a long day.
Heading upstairs, discover an open game room that feels full of possibilities—a space for the kids to play, a home gym, or even a second living area. Two additional bedrooms and a full bathroom complete the second floor, offering plenty of room for family or guests.
Every corner of this home is thoughtfully designed, from the ample storage space to the functional flow between rooms. The two-car garage, utility room, and extra storage areas make daily living a breeze.
See the Copaiba for yourself at Augusta Square today!...
Contact an agent
Home facts
- Year built:2026
- Listing ID #:21163051
- Added:52 day(s) ago
- Updated:March 19, 2026 at 07:19 AM
Rooms and interior
- Bedrooms:4
- Total bathrooms:3
- Full bathrooms:3
- Kitchen Description:Dishwasher, Disposal, Gas Range, Microwave, Water Purifier
- Living area:2,269 sq. ft.
Structure and exterior
- Year built:2026
- Building area:2,269 sq. ft.
- Lot area:0.13 Acres
- Levels:2 Story
Schools
- High school:Eastern Hills
- Middle school:Jean Mcclung
- Elementary school:Elliott
Finances and disclosures
- Price:$437,990
- Price per sq. ft.:$193.03
Features and amenities
- Appliances:Dishwasher, Disposal, Gas Range, Microwave, Plumbed For Gas, Some Gas Appliances, Tankless Water Heater, Water Purifier
Parking
- Garage:Yes
- Garage spaces:2
New listings near 8208 Radiant Ridge Road
- New
$278,500Active2 beds 1 baths1,152 sq. ft.5645 Banks Road, Fort Worth, TX 76140
MLS# 21212820Listed by: KELLER WILLIAMS LONESTAR DFW - New
$270,000Active3 beds 2 baths1,375 sq. ft.8408 Cherry Bark Lane, Fort Worth, TX 76140
MLS# 21212711Listed by: JPAR - CENTRAL METRO - New
$199,900Active2 beds 2 baths929 sq. ft.3113 Sondra Drive #206, Fort Worth, TX 76107
MLS# 21212715Listed by: CULTURAL DISTRICT PROP MGMT - New
$749,000Active4 beds 4 baths3,379 sq. ft.12055 Rachel Lea Lane, Fort Worth, TX 76179
MLS# 21211550Listed by: RE/MAX TRINITY - New
$299,997Active3 beds 2 baths1,636 sq. ft.4545 Chaparral Creek, Fort Worth, TX 76123
MLS# 21212631Listed by: EXP REALTY LLC - Open Sat, 1 to 3pmNew
$399,000Active3 beds 2 baths1,880 sq. ft.3408 Elm Grove Drive, Fort Worth, TX 76244
MLS# 21186014Listed by: EBBY HALLIDAY, REALTORS - New
$799,000Active4 beds 5 baths3,483 sq. ft.2024 Shumard Way, Fort Worth, TX 76008
MLS# 21204596Listed by: BRIGGS FREEMAN SOTHEBY'S INT'L - Open Sat, 2 to 4pmNew
$310,000Active3 beds 3 baths1,590 sq. ft.3445 Lake District Lane, Fort Worth, TX 76135
MLS# 21207160Listed by: REAL BROKER, LLC - New
$245,000Active4 beds 2 baths1,272 sq. ft.1540 Roma Lane, Fort Worth, TX 76134
MLS# 21207630Listed by: DENNIS TUTTLE REAL ESTATE TEAM - Open Sat, 1 to 3pmNew
$565,000Active6 beds 6 baths4,245 sq. ft.2409 Maple Stream Drive, Fort Worth, TX 76177
MLS# 21210393Listed by: LOCAL PRO REALTY LLC