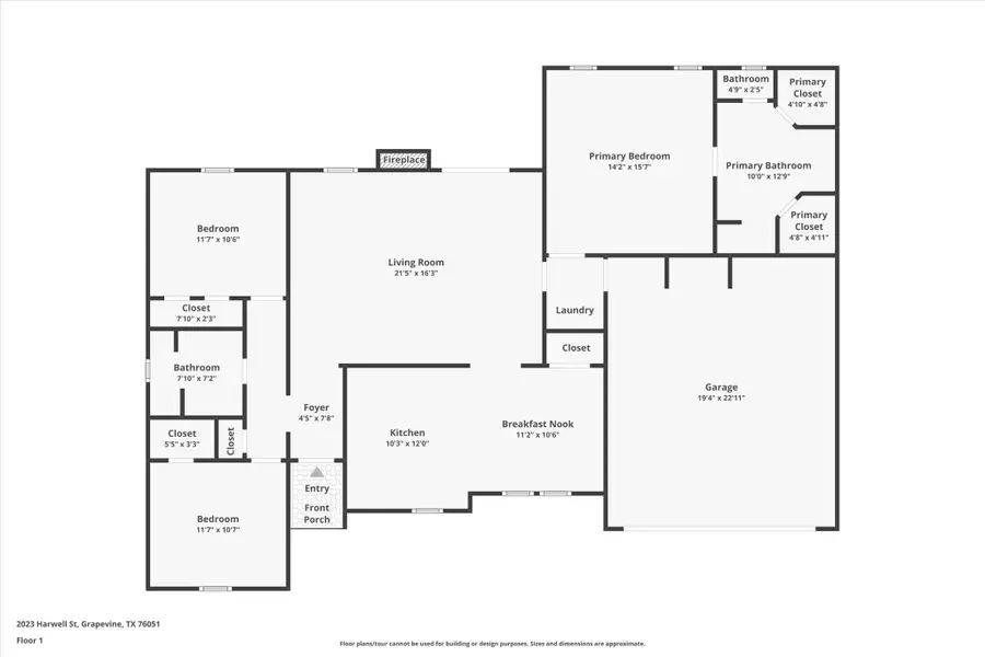
2023 Harwell Street, Grapevine, TX 76051
Local realty services provided by:Better Homes and Gardens Real Estate Senter, REALTORS(R)
2023 Harwell Street,Grapevine, TX 76051
$495,000Last list price
- 3 Beds
- 2 Baths
- - sq. ft.
- Single family
- Sold
Listed by: kelly marcontell, susan gilchrest972-743-9171,972-743-9171
Office: ebby halliday, realtors
MLS#:21091890
Source:GDAR
Sorry, we are unable to map this address
Price summary
- Price:$495,000
About this home
Welcome Home to this lovely One Story home, with a spacious backyard, in Southlake Carroll ISD. The large Family Room is ready to hold a crowd or for quiet family evenings at home. The spacious Kitchen and attached Dining Room making meal preparation a joy. The large Primary Suite features a lovely Bathroom with separate vanities, shower, large bathrub and 2 separate closets. The additional 2 bedrooms are on the opposite side of the home and enjoy another bright bathroom. Step outside to the flat, grassed backyard with mature trees and a covered patio to enjoy time outdoors. Storage shed to hold your yard tools. 2 car garage and move-in ready.
Contact an agent
Home facts
- Year built:1985
- Listing ID #:21091890
- Added:51 day(s) ago
- Updated:December 14, 2025 at 06:58 AM
Rooms and interior
- Bedrooms:3
- Total bathrooms:2
- Full bathrooms:2
Heating and cooling
- Cooling:Central Air, Electric
- Heating:Central, Natural Gas
Structure and exterior
- Roof:Composition
- Year built:1985
Schools
- High school:Carroll
- Middle school:Carroll
- Elementary school:Carroll
Finances and disclosures
- Price:$495,000
- Tax amount:$6,741
New listings near 2023 Harwell Street
- Open Sun, 2 to 5pmNew
$480,000Active3 beds 3 baths2,150 sq. ft.607 Ashcroft Drive, Grapevine, TX 76051
MLS# 21123624Listed by: EXP REALTY LLC - Open Sun, 1 to 3pmNew
$491,310Active3 beds 2 baths1,680 sq. ft.1310 Airline Drive, Grapevine, TX 76051
MLS# 21127803Listed by: KELLER WILLIAMS REALTY - New
$468,000Active3 beds 3 baths1,726 sq. ft.1434 Thistlewood Lane, Grapevine, TX 76051
MLS# 21127595Listed by: NEW CENTURY REAL ESTATE - New
$195,000Active3 beds 2 baths1,904 sq. ft.2100 Dove Loop Road #30RD, Grapevine, TX 76051
MLS# 21130311Listed by: TEXAS REPUBLIC REAL ESTATE - New
$560,000Active3 beds 3 baths2,315 sq. ft.703 Sabel Ridge Lane, Grapevine, TX 76051
MLS# 21124598Listed by: EBBY HALLIDAY, REALTORS - Open Sun, 1 to 3pmNew
$625,000Active3 beds 3 baths2,272 sq. ft.2824 Timber Hill Drive, Grapevine, TX 76051
MLS# 21095806Listed by: THE WALL TEAM REALTY ASSOC - New
$925,000Active5 beds 4 baths3,248 sq. ft.330 Harmony Hill Road, Grapevine, TX 76051
MLS# 21121111Listed by: REAL BROKER, LLC - New
$549,999Active3 beds 2 baths2,089 sq. ft.4511 Ainsworth Circle, Grapevine, TX 76051
MLS# 21116543Listed by: DWELLINC, LLC - New
$525,000Active3 beds 2 baths1,932 sq. ft.3318 Sprindeltree Drive, Grapevine, TX 76051
MLS# 21124241Listed by: LIST26, REALTORS - New
$425,000Active3 beds 2 baths1,428 sq. ft.636 Winter Wood Drive, Grapevine, TX 76051
MLS# 21123481Listed by: COLDWELL BANKER APEX, REALTORS