13932 Wrigley Street, Houston, TX 77045

Local realty services provided by:Better Homes and Gardens Real Estate Gary Greene
13932 Wrigley Street,Houston, TX 77045
$649,000
  • 1.87 Acres
  • Lots / Land
  • Active
Listed by: courtney johnson rose
Office: george e. johnson properties llc.713-721-5555
MLS#:47994205
Source:HARMLS

Price summary

  • Price:$649,000

About this home

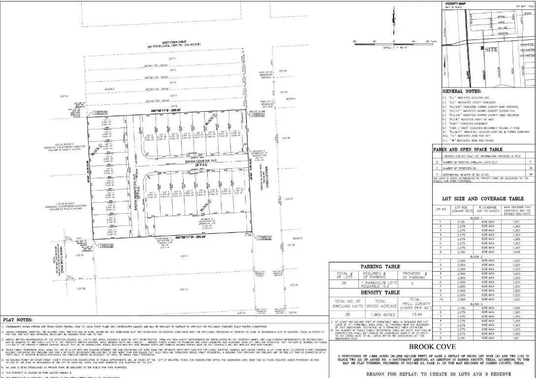
Platted Subdivision. 1.9 ACRES. FEATURES: Recorded plat for 26-home subdivision. Engineered plans. Electric Power Plan. Water, Sewer, and Drainage plan by the City of Houston. Seller is open to a Replat Option to accommodate Product/ Build specifications. No Deed Restrictions for this lot - please verify and perform your own due-diligence. Don’t miss this opportunity for a new development in the desirable Five Corners neighborhood. Close proximity to the Medical Center and Downtown Houston, and accessible to Beltway 8, Highway 288, and I-610. Drive by to see it today!

Contact an agent

contact an agent

Yes, I would like more information. Please use and/or share my information with a BHGRE®  affiliated agent to contact me about my real estate needs. By clicking Send message, I request to be contacted by phone or text message and consent to being contacted by automated means. I understand that my consent to receive calls or texts is not a condition of purchasing any property, goods, or services. Alternatively, I understand that I can access real estate services by email or I can contact the agent myself.

If a BHGRE®  affiliated agent is not available in the area where I need assistance, I agree to be contacted by a real estate agent affiliated with another brand owned or licensed by Anywhere Real Estate (CENTURY 21® , Coldwell Banker® , Corcoran® , ERA® , Sotheby's International Realty® ).
 I acknowledge that I have read and agree to theTerms of useandPrivacy notice

Home facts

  • Listing ID #:47994205
  • Updated:May 17, 2026 at 11:54 AM

Structure and exterior

  • Lot area:1.87 Acres
  • Lot Features:Split Possible

Schools

  • High school:MADISON HIGH SCHOOL (HOUSTON)
  • Middle school:LAWSON MIDDLE SCHOOL
  • Elementary school:MONTGOMERY ELEMENTARY SCHOOL (HOUSTON)

Utilities

  • Sewer:Public Sewer

Finances and disclosures

  • Price:$649,000
  • Tax amount:$3,776 (2022)
Copyright 2026, Houston Realtors Information Service, Inc. All information provided is deemed reliable but is not guaranteed and should be independently verified. IDX information is provided exclusively for consumers' personal, non-commercial use, it may not be used for any purpose other than to identify prospective properties consumers may be interested in purchasing, and the data is deemed reliable but is not guaranteed accurate by the MLS.