2217 Via Isa Lane, Houston, TX 77051

Local realty services provided by:Better Homes and Gardens Real Estate Gary Greene
2217 Via Isa Lane,Houston, TX 77051
$309,990
  • 3 Beds
  • 2 Baths
  • 1,906 sq. ft.
  • Townhouse
  • Active
Listed by: jared turner
Office: lennar homes village builders, llc.
MLS#:18765082
Source:HARMLS

Price summary

  • Price:$309,990
  • Price per sq. ft.:$162.64
  • Monthly HOA dues:$83.33

About this home

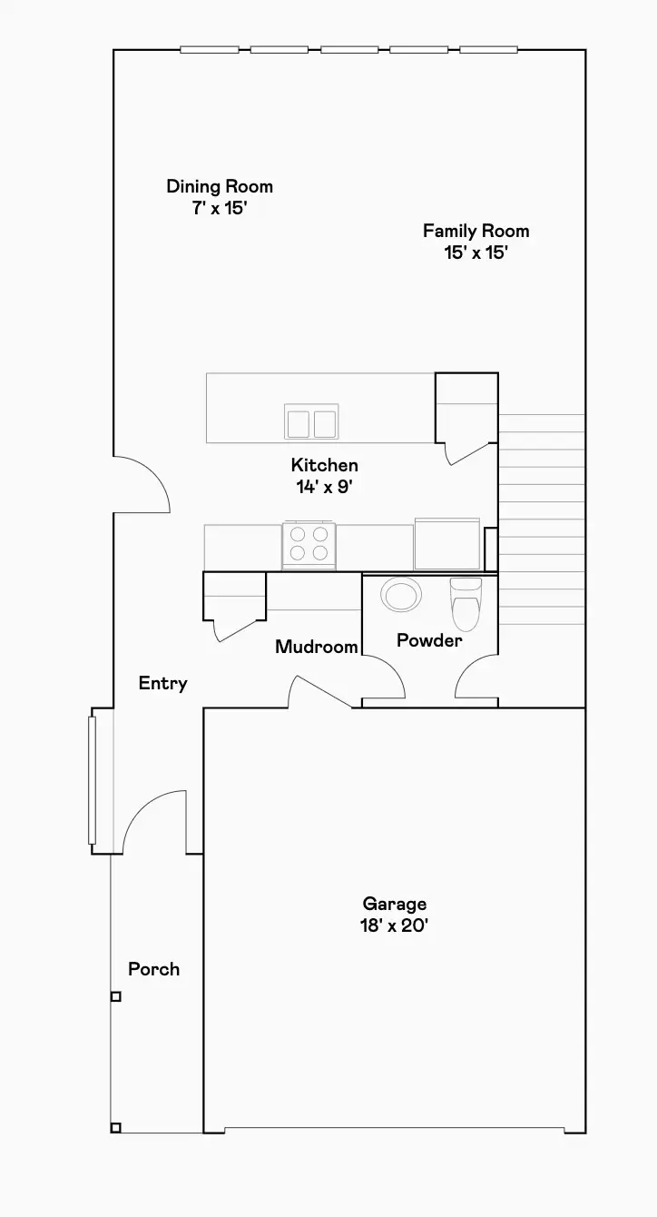
NEW! Lennar Urban Villas Collection "Bagby II" Plan with Stone Elevation "BM" in the Beautiful Community of Piccolina! A two-story home with an open first-floor layout that includes a kitchen, dining room and a family room. Upstairs boasts two secondary bedrooms, with one offering flexibility as a work or play space. The owner’s suite highlights a private bathroom with a walk-in closet.

Contact an agent

contact an agent

Yes, I would like more information. Please use and/or share my information with a BHGRE®  affiliated agent to contact me about my real estate needs. By clicking Send message, I request to be contacted by phone or text message and consent to being contacted by automated means. I understand that my consent to receive calls or texts is not a condition of purchasing any property, goods, or services. Alternatively, I understand that I can access real estate services by email or I can contact the agent myself.

If a BHGRE®  affiliated agent is not available in the area where I need assistance, I agree to be contacted by a real estate agent affiliated with another brand owned or licensed by Anywhere Real Estate (CENTURY 21® , Coldwell Banker® , Corcoran® , ERA® , Sotheby's International Realty® ).
 I acknowledge that I have read and agree to theTerms of useandPrivacy notice

Home facts

  • Year built:2025
  • Listing ID #:18765082
  • Updated:February 10, 2026 at 09:13 PM

Rooms and interior

  • Bedrooms:3
  • Total bathrooms:2
  • Full bathrooms:2
  • Living area:1,906 sq. ft.

Heating and cooling

  • Cooling:Central Air, Electric
  • Heating:Central, Gas

Structure and exterior

  • Roof:Composition
  • Year built:2025
  • Building area:1,906 sq. ft.

Schools

  • High school:WORTHING HIGH SCHOOL
  • Middle school:ATTUCKS MIDDLE SCHOOL
  • Elementary school:YOUNG ELEMENTARY SCHOOL (HOUSTON)

Finances and disclosures

  • Price:$309,990
  • Price per sq. ft.:$162.64
Copyright 2026, Houston Realtors Information Service, Inc. All information provided is deemed reliable but is not guaranteed and should be independently verified. IDX information is provided exclusively for consumers' personal, non-commercial use, it may not be used for any purpose other than to identify prospective properties consumers may be interested in purchasing, and the data is deemed reliable but is not guaranteed accurate by the MLS.