4210 Rutland Street, Houston, TX 77018
Local realty services provided by:Better Homes and Gardens Real Estate Gary Greene
4210 Rutland Street,Houston, TX 77018
$300,000
- 0.13 Acres
- Lots / Land
- Active
Listed by: safa kharsa
Office: united real estate
MLS#:51688553
Source:HARMLS
Price summary
- Price:$300,000
About this home
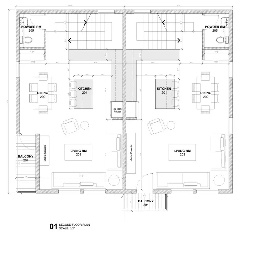
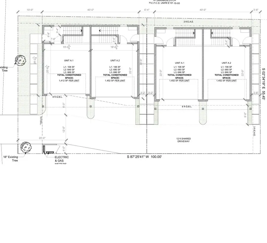
Shovel ready project with approved plans for a brand-new duplex development containing 2 duplexes (4 units total). Replat done, civil done, structural done, architectural done, permits done, impact fee done. You can start construction the same day as closing. The total conditioned area is 5,768 square feet. Each unit has 2 bedrooms, 2.5 bathrooms, and a 2-car garage. Lot width is 57' allowing for a more comfortable shared driveway compared to the standard 50' wide city lots. Located less than 1 mile from Whole Foods Market and the new Target that is coming soon to the area!
Contact an agent
Home facts
- Listing ID #:51688553
- Updated:February 12, 2026 at 10:12 PM
Structure and exterior
- Lot area:0.13 Acres
Schools
- High school:WASHINGTON HIGH SCHOOL
- Middle school:WILLIAMS MIDDLE SCHOOL
- Elementary school:KENNEDY ELEMENTARY SCHOOL (HOUSTON)
Utilities
- Sewer:Public Sewer
Finances and disclosures
- Price:$300,000
- Tax amount:$5,218 (2025)
New listings near 4210 Rutland Street
- New
$520,000Active4 beds 3 baths3,476 sq. ft.16927 Burke Lake Lane, Houston, TX 77044
MLS# 23169081Listed by: REALTY OF AMERICA, LLC - New
$219,900Active3 beds 3 baths1,824 sq. ft.10556 Hammerly Boulevard #328, Houston, TX 77043
MLS# 29781085Listed by: MANOR, LLC - New
$240,000Active3 beds 2 baths1,678 sq. ft.311 Edgeton Court, Houston, TX 77015
MLS# 38698969Listed by: CCD VENTURES - New
$600,000Active0.15 Acres724 W 24th Street, Houston, TX 77008
MLS# 39088451Listed by: ORBIS REAL ESTATE GROUP - New
$459,500Active4 beds 2 baths2,349 sq. ft.12215 Salmon Creek, Houston, TX 77041
MLS# 45683300Listed by: REALTY OF AMERICA, LLC - New
$329,000Active3 beds 3 baths1,805 sq. ft.11915 N Hoa Sen Circle, Houston, TX 77072
MLS# 48795429Listed by: EXP REALTY LLC - Open Sat, 11am to 5pmNew
$331,000Active3 beds 3 baths1,637 sq. ft.13402 Sombrero Cay Drive, Houston, TX 77047
MLS# 53528110Listed by: NAN & COMPANY PROPERTIES - CORPORATE OFFICE (HEIGHTS) - New
$122,900Active3 beds 3 baths1,620 sq. ft.7939 Carolwood Drive, Houston, TX 77028
MLS# 59385102Listed by: ULYSSES S. DOTSON & ASSOCIATES - New
Listed by BHGRE$395,000Active2 beds 3 baths1,403 sq. ft.2110 Shearn Street #11, Houston, TX 77007
MLS# 59772307Listed by: BETTER HOMES AND GARDENS REAL ESTATE GARY GREENE - WEST GRAY - New
$253,900Active3 beds 2 baths1,790 sq. ft.15811 Chimney Rock Road, Houston, TX 77489
MLS# 6299132Listed by: KELLER WILLIAMS REALTY SOUTHWEST