31014 Perdido Valley Lane, Huffman, TX 77336
Local realty services provided by:Better Homes and Gardens Real Estate Hometown
31014 Perdido Valley Lane,Huffman, TX 77336
$289,990
- 4 Beds
- 4 Baths
- 2,470 sq. ft.
- Single family
- Active
Listed by: ben caballero
Office: homesusa.com
MLS#:74515175
Source:HARMLS
Price summary
- Price:$289,990
- Price per sq. ft.:$117.4
- Monthly HOA dues:$75
About this home
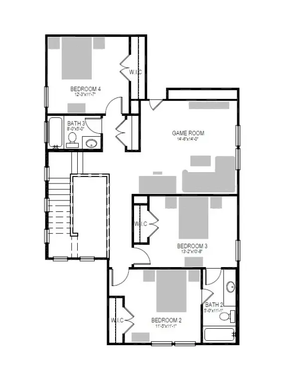
MLS# 74515175 - Built by Trophy Signature Homes - Ready Now! ~ Discover this stunning single-family home in the desirable Riviera Pines subdivision, set for completion in April 2026. Boasting 2,470 sq. ft., this modern residence features 4 spacious bedrooms, including a master suite located downstairs, and 4 bathrooms (3 full, 1 half). The open-concept kitchen is a chef's delight, equipped with an island, pantry, and seamless access to the family room. Enjoy a serene backyard, patio, fenced for privacy, and a convenient sprinkler system. Comfort is ensured with central gas heating and electric cooling. Additional highlights include a stylish blend of carpet, tile, and vinyl plank flooring. Located in the reputable Huffman School District, this home promises a perfect blend of luxury and functionality for all lifestyles.
Contact an agent
Home facts
- Year built:2026
- Listing ID #:74515175
- Updated:April 08, 2026 at 11:46 AM
Rooms and interior
- Bedrooms:4
- Total bathrooms:4
- Full bathrooms:3
- Half bathrooms:1
- Rooms Total:6
- Flooring:Carpet, Plank, Tile, Vinyl
- Bathrooms Description:Tub Shower
- Kitchen Description:Dishwasher, Disposal, Free Standing Range, Gas Oven, Gas Range, Kitchen Family Room Combo, Kitchen Island, Microwave, Pantry, Quartz Counters, Walk In Pantry
- Living area:2,470 sq. ft.
Heating and cooling
- Cooling:Central Air, Electric
- Heating:Central, Gas
- Central air:Yes
Structure and exterior
- Roof:Composition
- Year built:2026
- Building area:2,470 sq. ft.
- Lot Features:Subdivision
- Construction Materials:Brick, Stone
- Exterior Features:Fence, Patio, Private Yard, Sprinkler Irrigation
- Foundation Description:Slab
- Levels:2 Stories
Schools
- High school:HARGRAVE HIGH SCHOOL
- Middle school:HUFFMAN MIDDLE SCHOOL
- Elementary school:FALCON RIDGE ELEMENTARY SCHOOL
Utilities
- Sewer:Public Sewer
Finances and disclosures
- Price:$289,990
- Price per sq. ft.:$117.4
Features and amenities
- Appliances:Dishwasher, Disposal, Free Standing Range, Gas Oven, Gas Range, Microwave, Tankless Water Heater
- Amenities:Ceiling Fans, Low Emissivity Windows, Programmable Thermostat, Tankless Water Heater
Parking
- Parking description:Garage
- Garage:Yes
- Garage spaces:2
New listings near 31014 Perdido Valley Lane
- New
$275,000Active3 beds 2 baths1,243 sq. ft.24711 Teton Hollow Trl Trail, Huffman, TX 77336
MLS# 28730959Listed by: THE COX COMPANY, REAL ESTATE GROUP - New
$99,380Active1.38 Acres18 Thomas Lane, Huffman, TX 77336
MLS# 24938849Listed by: ANNE VICKERY & ASSOCIATES REALTY, LLC - New
$210,000Active4 beds 2 baths1,568 sq. ft.1218 Long Leaf Pine Street, Huffman, TX 77336
MLS# 70511812Listed by: PREMIER HAUS REALTY, LLC - New
$279,990Active4 beds 3 baths2,092 sq. ft.28418 Peppard Lane, Huffman, TX 77336
MLS# 68938059Listed by: NAN & COMPANY PROPERTIES - CORPORATE OFFICE (HEIGHTS) - New
$350,000Active4 beds 3 baths2,472 sq. ft.27407 Afton Way, Huffman, TX 77336
MLS# 27974741Listed by: JLA REALTY - New
$439,000Active3 beds 2 baths1,596 sq. ft.2 Magnolia Lane, Huffman, TX 77336
MLS# 33465640Listed by: RUTH LONGORIA, REALTORS - Open Sat, 2 to 5pmNew
$355,000Active4 beds 3 baths2,350 sq. ft.1202 Peter Pine Street, Huffman, TX 77336
MLS# 58511069Listed by: PREMIER HAUS REALTY, LLC - New
$189,990Active3 beds 2 baths1,451 sq. ft.31418 Pratola Serra Circle, Huffman, TX 77336
MLS# 11448310Listed by: LENNAR HOMES VILLAGE BUILDERS, LLC - New
$245,990Active2 beds 2 baths1,013 sq. ft.31523 Pianella Lane, Huffman, TX 77336
MLS# 63847787Listed by: LENNAR HOMES VILLAGE BUILDERS, LLC - New
$189,990Active3 beds 2 baths1,461 sq. ft.946 Capracotta Drive, Huffman, TX 77336
MLS# 88114548Listed by: LENNAR HOMES VILLAGE BUILDERS, LLC