2819 Cedar Rock Street, League City, TX 77573
Local realty services provided by:Better Homes and Gardens Real Estate Hometown
2819 Cedar Rock Street,League City, TX 77573
- 4 Beds
- 3 Baths
- - sq. ft.
- Single family
- Sold
Listed by: jared turner
Office: lennar homes village builders, llc.
MLS#:8888482
Source:HARMLS
Sorry, we are unable to map this address
Price summary
- Price:
- Monthly HOA dues:$95.83
About this home
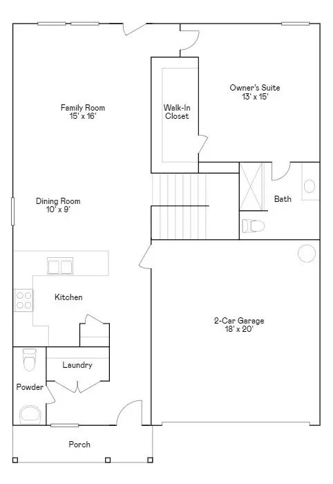
NEW! Lennar Watermill Collection “Littleton” Plan with Elevation “M4” in Samara! On the first floor of this spacious two-story home is a convenient and modern layout seamlessly connecting the kitchen, dining room and family room together. In a private corner is the tranquil owner’s suite with an attached bathroom and walk-in closet. Upstairs is a sprawling central game room made for gatherings of all sizes, along with three secondary bedrooms to provide sleeping accommodations to family members and guests.
Contact an agent
Home facts
- Year built:2025
- Listing ID #:8888482
- Updated:December 12, 2025 at 08:09 PM
Rooms and interior
- Bedrooms:4
- Total bathrooms:3
- Full bathrooms:2
- Half bathrooms:1
Heating and cooling
- Cooling:Central Air, Electric
- Heating:Central, Gas
Structure and exterior
- Roof:Composition
- Year built:2025
Schools
- High school:DICKINSON HIGH SCHOOL
- Middle school:LOBIT MIDDLE SCHOOL
- Elementary school:LOBIT ELEMENTARY SCHOOL
Utilities
- Sewer:Public Sewer
Finances and disclosures
- Price:
New listings near 2819 Cedar Rock Street
- New
$301,430Active3 beds 2 baths1,539 sq. ft.3901 Steer Stable Lane, League City, TX 77573
MLS# 25580829Listed by: D.R. HORTON - New
$499,000Active5 beds 3 baths2,739 sq. ft.2120 Spyglass Drive, Royse City, TX 75189
MLS# 21131696Listed by: ALLIE BETH ALLMAN & ASSOC. - New
$249,000Active4 beds 3 baths2,389 sq. ft.2611 Potomac Drive, League City, TX 77573
MLS# 36103556Listed by: CASEY CASTLES, LLC - Open Sun, 1 to 3pmNew
$450,000Active3 beds 3 baths2,466 sq. ft.309 Oak Creek Drive, League City, TX 77573
MLS# 34141798Listed by: KELLER WILLIAMS PREFERRED - Open Sat, 9 to 10amNew
Listed by BHGRE$545,000Active4 beds 3 baths3,088 sq. ft.2118 Gilbert Road, League City, TX 77539
MLS# 57564123Listed by: BETTER HOMES AND GARDENS REAL ESTATE GARY GREENE - BAY AREA - Open Sat, 12 to 2pmNew
$418,300Active4 beds 3 baths2,614 sq. ft.2021 Castlewind Court, League City, TX 77573
MLS# 48688099Listed by: RE/MAX SPACE CENTER - New
$649,900Active4 beds 4 baths3,760 sq. ft.313 Shore Breeze Lane, League City, TX 77573
MLS# 48375502Listed by: UTR TEXAS, REALTORS - New
$490,490Active4 beds 4 baths3,201 sq. ft.4137 Hidden Autumn, League City, TX 77573
MLS# 76590323Listed by: D.R. HORTON - Open Sun, 12 to 3pmNew
$299,000Active3 beds 2 baths1,894 sq. ft.126 Rushton Circle, League City, TX 77573
MLS# 49660952Listed by: REDFIN CORPORATION - New
$300,000Active3 beds 2 baths2,000 sq. ft.1204 2nd Street, League City, TX 77573
MLS# 58946754Listed by: NEW ERA REAL ESTATE LLC