1002 S 9th Street, Merkel, TX 79536
Local realty services provided by:Better Homes and Gardens Real Estate Senter, REALTORS(R)
1002 S 9th Street,Merkel, TX 79536
$340,000
- 4 Beds
- 2 Baths
- 1,843 sq. ft.
- Single family
- Active
Listed by: romona brogan
Office: re/max big country
MLS#:21234734
Source:GDAR
Price summary
- Price:$340,000
- Price per sq. ft.:$184.48
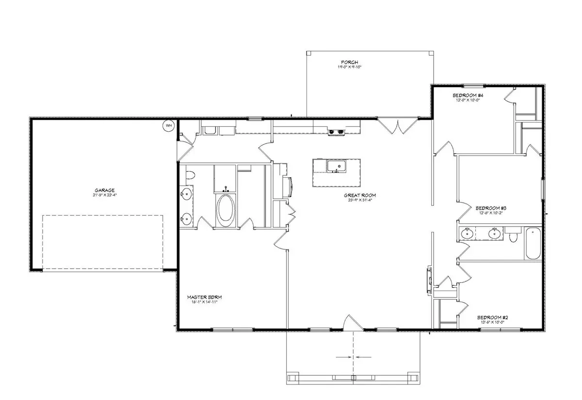
About this home
New construction proposed by Red Oak Custom Builders starting soon in Merkel! Wonderful open floorplan with 4 Bedrooms & 2 Bathrooms built on a 9ft plate. Builder's plans for the home - Kitchen to have painted cabinetry, granite on counters, gorgeous walnut butcher block on island, & SS appliances (range, microwave, dishwasher). Living room will have an electric FP. The primary bedroom ensuite has a tub, separate tiled shower, and 2-sink vanity with granite counters. LVP main living areas, carpet in bedrooms. Foam insulation. Class 4 metal roof. Covered porches, front & back. Metal privacy fence and a 2-car garage. Landscaping to include sod in front & back. Wise camera system with 2 cameras & ring doorbell. Builder warranty. This home is just starting so builder's finish out plans ARE SUBJECT TO CHANGE and-or buyer has the opportunity to choose finishes and make some changes at this point, within builder's allowances. The barndos on the corner of S. 6th and Rose St and the one at 822 Rose were also built by Red Oak Custom Builders. Photos from those homes are just representative of the builder's style. All measurements are approximate. Lot size is also approximate since it's a larger lot that has been subdivided....
Contact an agent
Home facts
- Year built:2026
- Listing ID #:21234734
- Added:2 day(s) ago
- Updated:April 12, 2026 at 11:45 AM
Rooms and interior
- Bedrooms:4
- Total bathrooms:2
- Full bathrooms:2
- Flooring:Carpet, Luxury Vinyl Plank
- Kitchen Description:Dishwasher, Disposal, Electric Range, Microwave
- Living area:1,843 sq. ft.
Heating and cooling
- Cooling:Ceiling Fans, Central Air, Electric
- Heating:Central, Electric
- Central air:Yes
Structure and exterior
- Roof:Metal
- Year built:2026
- Building area:1,843 sq. ft.
- Lot area:0.21 Acres
- Lot Features:Interior Lot
- Architectural Style:Barndominium
- Construction Materials:Steel Siding, Stone
- Foundation Description:Slab
- Levels:1 Story
Schools
- High school:Merkel
- Middle school:Merkel
- Elementary school:Merkel
Finances and disclosures
- Price:$340,000
- Price per sq. ft.:$184.48
Features and amenities
- Appliances:Dishwasher, Disposal, Electric Range, Electric Water Heater, Microwave
- Amenities:Carbon Monoxide Detectors, Smoke Detectors
Parking
- Garage:Yes
- Garage spaces:2
New listings near 1002 S 9th Street
- New
$1,150,000Active4 beds 4 baths3,580 sq. ft.2302 County Road 360, Merkel, TX 79536
MLS# 21230671Listed by: WHITTEN REAL ESTATE - New
$422,500Active4 beds 3 baths2,230 sq. ft.1033 Fm 126, Merkel, TX 79536
MLS# 21228354Listed by: ARMSTRONG REAL ESTATE - New
$299,900Active3 beds 2 baths1,680 sq. ft.16113 Fm 1235, Merkel, TX 79536
MLS# 21228022Listed by: TOMMY SIMONS (OFFICE) - New
$165,000Active20.05 Acres5472 Fm-126, Merkel, TX 79536
MLS# 21225537Listed by: HUNTER RANCH AND REALTY
$225,000Active4 beds 2 baths1,387 sq. ft.275 Cr 644, Merkel, TX 79536
MLS# 21220678Listed by: KW SYNERGY*
$135,000Pending3 beds 1 baths936 sq. ft.1107 N 4th, Merkel, TX 79536
MLS# 21215434Listed by: GRAHAM & CO REALTY GROUP
$517,000Active64.52 AcresTBD Pr Off Of Cr 444, Merkel, TX 79536
MLS# 21209117Listed by: TRINITY RANCH LAND ABILENE
$425,000Active80 Acres9608 County Road 452, Merkel, TX 79536
MLS# 21203784Listed by: EATON REAL ESTATE COMPANY
$1,300,000Active260.45 AcresTBD Cr 304, Merkel, TX 79536
MLS# 21195528Listed by: RE/MAX BIG COUNTRY