8335 Fite Road, Pearland, TX 77584
Local realty services provided by:Better Homes and Gardens Real Estate Gary Greene
8335 Fite Road,Pearland, TX 77584
$2,500,000
- 3 Acres
- Lots / Land
- Active
Listed by: venora goodie
Office: walzel properties - corporate office
MLS#:29610142
Source:HARMLS
Price summary
- Price:$2,500,000
About this home
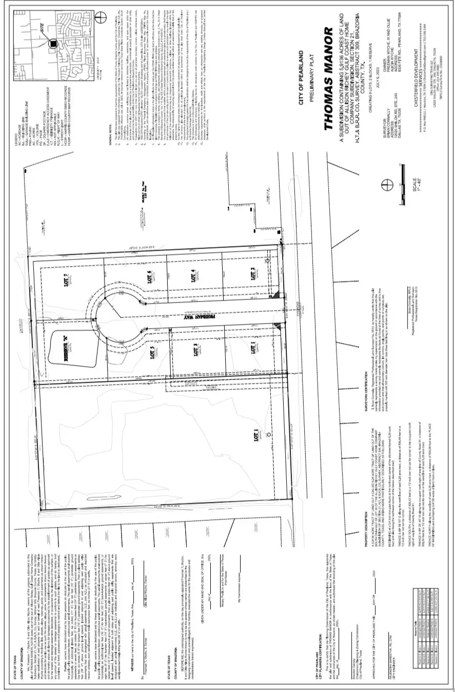
Calling all developers and investors! This prime 3-acre parcel with a retention pond on site is a dream opportunity for a small gated community. Picture 7 luxury homes, each a minimum of 2500 square feet, situated on spacious 10k +/- square foot lots. With approved platting and plans ready to go, this property is ripe for development. It’s in a prime location, and in close proximity to all amenities the city has to offer; shopping, dining, entertainment and minutes to downtown Houston and Hobby International Airport. Unlimited potential awaits you! Don't miss out on this turnkey project waiting to become a reality!
Contact an agent
Home facts
- Listing ID #:29610142
- Updated:March 29, 2026 at 11:42 AM
Structure and exterior
- Lot area:3 Acres
- Lot Features:Cleared, Cul De Sac, Subdivision
Schools
- High school:GLENDA DAWSON HIGH SCHOOL
- Middle school:BERRY MILLER JUNIOR HIGH SCHOOL
- Elementary school:SILVERLAKE ELEMENTARY SCHOOL
Utilities
- Sewer:Public Sewer
Finances and disclosures
- Price:$2,500,000
- Tax amount:$11,115 (2021)
New listings near 8335 Fite Road
- New
Listed by BHGRE$765,000Active4 beds 4 baths4,010 sq. ft.13104 Indigo Creek Lane, Pearland, TX 77584
MLS# 47082809Listed by: BETTER HOMES AND GARDENS REAL ESTATE GARY GREENE - WEST GRAY
$328,240Pending3 beds 2 baths1,688 sq. ft.6009 Mockingbird Lodge Lane, Pearland, TX 77584
MLS# 52457747Listed by: MERITAGE HOMES REALTY- New
$475,000Active4 beds 3 baths2,917 sq. ft.3811 Trent Cove Ln, Pearland, TX 77584
MLS# 51496706Listed by: ROSE ABOVE REALTY - New
$449,000Active4 beds 3 baths2,670 sq. ft.2205 Ocean Point Court, Pearland, TX 77584
MLS# 84613155Listed by: SHELLEY NAISER PROPERTIES - New
$435,000Active3 beds 3 baths2,706 sq. ft.2108 Kildare Drive, Pearland, TX 77581
MLS# 14231372Listed by: KELLER WILLIAMS REALTY THE WOODLANDS - New
$415,000Active4 beds 3 baths2,566 sq. ft.2301 Da Vinci Drive, Pearland, TX 77581
MLS# 16544494Listed by: KELLER WILLIAMS PREFERRED - Open Sun, 2 to 4pmNew
$290,000Active3 beds 2 baths1,656 sq. ft.2603 Golden Creek Lane, Pearland, TX 77584
MLS# 10050364Listed by: KELLER WILLIAMS SIGNATURE - Open Sun, 12 to 3pmNew
$269,000Active3 beds 2 baths1,680 sq. ft.3107 Centennial Village Drive, Pearland, TX 77584
MLS# 75086255Listed by: KELLER WILLIAMS PREFERRED - New
$515,365Active4 beds 4 baths2,623 sq. ft.6426 Mahogany Branch Trail, Manvel, TX 77578
MLS# 10333913Listed by: HIGHLAND HOMES REALTY - Open Sun, 1 to 3pmNew
$299,000Active3 beds 2 baths1,820 sq. ft.3616 Kale Street, Pearland, TX 77584
MLS# 15975534Listed by: REALTY OF AMERICA, LLC