908 6th Street, Rosenberg, TX 77471

Local realty services provided by:Better Homes and Gardens Real Estate Gary Greene
908 6th Street,Rosenberg, TX 77471
  • 5 Beds
  • 3 Baths
  • - sq. ft.
  • Single family
  • Sold
Listed by: diana power
Office: texas power real estate
MLS#:8110452
Source:HARMLS

Sorry, we are unable to map this address


Price summary

  • Price:

About this home

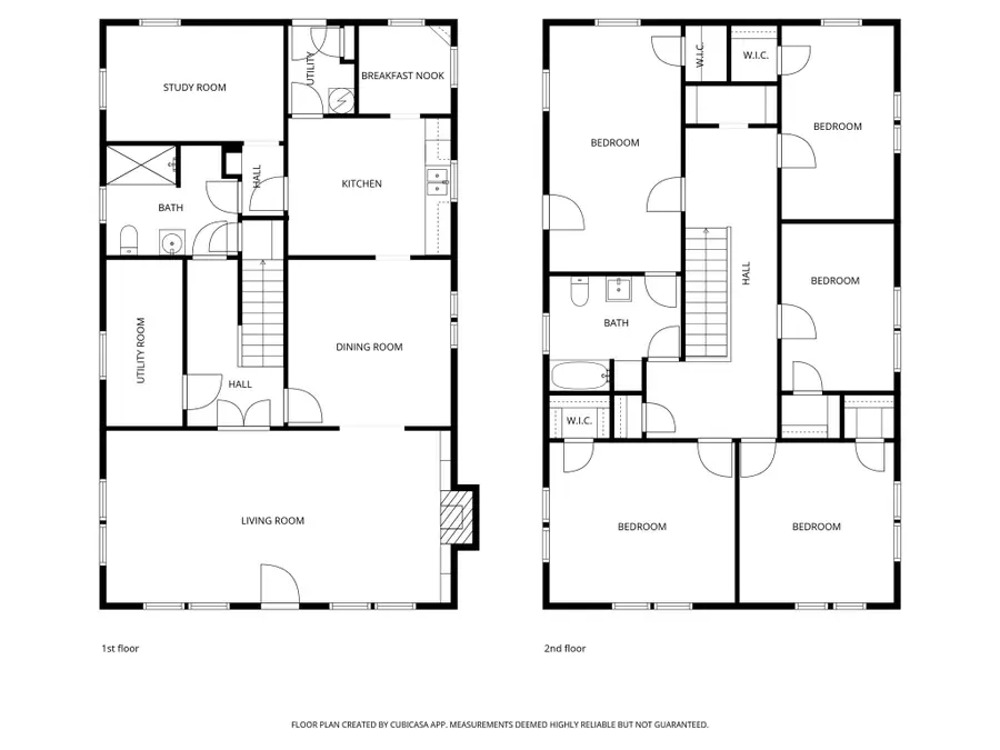
This home was once owned by a Rosenberg Mayor, per the seller. It was once very beautiful and can be again with some effort. Check the photos and/or Docs, attached, for the floor plan. The rooms are all good sizes and the layout is great. The CAD calls this a triplex. There is a large metal staircase on the exterior going up to a bedroom on the 2nd floor. It was probably leased out to 3 different families at one time. There is also what the seller calls a Print Shop in the back. The back building needs WORK. The window units have been removed and boarded over where they once were. The wiring has been redone along with PEX plumbing. There are new light fixtures in boxes in some of the rooms. This is a FIXER upper. There are NO UTILITIES on. Viewing should be done during daylight hours. Most of the original wood flooring is intact. It just need to be stripped and finished. DO NOT use the Exterior Staircase. This property is AS IS WHERE IS!! Survey is online - ask your agent for access.

Contact an agent

contact an agent

Yes, I would like more information. Please use and/or share my information with a BHGRE®  affiliated agent to contact me about my real estate needs. By clicking Send message, I request to be contacted by phone or text message and consent to being contacted by automated means. I understand that my consent to receive calls or texts is not a condition of purchasing any property, goods, or services. Alternatively, I understand that I can access real estate services by email or I can contact the agent myself.

If a BHGRE®  affiliated agent is not available in the area where I need assistance, I agree to be contacted by a real estate agent affiliated with another brand owned or licensed by Anywhere Real Estate (CENTURY 21® , Coldwell Banker® , Corcoran® , ERA® , Sotheby's International Realty® ).
 I acknowledge that I have read and agree to theTerms of useandPrivacy notice

Home facts

  • Year built:1950
  • Listing ID #:8110452
  • Updated:April 09, 2026 at 05:16 AM

Rooms and interior

  • Bedrooms:5
  • Total bathrooms:3
  • Full bathrooms:3
  • Rooms Total:11
  • Flooring:Tile, Wood
  • Bathrooms Description:Tub Shower
  • Kitchen Description:Laminate Counters

Structure and exterior

  • Roof:Composition
  • Year built:1950
  • Lot Features:Subdivision
  • Architectural Style:Victorian
  • Construction Materials:Wood Siding
  • Exterior Features:Fence, Private Yard, Storage
  • Foundation Description:Pillar Post Pier
  • Levels:2 Stories

Schools

  • High school:TERRY HIGH SCHOOL
  • Middle school:GEORGE JUNIOR HIGH SCHOOL
  • Elementary school:JACKSON ELEMENTARY SCHOOL (LAMAR)

Utilities

  • Sewer:Public Sewer

Finances and disclosures

  • Price:
  • Tax amount:$3,077 (2025)

Parking

  • Parking description:Attached Carport
  • Carport spaces:1
Copyright 2026, Houston Realtors Information Service, Inc. All information provided is deemed reliable but is not guaranteed and should be independently verified. IDX information is provided exclusively for consumers' personal, non-commercial use, it may not be used for any purpose other than to identify prospective properties consumers may be interested in purchasing, and the data is deemed reliable but is not guaranteed accurate by the MLS.