15126 Planeview Dr, Salado, TX 76571

Local realty services provided by:Better Homes and Gardens Real Estate Winans
Listed by: eleonora santana
Office: nexthome tropicana realty
MLS#:4717759
Source:ACTRIS
15126 Planeview Dr,Salado, TX 76571
$505,665
  • 4 Beds
  • 3 Baths
  • 2,887 sq. ft.
  • Single family
  • Active

Price summary

  • Price:$505,665
  • Price per sq. ft.:$175.15
  • Monthly HOA dues:$35

About this home

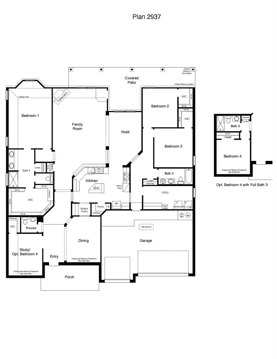
Step into the Waverly at Sterling Meadows, one of our floorplans featuring a seamless blend of modern design and functionality in Waco, TX. This floorplan has 3-4 bedrooms, 2.5 bathrooms, and a 3-car garage. You’ll also enjoy a large backyard with a covered patio and all of its 2,887 approximate square feet of comfortable living. Walking up the porch, you will step into the entry way and be greeted by the study with the option of a secondary room, the dining room, and a powder room for your guests. Continuing down the hall you will come to the kitchen and family room, through the family room is the primary bedroom. Escape from a long day to this primary bedroom and enjoy the attached bathroom with the double vanity sink and walk-in shower and the spacious walk-in closet. Enjoy the kitchen that is separated from the family room by a breakfast bar, with its island and pantry for storage. Through the kitchen you will find the nook and entry way to 2 secondary bedrooms that are carpeted...

Contact an agent

contact an agent

Yes, I would like more information. Please use and/or share my information with a BHGRE®  affiliated agent to contact me about my real estate needs. By clicking Send message, I request to be contacted by phone or text message and consent to being contacted by automated means. I understand that my consent to receive calls or texts is not a condition of purchasing any property, goods, or services. Alternatively, I understand that I can access real estate services by email or I can contact the agent myself.

If a BHGRE®  affiliated agent is not available in the area where I need assistance, I agree to be contacted by a real estate agent affiliated with another brand owned or licensed by Anywhere Real Estate (CENTURY 21® , Coldwell Banker® , Corcoran® , ERA® , Sotheby's International Realty® ).
 I acknowledge that I have read and agree to theTerms of useandPrivacy notice

Home facts

  • Year built:2026
  • Listing ID #:4717759
  • Updated:April 17, 2026 at 04:41 PM

Rooms and interior

  • Bedrooms:4
  • Total bathrooms:3
  • Full bathrooms:3
  • Flooring:Carpet, Tile
  • Kitchen Description:Dishwasher, Disposal
  • Living area:2,887 sq. ft.

Heating and cooling

  • Cooling:Central
  • Heating:Central
  • Central air:Yes

Structure and exterior

  • Roof:Shingle
  • Year built:2026
  • Building area:2,887 sq. ft.
  • Lot area:0.9 Acres
  • Lot Features:Back Yard
  • Construction Materials:Masonry All Sides
  • Exterior Features:Private Yard
  • Foundation Description:Slab

Schools

  • High school:Salado
  • Elementary school:Thomas Arnold

Utilities

  • Water:Public
  • Sewer:Septic Tank

Finances and disclosures

  • Price:$505,665
  • Price per sq. ft.:$175.15

Features and amenities

  • Appliances:Dishwasher, Disposal
  • Smart home:Yes

Parking

  • Total parking spaces:3
  • Parking description:Attached, Garage
  • Garage:Yes
  • Garage spaces:3
Copyright 2026 UnLock MLS . All rights reserved. Listings courtesy of UnLock MLS as distributed by MLS GRID <Last Updated April 17, 2026. UnLock MLS provides content displayed here (“provided content”) on an “as is” basis and makes no representations or warranties regarding the provided content, including, but not limited to those of non-infringement, timeliness, accuracy, or completeness. Individuals and companies using information presented are responsible for verification and validation of information they utilize and present to their customers and clients. UnLock MLS will not be liable for any damage or loss resulting from use of the provided content or the products available through Portals, IDX, VOW, and/or Syndication. Recipients of this information shall not resell, redistribute, reproduce, modify, or otherwise copy any portion thereof without the expressed written consent of UnLock MLS.