835 Fort Kylo, San Antonio, TX 78245
Local realty services provided by:Better Homes and Gardens Real Estate Winans
835 Fort Kylo,San Antonio, TX 78245
$431,290
- 4 Beds
- 3 Baths
- 2,489 sq. ft.
- Single family
- Active
Listed by: ashisha moran(512) 657-9832, amoran@viewhomesinc.com
Office: move up america
MLS#:1950163
Source:LERA
Price summary
- Price:$431,290
- Price per sq. ft.:$173.28
- Monthly HOA dues:$43.67
About this home
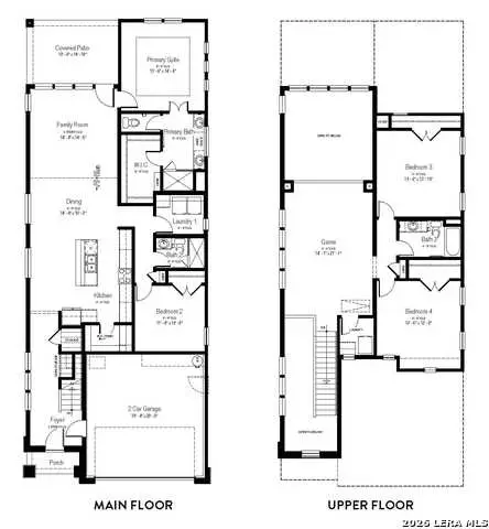
Spacious twostory Wisteria floor plan offering 4 bedrooms, 3 full baths, and approximately 2,489 sq ft of thoughtfully designed living space in the desirable Weston Oaks community. The main level features an openconcept layout with a large living area that connects seamlessly to the dining space and modern kitchen. The kitchen includes solid surface countertops, stainless steel appliances, a center island, and generous cabinet storage. The first floor also includes a secondary bedroom with access to a full bath, providing a convenient option for guests or multigenerational living. Upstairs, the owner's suite offers a spacious walkin closet and private ensuite bath. Two additional bedrooms, a full bath, and a versatile game room complete the second level. Additional highlights include a twocar garage, dedicated laundry room, and covered outdoor space ideal for relaxing or entertaining. Located in Weston Oaks with convenient access to Loop 1604, Hwy 151, Lackland AFB, shopping, dining, and community amenities. Disclosure: All information, including square footage, schools, floor plan details, and community features, is deemed reliable but not guaranteed. Verify all information. Square footage, elevations, and school zoning should be confirmed directly with the builder and local school district....
Contact an agent
Home facts
- Year built:2026
- Listing ID #:1950163
- Added:1 day(s) ago
- Updated:March 20, 2026 at 03:26 AM
Rooms and interior
- Bedrooms:4
- Total bathrooms:3
- Full bathrooms:3
- Flooring:Carpeting
- Bathrooms Description:Shower Only
- Kitchen Description:Built-In Oven, Cook Top, Disposal, Gas Grill, Ice Maker Connection, Microwave Oven, Self-Cleaning Oven, Stove/Range
- Bedroom Description:Master Bedroom Downstairs
- Living area:2,489 sq. ft.
Heating and cooling
- Cooling:One Central
- Heating:Central, Natural Gas
Structure and exterior
- Roof:Composition
- Year built:2026
- Building area:2,489 sq. ft.
- Lot area:0.12 Acres
- Architectural Style:Two Story
- Construction Materials:Brick, Stone/Rock
- Foundation Description:Slab
- Levels:2 Story
Schools
- High school:William Brennan
- Middle school:Luna
- Elementary school:Edmund Lieck
Utilities
- Water:City
- Sewer:City
Finances and disclosures
- Price:$431,290
- Price per sq. ft.:$173.28
- Tax amount:$2 (2026)
Features and amenities
- Laundry features:Dryer Connection, Washer Connection
- Amenities:BBQ/Grill, Basketball Court, Bike Trails, Built-In Oven, Ceiling Fans, City Garbage Service, Jogging Trails, Park/Playground, Sports Court
Parking
- Parking description:Two Car Garage
New listings near 835 Fort Kylo
- New
$189,000Active3 beds 2 baths1,520 sq. ft.5502 Summer Fest, San Antonio, TX 78244
MLS# 1950430Listed by: THE LYNN GROUP, LLC - New
$219,000Active3 beds 3 baths1,600 sq. ft.9814 Broad Forest, San Antonio, TX 78250
MLS# 1950432Listed by: KELLER WILLIAMS HERITAGE - New
$215,999Active3 beds 2 baths1,266 sq. ft.9243 Campbell Way, San Antonio, TX 78211
MLS# 1950435Listed by: MARTI REALTY GROUP - New
$215,999Active3 beds 2 baths1,266 sq. ft.9331 Campbell Way, San Antonio, TX 78211
MLS# 1950437Listed by: MARTI REALTY GROUP - Open Sat, 10am to 3pmNew
$425,000Active4 beds 2 baths2,028 sq. ft.19735 Encino Glen, San Antonio, TX 78259
MLS# 1950438Listed by: REAL BROKER, LLC - New
$600,000Active4 beds 3 baths3,152 sq. ft.9902 Alms Park, San Antonio, TX 78250
MLS# 1950439Listed by: REAL BROKER, LLC - New
$479,000Active5 beds 4 baths3,449 sq. ft.12228 Jeremiah, San Antonio, TX 78254
MLS# 1950442Listed by: REAL BROKER, LLC - New
$115,000Active3 beds 2 baths1,304 sq. ft.438 Cravens, San Antonio, TX 78223
MLS# 1950444Listed by: ARTEX REALTY LLC - Open Sat, 1 to 3pmNew
$250,000Active3 beds 3 baths2,044 sq. ft.119 Prato Palma, San Antonio, TX 78253
MLS# 1950449Listed by: REAL BROKER, LLC - New
$308,000Active4 beds 3 baths1,968 sq. ft.132 Western Gull Drive, San Antonio, TX 78253
MLS# 1950381Listed by: KELLER WILLIAMS HERITAGE