4016 Breckenridge Court, The Colony, TX 75056
Local realty services provided by:Better Homes and Gardens Real Estate Senter, REALTORS(R)
Listed by: rachel moussa
Office: keller williams realty-fm
MLS#:21111080
Source:GDAR
Price summary
- Price:$500,000
- Price per sq. ft.:$190.55
About this home
Charming 4-Bedroom Home Near Lewisville Lake!
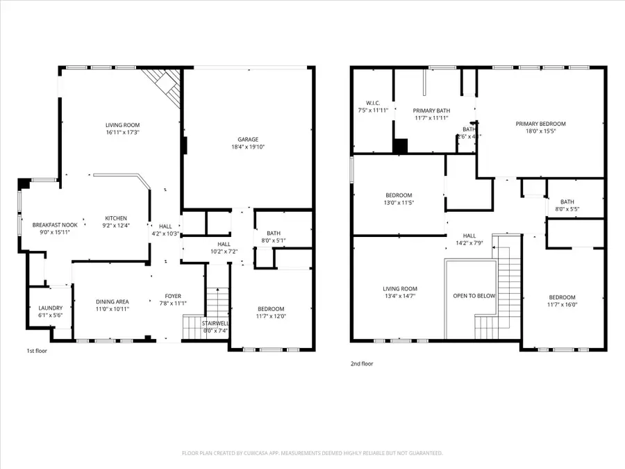
Tucked away at the end of a quiet cul-de-sac in The Colony, this beautifully maintained 4-bedroom, 3-bathroom home offers both comfort and convenience — with easy access to Highway 121 and 423, and just moments from the lake!
Step inside to an inviting open floorplan filled with natural light that immediately feels like home. The kitchen is thoughtfully designed with abundant cabinetry, a large island, and plenty of storage — perfect for meal prep or entertaining. A cozy breakfast nook surrounded by window seats adds a charming touch, while well-placed closets throughout the first floor offer exceptional organization.
A conveniently located bedroom and full bathroom downstairs make the ideal setup for guests or multigenerational living. Upstairs, you’ll find a spacious game room and three oversized bedrooms, including the serene primary suite that easily accommodates a reading nook or sitting area. The ensuite bath features a large soaking tub, a separate walk-in shower, and ample space to unwind after a long day.
Outside, the meticulously maintained backyard features lush green grass — perfect for kids and pets to run and play. With its peaceful cul-de-sac setting, bright and airy feel, and prime location near shopping, dining, and the lake, this home truly has it all.
Contact an agent
Home facts
- Year built:1999
- Listing ID #:21111080
- Added:4 day(s) ago
- Updated:November 18, 2025 at 07:42 PM
Rooms and interior
- Bedrooms:4
- Total bathrooms:3
- Full bathrooms:3
- Living area:2,624 sq. ft.
Heating and cooling
- Cooling:Ceiling Fans, Central Air, Electric
- Heating:Central, Fireplaces, Natural Gas
Structure and exterior
- Roof:Composition
- Year built:1999
- Building area:2,624 sq. ft.
- Lot area:0.14 Acres
Schools
- High school:The Colony
- Middle school:Lakeview
- Elementary school:Camey
Finances and disclosures
- Price:$500,000
- Price per sq. ft.:$190.55
- Tax amount:$8,301
New listings near 4016 Breckenridge Court
- New
$439,900Active3 beds 2 baths2,318 sq. ft.5812 Copper Canyon Drive, The Colony, TX 75056
MLS# 21102318Listed by: RE/MAX FOUR CORNERS - New
$299,900Active3 beds 2 baths1,379 sq. ft.5217 Kisor Drive, The Colony, TX 75056
MLS# 21115098Listed by: LM MAX REALTY - New
$2,295,000Active5 beds 6 baths4,718 sq. ft.8608 Scottys Lake Lane, The Colony, TX 75056
MLS# 21114857Listed by: AMERICAN LEGEND HOMES - New
$1,090,000Active4 beds 4 baths3,998 sq. ft.7625 Blackburn, The Colony, TX 75056
MLS# 21114210Listed by: COLDWELL BANKER REALTY PLANO - New
$370,000Active3 beds 2 baths1,727 sq. ft.5016 Wheeler Circle, The Colony, TX 75056
MLS# 21109639Listed by: KELLER WILLIAMS REALTY DPR - New
$250,000Active0.14 Acres4529 W Lake Highlands Drive, The Colony, TX 75056
MLS# 21109725Listed by: KELLER WILLIAMS REALTY DPR - Open Sat, 2 to 4pmNew
$599,000Active3 beds 3 baths2,143 sq. ft.3204 Stonefield, The Colony, TX 75056
MLS# 21109735Listed by: THE PROPERTY SHOP - New
$739,000Active2 beds 3 baths2,403 sq. ft.2725 Cumberland, The Colony, TX 75056
MLS# 21108157Listed by: INNOVATIVE REALTY - New
$820,000Active4 beds 5 baths3,545 sq. ft.2924 Stonefield, The Colony, TX 75056
MLS# 21111595Listed by: COLDWELL BANKER REALTY PLANO