2046 S 350 E #4, Bountiful, UT 84010
Local realty services provided by:Better Homes and Gardens Real Estate Momentum
2046 S 350 E #4,Bountiful, UT 84010
$979,999
- 4 Beds
- 3 Baths
- 3,869 sq. ft.
- Single family
- Pending
Listed by: martin r everett, julie blum
Office: brighton realty llc.
MLS#:2134975
Source:SL
Price summary
- Price:$979,999
- Price per sq. ft.:$253.3
About this home
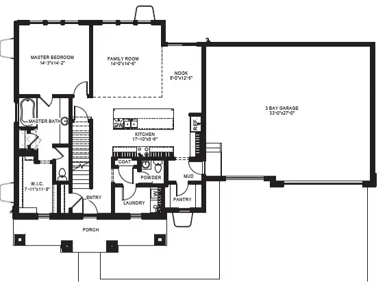
Edgewood A two-story in the heart of Bountiful with no HOA. Designed base package with options to personalize colors and upgrades. Gourmet kitchen with double ovens, gas cooktop and vented hood. Quartz counters, tile & LVP, fireplace, primary suite w/ dual sinks and separate tub/shower, plus 9' basement foundation walls. Ask agent about builder incentives with preferred lenders.
Contact an agent
Home facts
- Year built:2026
- Listing ID #:2134975
- Added:49 day(s) ago
- Updated:March 19, 2026 at 07:53 AM
Rooms and interior
- Bedrooms:4
- Total bathrooms:3
- Full bathrooms:2
- Half bathrooms:1
- Rooms Total:13
- Flooring:Carpet, Tile
- Bathrooms Description:Bath: Sep. Tub/Shower
- Kitchen Description:Disposal, Microwave, Oven: Double, Range Hood, Range: Countertop, Range: Gas
- Basement Description:Full
- Living area:3,869 sq. ft.
Heating and cooling
- Cooling:Central Air
- Heating:Forced Air, Gas: Central
Structure and exterior
- Roof:Asphalt
- Year built:2026
- Building area:3,869 sq. ft.
- Lot area:0.19 Acres
- Lot Features:Cul-De-Sac, Cul-de-sac, Curb & Gutter, Fenced: Partial, Road: Paved
- Construction Materials:Brick, Cement Siding
- Exterior Features:Basement Entrance
- Levels:3 Story
Schools
- High school:Bountiful
- Middle school:Mueller Park
- Elementary school:Muir
Utilities
- Water:Culinary, Secondary, Water Connected
- Sewer:Sewer: Public
Finances and disclosures
- Price:$979,999
- Price per sq. ft.:$253.3
- Tax amount:$1
Features and amenities
- Laundry features:Electric Dryer Hookups
- Amenities:Closet: Walk-In
Parking
- Total parking spaces:3
- Parking description:3 Car Garage
- Garage spaces:3
New listings near 2046 S 350 E #4
- Open Sat, 12 to 3pmNew
$2,750,000Active5 beds 3 baths4,025 sq. ft.2768 S Grand Oak Cir E, Bountiful, UT 84010
MLS# 2145947Listed by: KW UTAH REALTORS KELLER WILLIAMS - New
$929,000Active4 beds 4 baths5,238 sq. ft.1761 S Davis Blvd E, Bountiful, UT 84010
MLS# 2145987Listed by: CENTURY 21 EVEREST - Open Fri, 5 to 7pmNew
$800,000Active4 beds 4 baths3,658 sq. ft.761 E San Simeon Way S, Bountiful, UT 84010
MLS# 2145992Listed by: KW UTAH REALTORS KELLER WILLIAMS (BRICKYARD) - New
$875,000Active6 beds 4 baths3,206 sq. ft.456 E 500 S, Bountiful, UT 84010
MLS# 2145765Listed by: BERKSHIRE HATHAWAY HOMESERVICES UTAH PROPERTIES (NORTH SALT LAKE)
$669,000Active1.54 Acres1785 S 1450 E, Bountiful, UT 84010
MLS# 2109299Listed by: MAPLE HILLS REALTY- New
$400,000Active4 beds 3 baths1,758 sq. ft.499 N 200 W #19, Bountiful, UT 84010
MLS# 2145681Listed by: CENTURY 21 EVEREST (CENTERVILLE) - New
$500,000Active4 beds 2 baths1,968 sq. ft.978 N 170 E, Bountiful, UT 84010
MLS# 2145693Listed by: WINDERMERE REAL ESTATE (9TH & 9TH) - New
$500,000Active1.29 Acres331 S 1550 E #3, Bountiful, UT 84010
MLS# 2145568Listed by: RE/MAX ASSOCIATES - Open Sat, 11:30am to 1:30pmNew
$995,000Active3 beds 4 baths3,009 sq. ft.610 Meadowlark Ln, Bountiful, UT 84010
MLS# 2145291Listed by: FRONT PORCH REALTY - Open Sat, 12 to 2pmNew
$530,000Active4 beds 2 baths1,531 sq. ft.1503 N 300 W, Bountiful, UT 84010
MLS# 2145194Listed by: INTERMOUNTAIN PROPERTIES