4853 S 4275 W, Roy, UT 84067
Local realty services provided by:Better Homes and Gardens Real Estate Momentum
4853 S 4275 W,Roy, UT 84067
$624,900
- 6 Beds
- 3 Baths
- 2,775 sq. ft.
- Single family
- Active
Listed by: kevin ivins
Office: real estate essentials
MLS#:2142876
Source:SL
Price summary
- Price:$624,900
- Price per sq. ft.:$225.19
About this home
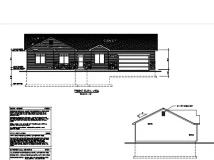
One of the very last opportunities to build in Roy is here. Come explore these beautifully crafted custom ramblers-thoughtfully designed with both levels fully finished. Each floor offers 3 bedrooms, its own laundry room, a full kitchen, and a walk-out basement, giving you flexibility for guests, multigenerational living, or extra rental potential. You'll find quality touches throughout: custom cabinetry, modern lighting, stylish laminate flooring, central air, and so much more. All of this in a convenient location close to shopping, schools, and Hill A.F.B. There's still time to choose your colors and make it truly yours.
Contact an agent
Home facts
- Year built:2025
- Listing ID #:2142876
- Added:4 day(s) ago
- Updated:March 17, 2026 at 11:13 AM
Rooms and interior
- Bedrooms:6
- Total bathrooms:3
- Full bathrooms:3
- Rooms Total:16
- Flooring:Carpet, Laminate, Tile
- Bathrooms Description:Bath: Sep. Tub/Shower
- Kitchen Description:Disposal, Microwave, Range/Oven: Free Stdng.
- Basement Description:Daylight, Entrance, Walk-Out Access
- Living area:2,775 sq. ft.
Heating and cooling
- Cooling:Central Air
- Heating:Forced Air
Structure and exterior
- Roof:Asphalt
- Year built:2025
- Building area:2,775 sq. ft.
- Lot area:0.21 Acres
- Lot Features:Curb & Gutter, Fenced: Partial, Flat, Road: Paved, Sidewalks
- Architectural Style:Rambler/Ranch
- Construction Materials:Stone
- Exterior Features:Basement Entrance, Lighting
- Levels:2 Story
Schools
- High school:Roy
- Middle school:Rocky Mt
- Elementary school:Country View
Utilities
- Water:Culinary, Secondary, Water Connected
- Sewer:Sewer Connected, Sewer: Connected, Sewer: Public
Finances and disclosures
- Price:$624,900
- Price per sq. ft.:$225.19
- Tax amount:$1
Features and amenities
- Laundry features:Electric Dryer Hookups
- Amenities:Ceiling Fan, Closet: Walk-In, Vaulted Ceilings
Parking
- Total parking spaces:6
- Parking description:2 Car Garage, Parking: Uncovered
- Garage spaces:2
New listings near 4853 S 4275 W
- New
$575,000Active5 beds 5 baths3,255 sq. ft.3588 W 5225 S, Roy, UT 84067
MLS# 2143520Listed by: DIMENSION REALTY SERVICES - New
$55,000Active2 beds 1 baths947 sq. ft.3800 S 1900 W #42, Roy, UT 84067
MLS# 2143365Listed by: RIDGELINE REALTY - New
$449,900Active5 beds 2 baths2,310 sq. ft.2338 W 4250 S, Roy, UT 84067
MLS# 2143215Listed by: SURV REAL ESTATE INC - New
$354,900Active3 beds 4 baths1,788 sq. ft.1781 W 5050 S, Roy, UT 84067
MLS# 2143182Listed by: NORTHERN UTAH PROPERTY MANAGEMENT AND REAL ESTATE - New
$419,000Active3 beds 2 baths1,326 sq. ft.5980 S 2700 W, Roy, UT 84067
MLS# 2143079Listed by: BERKSHIRE HATHAWAY HOMESERVICES UTAH PROPERTIES (SALT LAKE) - New
$450,000Active3 beds 2 baths1,650 sq. ft.3878 W 4700 S, Roy, UT 84067
MLS# 2142723Listed by: EQUITY REAL ESTATE (SELECT) - New
$475,000Active4 beds 2 baths1,668 sq. ft.4062 W 5950 S, Roy, UT 84067
MLS# 2142421Listed by: KR ELITE REAL ESTATE LLC
$420,000Pending3 beds 2 baths1,100 sq. ft.2378 W 5900 S, Roy, UT 84067
MLS# 2142308Listed by: RE/MAX ASSOCIATES- New
$525,000Active5 beds 3 baths2,664 sq. ft.5774 S 2200 W, Roy, UT 84067
MLS# 2142054Listed by: BESST REALTY GROUP LLC