25 W Wyatt Ave, Alexandria, VA 22301
Local realty services provided by:Better Homes and Gardens Real Estate Maturo
25 W Wyatt Ave,Alexandria, VA 22301
$2,500,000
- 5 Beds
- 4 Baths
- 3,017 sq. ft.
- Single family
- Active
Listed by: elizabeth h lucchesi
Office: long & foster real estate, inc.
MLS#:VAAX2053634
Source:BRIGHTMLS
Price summary
- Price:$2,500,000
- Price per sq. ft.:$828.64
About this home
Currently under construction by renowned builder Windmill Hill, LLC, this brand-new home combines quality craftsmanship with a thoughtfully designed floor plan. The layout balances open gathering spaces with practical everyday living.
A specifications sheet is available outlining the planned construction details. Sherwin-Williams paint, Avaron engineered hardwood flooring throughout the first floor, and a full suite of Thermador stainless steel appliances are planned for the kitchen. Gold accents and moody paint colors will add warmth and character to this soon-to-be stunning home.
An updated lookbook featuring the selected finishes and design details is available upon request to interested parties. Hard-hat tours are now available by appointment. Please contact the listing agent to schedule or for additional information. Expected completion in May 2026.
Ideally located in Del Ray, one of Alexandria’s most beloved neighborhoods, residents enjoy easy access to community events, local shops, and popular restaurants along Mount Vernon Avenue....
Contact an agent
Home facts
- Year built:1930
- Listing ID #:VAAX2053634
- Added:46 day(s) ago
- Updated:April 14, 2026 at 01:42 PM
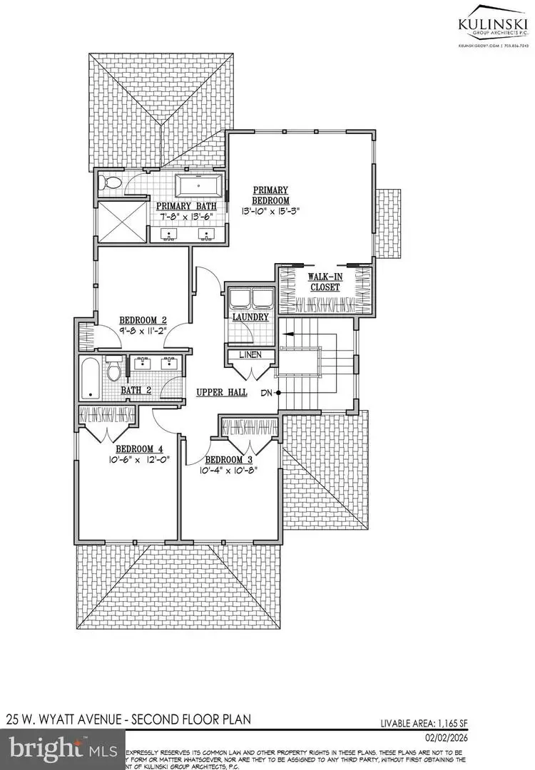
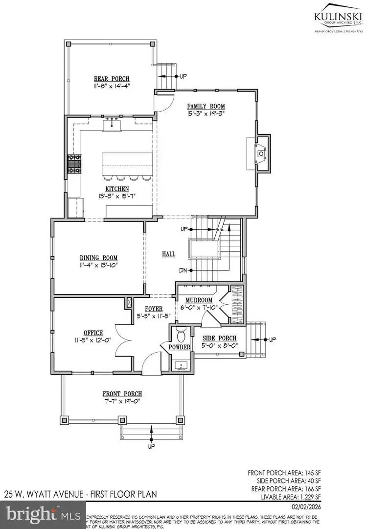
Rooms and interior
- Bedrooms:5
- Total bathrooms:4
- Full bathrooms:3
- Half bathrooms:1
- Flooring:Hardwood, Tile/Brick
- Dining Description:Dining Room
- Bathrooms Description:Primary Bathroom
- Kitchen Description:Dishwasher, Disposal, Microwave, Refrigerator, Stove
- Bedroom Description:Primary Bedroom
- Basement:Yes
- Basement Description:Daylight, Full
- Living area:3,017 sq. ft.
Heating and cooling
- Cooling:Ceiling Fan(s), Central A/C
- Heating:Electric, Forced Air, Heat Pump(s), Natural Gas, Zoned
Structure and exterior
- Roof:Architectural Shingle
- Year built:1930
- Building area:3,017 sq. ft.
- Lot area:0.11 Acres
- Architectural Style:Farmhouse/National Folk
- Construction Materials:HardiPlank Type
- Exterior Features:Porch(es), Sidewalks, Street Lights
- Foundation Description:Permanent
- Levels:3 Story
Schools
- High school:ALEXANDRIA CITY
- Middle school:GEORGE WASHINGTON
- Elementary school:MOUNT VERNON
Utilities
- Water:Public
- Sewer:Public Sewer
Finances and disclosures
- Price:$2,500,000
- Price per sq. ft.:$828.64
- Tax amount:$10,023 (2025)
Features and amenities
- Laundry features:Dryer, Dryer In Unit, Has Laundry, Laundry, Washer, Washer In Unit
Parking
- Parking description:On Street
New listings near 25 W Wyatt Ave
- New
$2,495,000Active4 beds 5 baths2,600 sq. ft.1330 Cameron St, ALEXANDRIA, VA 22314
MLS# VAAX2059090Listed by: RE/MAX EXECUTIVES - Coming Soon
$329,990Coming Soon1 beds 1 baths4551 Strutfield Ln #4122, ALEXANDRIA, VA 22311
MLS# VAAX2058200Listed by: SAMSON PROPERTIES - Coming Soon
$324,500Coming Soon1 beds 1 baths607 Bashford Ln E #3, ALEXANDRIA, VA 22314
MLS# VAAX2058792Listed by: WEICHERT, REALTORS - New
$2,995,000Active6 beds 6 baths4,573 sq. ft.14 E Monroe Ave, ALEXANDRIA, VA 22301
MLS# VAAX2058950Listed by: EXP REALTY, LLC - Coming Soon
Listed by BHGRE$1,575,000Coming Soon6 beds 6 baths3968 Fort Worth Ave, ALEXANDRIA, VA 22304
MLS# VAAX2059088Listed by: BETTER HOMES AND GARDENS REAL ESTATE PREMIER - New
$2,295,000Active5 beds 4 baths4,074 sq. ft.600 Upland Pl, ALEXANDRIA, VA 22301
MLS# VAAX2053610Listed by: COMPASS - Coming Soon
$390,000Coming Soon2 beds 1 baths3204 Ravensworth Pl, ALEXANDRIA, VA 22302
MLS# VAAX2058768Listed by: EXP REALTY, LLC - Coming SoonOpen Sat, 12 to 2pm
$1,795,000Coming Soon3 beds 4 baths513 Franklin St, ALEXANDRIA, VA 22314
MLS# VAAX2059058Listed by: CORCORAN MCENEARNEY - New
$219,000Active2 beds 1 baths1 sq. ft.5340 Holmes Run Pkwy #700, ALEXANDRIA, VA 22304
MLS# VAAX2058780Listed by: LONG & FOSTER REAL ESTATE, INC. - New
$290,000Active2 beds 2 baths965 sq. ft.6145 Edsall Rd #m, ALEXANDRIA, VA 22304
MLS# VAAX2059054Listed by: SAMSON PROPERTIES