1000 2nd St #6b, Charlottesville, VA 22902
Local realty services provided by:Better Homes and Gardens Real Estate Maturo
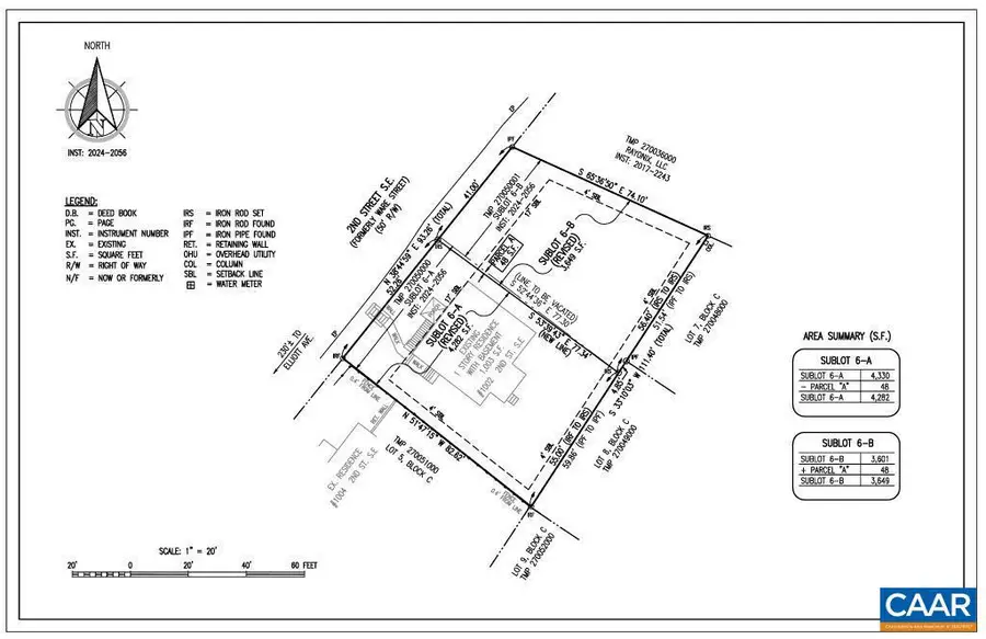
1000 2nd St #6b,Charlottesville, VA 22902
$185,000
- 0.09 Acres
- Lots / Land
- Active
Listed by: candice van der linde
Office: yes realty partners
MLS#:674423
Source:BRIGHTMLS
Price summary
- Price:$185,000
About this home
LAND in CVILLE!! Build next to the IX Art Park!!! Rare opportunity for Homeowners, Investors or Multi-generational living in the Heart of Charlottesville. This buildable city lot offers flexible residential possibilities for a custom residence, income-producing property or multi unit investment in a location where new construction opportunities are increasingly limited. Enjoy the flexibility to design a property that fits today's lifestyle needs while being close to Downtown, UVA, dining, shopping, farmers markets & all the outdoor recreation offered here in our favorite big/small town!,Residential or Multi Dwelling Residential Land in Charlottesville City
Contact an agent
Home facts
- Listing ID #:674423
- Added:48 day(s) ago
- Updated:May 04, 2026 at 01:42 PM
Structure and exterior
- Lot area:0.09 Acres
Schools
- High school:CHARLOTTESVILLE
Utilities
- Water:Public Hook-up Available
- Sewer:Public Hook/Up Avail
Finances and disclosures
- Price:$185,000
- Tax amount:$1,000 (2025)
New listings near 1000 2nd St #6b
- Coming SoonOpen Sat, 11am to 1pm
$650,000Coming Soon4 beds 4 baths714 Rock Creek Rd, CHARLOTTESVILLE, VA 22903
MLS# 676668Listed by: CORE REAL ESTATE PARTNERS LLC - Coming Soon
$307,000Coming Soon3 beds 2 baths731 Prospect Ave, CHARLOTTESVILLE, VA 22903
MLS# 676656Listed by: NEST REALTY GROUP - Coming Soon
$719,000Coming Soon5 beds 5 baths188 Brookwood Dr, CHARLOTTESVILLE, VA 22902
MLS# 676630Listed by: NEST REALTY GROUP - New
$799,900Active4 beds 4 baths2,412 sq. ft.1832 Yorktown Dr, CHARLOTTESVILLE, VA 22901
MLS# 676624Listed by: HOWARD HANNA ROY WHEELER REALTY CO.- CHARLOTTESVILLE - New
Listed by BHGRE$240,000Active1 beds 1 baths523 sq. ft.1800 Jefferson Park Ave, Charlottesville, VA 22903
MLS# 676608Listed by: BETTER HOMES & GARDENS R.E.-PATHWAYS
$415,000Active2 beds 3 baths2,321 sq. ft.111 Melbourne Prk, Charlottesville, VA 22901
MLS# 676161Listed by: FRANK HARDY SOTHEBY'S INTERNATIONAL REALTY- New
$529,900Active4 beds 4 baths1,810 sq. ft.801 Nassau St, Charlottesville, VA 22902
MLS# 676562Listed by: REAL BROKER LLC - Open Sat, 10am to 5pm
$435,000Active5 beds 4 baths2,937 sq. ft.387 Horse Path Dr #lot 176, CHARLOTTESVILLE, VA 22923
MLS# 674506Listed by: SM BROKERAGE, LLC
$435,000Active5 beds 4 baths3,317 sq. ft.387 Horse Path Dr, Charlottesville, VA 22923
MLS# 674506Listed by: SM BROKERAGE, LLC- New
$288,500Active3 beds 2 baths1,110 sq. ft.405 Valley Road Ext, CHARLOTTESVILLE, VA 22903
MLS# 674654Listed by: BINX PROPERTIES