Lot 8 Creek Rd, Front Royal, VA 22630
Local realty services provided by:Better Homes and Gardens Real Estate Cassidon Realty
Lot 8 Creek Rd,Front Royal, VA 22630
$599,900
- 3 Beds
- 2 Baths
- 1,512 sq. ft.
- Single family
- Pending
Listed by: kenneth a evans, donna l evans
Office: re/max real estate connections
MLS#:VAWR2012690
Source:BRIGHTMLS
Price summary
- Price:$599,900
- Price per sq. ft.:$396.76
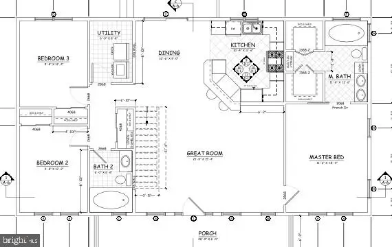
About this home
Property Overview
New Construction – Ready March 1st
Enjoy lakefront living at its finest in the sought-after Lake Front Royal community. This beautiful new home offers 1,512 finished square feet above grade with an unfinished walk-out basement that doubles your potential living space—already roughed in for a future full bath. Lots of windows fill the lower level with natural light and capture tranquil lake views. Located on 1.09-acre premium lot with plenty of room to roam.
Located just minutes from I-66/I-81, this property offers easy commuting access while being close to wineries, hiking trails, golf courses, shopping, and historic downtown Front Royal. High-speed internet is available for those who work or stream from home.
Enjoy private lake access, community common areas, and endless opportunities for boating, fishing, and relaxation right in your backyard.
Construction & Interior Features
Architectural Shingle Roof
Covered Front Porch (6' x 28')
Rear Deck (10' x 24') – Pressure-Treated Wood with Stairs & Rail
Vinyl Siding
Underground Electric Service
50-Gallon Water Heater
14 SEER Heat Pump
Interior
Vaulted Ceilings in Great Room, Dining, and Kitchen
Luxury Vinyl Plank Flooring in Main Living Areas & Laundry Room
Carpet in Bedrooms and Stairways
Basement Rough-In for Full Bath
Kitchen
Easy-Close Cabinets
Granite Countertops (allowance provided)
Kitchen Island (replaces breakfast bar)
Appliance Allowance: $5,000
Bathrooms
Cultured Marble Countertops
Master Bath: Tiled Shower, Soaking Tub & Ceramic Tile Floors
Hall Bath: Tub/Shower Combo & Ceramic Tile Floors
Exterior & Utility
Single-Car Garage
Paved Driveway
Full Walk-Out Basement (unfinished)
Lakefront Lot with Scenic Views...
Contact an agent
Home facts
- Year built:2025
- Listing ID #:VAWR2012690
- Added:146 day(s) ago
- Updated:March 25, 2026 at 07:32 AM
Rooms and interior
- Bedrooms:3
- Total bathrooms:2
- Full bathrooms:2
- Flooring:Carpet, Ceramic Tile, Luxury Vinyl Plank
- Dining Description:Combination Dining/Living, Combination Kitchen/Dining, Dining Area
- Kitchen Description:Built-In Microwave, Carpet, Combination Kitchen/Living, Dishwasher, Icemaker, Kitchen - Gourmet, Kitchen - Island, Refrigerator, Stove, Upgraded Countertops
- Bedroom Description:Carpet, Entry Level Bedroom
- Basement:Yes
- Basement Description:Connecting Stairway, Daylight, Partial, Rough Bath Plumb, Space For Rooms, Unfinished, Walkout Level, Windows
- Living area:1,512 sq. ft.
Heating and cooling
- Cooling:Ceiling Fan(s), Central A/C
- Heating:Electric, Heat Pump(s)
Structure and exterior
- Roof:Architectural Shingle
- Year built:2025
- Building area:1,512 sq. ft.
- Lot area:1.09 Acres
- Lot Features:Lake, Premium
- Architectural Style:Ranch/Rambler
- Construction Materials:Vinyl Siding
- Exterior Features:Deck(s), Porch(es)
- Foundation Description:Permanent
- Levels:1 Story
Utilities
- Water:Well
Finances and disclosures
- Price:$599,900
- Price per sq. ft.:$396.76
- Tax amount:$267 (2025)
Features and amenities
- Amenities:Carpet, Ceiling Fan(s)
Parking
- Parking description:Attached Garage, Garage - Front Entry, Garage Door Opener, Inside Access, Paved Driveway
- Garage:Yes
- Garage spaces:1
New listings near Lot 8 Creek Rd
- New
$299,990Active3 beds 2 baths960 sq. ft.751 W 13th St, FRONT ROYAL, VA 22630
MLS# VAWR2013802Listed by: BURCH REAL ESTATE GROUP, LLC - New
$639,900Active3 beds 2 baths2,256 sq. ft.804 Farms River Rd, FRONT ROYAL, VA 22630
MLS# VAWR2013366Listed by: WEICHERT REALTORS - BLUE RIBBON - New
$630,000Active3 beds 3 baths3,248 sq. ft.377 Rainbow Way, FRONT ROYAL, VA 22630
MLS# VAWR2013814Listed by: EPIQUE REALTY - Open Sun, 1 to 4pmNew
$365,000Active3 beds 2 baths1,176 sq. ft.210 Gayles, FRONT ROYAL, VA 22630
MLS# VAWR2013774Listed by: WEICHERT, REALTORS - New
$450,000Active4 beds 3 baths2,842 sq. ft.168 Deer Trail Rd, FRONT ROYAL, VA 22630
MLS# VAWR2013792Listed by: MARKETPLACE REALTY
$454,900Active3 beds 2 baths1,500 sq. ft.Lot240/ 3752 Howellsville Howellsville Rd, FRONT ROYAL, VA 22630
MLS# VAWR2011488Listed by: MORRIS & CO. REALTY, LLC
$454,900Active3 beds 2 baths1,500 sq. ft.Lot239/ 3778 Howellsville Howellsville Rd, FRONT ROYAL, VA 22630
MLS# VAWR2013264Listed by: MORRIS & CO. REALTY, LLC- New
$360,000Active3 beds 2 baths1,633 sq. ft.220 Manassas Ave, FRONT ROYAL, VA 22630
MLS# VAWR2013654Listed by: WEICHERT REALTORS - BLUE RIBBON - Open Sat, 11am to 1pmNew
$384,900Active3 beds 3 baths1,772 sq. ft.1 Depot Ave, FRONT ROYAL, VA 22630
MLS# VAWR2013718Listed by: MORRIS & CO. REALTY, LLC - Coming Soon
$225,000Coming Soon1 beds 1 baths91 Acorn Nut Ln, FRONT ROYAL, VA 22630
MLS# VAWR2013790Listed by: LARSON FINE PROPERTIES